1. AnbieterArrow Icon
  2. HUF HAUSArrow Icon
  3. Musterhaus Frankfurt - ART 4 Beispiel 3
Slide 1
Location Icon
Slide 2
Location Icon
Slide 3
Location Icon
Slide 4
Location Icon
Slide 5
Location Icon
Slide 6
Location Icon
HUF HAUS Logo 500 px.jpg
HUF HAUSMusterhaus Frankfurt - ART 4 Beispiel 3
homeFachwerkhäuser
livingArea194 m²
energyStandardEffizienzhaus 55
Preis anfragen

Musterhaus Frankfurt - ART 4 Beispiel 3

Weißes Fachwerkhaus mit Akzenten

Das Entree auf der Traufseite markiert die Mitte des Hauses und empfängt Besucher mit einem gläsernen Eingangsportal, das durch Offenheit und Transparenz besticht. Der Blick kann so bereits vor Betreten des Hauses über den Eingangsbereich in Richtung Treppe schweifen, die skulpturenartig zum Obergeschoss führt. Hinter dem Eingangsportal erstrecken sich auf zwei Etagen 185 m² außergewöhnliche Wohnfläche, die sich entlang der Mittelachse in zwei gleichgroße Trakte aufteilen. Hier entfaltet sich eine Innenarchitektur, die der Ästhetik der geometrischen Linien folgt. 

Die Symmetrie des Grundrisses und die Geometrie der sichtbaren Fachwerkkonstruktion, werden vom stetigen Wechselspiel des Tageslichts zu einem Ort, an dem man den Puls der Natur jeden Tag neu genießen kann.  

Hausdaten

Hausart Icon
HausartEinfamilienhaus
Bauweise Icon
BauweiseHolz-Skelettbauweise
Anzahl Räume Icon
Anzahl Räume13
Baustil Icon
BaustilFachwerkhäuser
Fassade Icon
FassadeGlas, Putz, Holz
Außenmaße Icon
Außenmaße12.4 m x 10 m
Wohnfläche Icon
Wohnfläche193.71 m²
Dachform Icon
DachformSattel-/Giebeldach
Etagen Icon
Etagen2.5
Energiestandard Icon
EnergiestandardEffizienzhaus 55
Immobilientyp Icon
ImmobilientypMusterhaus
Dachneigung Icon
Dachneigung30°
Hauseigenschaften Icon
HauseigenschaftenBalkon, Keller, Gästezimmer, Viel Glas, Terasse, Erker
Heizungsart Icon
HeizungsartWärmepumpe (Luft, Wasser, oder beides)
Pfeil nach unten linksWir schaffen Platz für Ihre Träume

Grundriss

HUF Haus ART 4 Grundriss_Untergeschoss.jpg
Musterhaus Frankfurt - ART 4 Beispiel 3 Grundriss (Keller)Wohnfläche KG: 109,23 m²
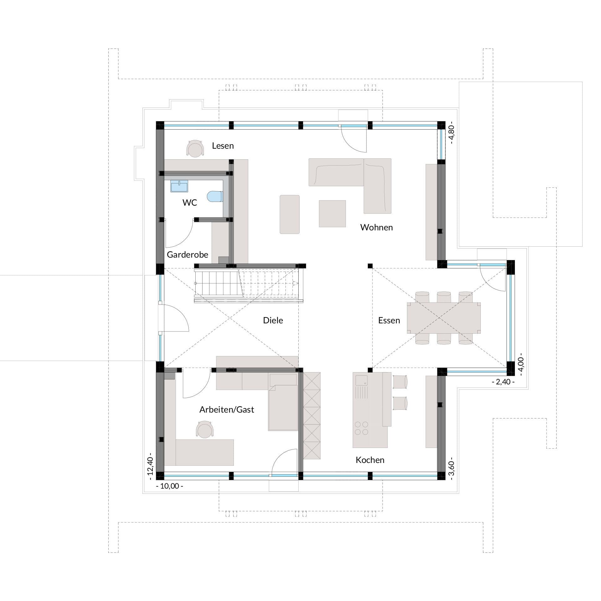
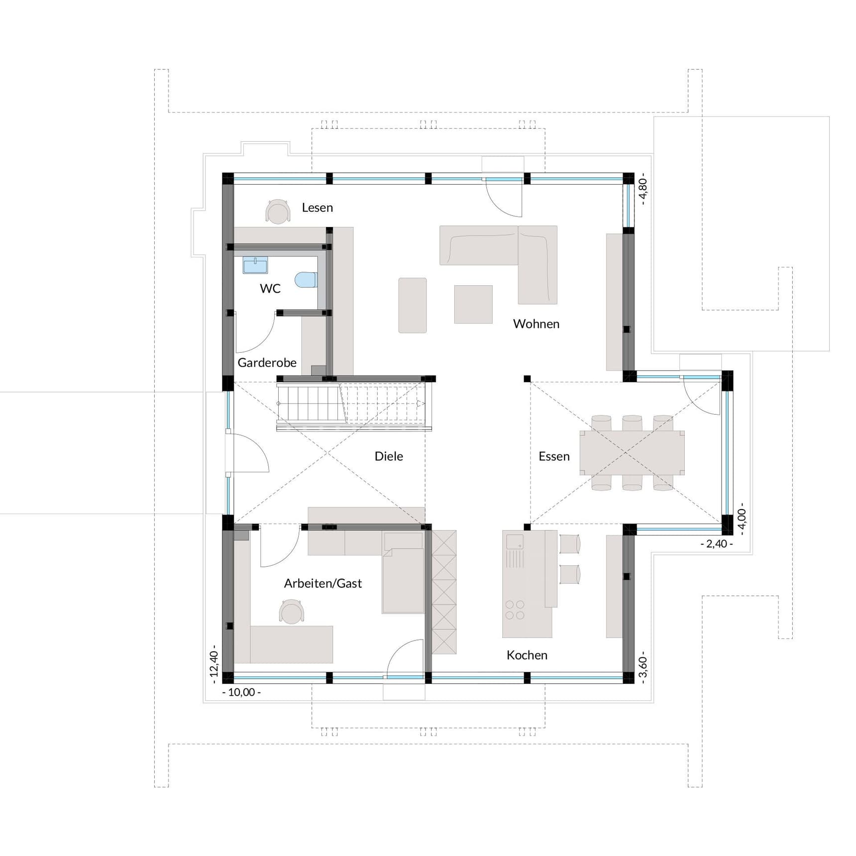
HUF Haus ART 4 Grundriss_Erdgeschoss.jpg
Musterhaus Frankfurt - ART 4 Beispiel 3 Grundriss (EG)Wohnfläche EG: 112,08 m²
HUF Haus ART 4 Grundriss_Dachgeschoss.jpg
Musterhaus Frankfurt - ART 4 Beispiel 3 Grundriss (DG)Wohnfläche DG: 81,63 m²

Öffnungszeiten

Montag:Geschlossen
Dienstag:Geschlossen
Mittwoch:09:00 - 16:00 Uhr
Donnerstag:09:00 - 16:00 Uhr
Freitag:09:00 - 16:00 Uhr
Samstag:09:00 - 16:00 Uhr
Sonntag:09:00 - 16:00 Uhr

(schließt heute 16:00 Uhr)

Adresse

Ludwig-Erhard-Straße 70
Bad Vilbel 61118

Anfahrt planen

Beratungstermin

Fertighaus Team in Bad Vilbel

Unser Team vor Ort

Max MühleggFachberater*in bei HUF HAUS
Max Mühlegg
Wir beraten Sie gerne!Arrow Icon
Tobias HoffmannFachberater*in bei HUF HAUS
2302-Hoffmann,-Tobias-24.jpg
House and TreeParksHouse and PinMusterhausHouse on HandAnbieter