1. AnbieterArrow Icon
  2. HUF HAUSArrow Icon
  3. ART 5 Beispiel 4
Slide 1
Slide 2
Slide 3
Slide 4
Slide 5
Slide 6
HUF HAUS Logo 500 px.jpg
HUF HAUSART 5 Beispiel 4
homeFachwerkhäuser
livingArea256 m²
energyStandardEffizienzhaus 55
Preis anfragen
Katalog bestellen

ART 5 Beispiel 4

Luxushaus in der Großstadt

Luxus? Ganz sicher. Und doch ist bei diesem gläsernen HUF Haus ART 5 nicht von Verschwendung die Rede, sondern von einer hoch effizienten Raumplanung im Einklang mit der umgebenden Natur. Der luxuriöse Aspekt kommt vor allem darin zum Tragen, dass in einem urbanen Umfeld die Natur näher an den Menschen rückt. Wer möchte, tauscht das Wohnzimmer gegen die Terrasse, die als grüne Wohnraumerweiterung dient. Außen und Innen halten Zwiesprache und finden harmonisch zueinander. Im Außenbereich befindet sich ein herrlicher Infinity-Pool und zudem eine große Outdoor-Sauna. Wohlgemerkt: Dieses Haus aus der Baureihe HUF Haus ART steht auf einem grünen Grundstück in Deutschlands belebter Hauptstadt. Durch eine geräumige Diele betritt man den Innenraum und gelangt in direkter Linie an den Essplatz. Links und rechts wird dieser von den Bereichen Wohnen und Kochen flankiert – natürlich ohne Wände. Direkt an den Wohnbereich grenzt eine große Loggia, sauber abgetrennt aber dennoch in direkter „Nachbarschaft“ findet sich Platz für ein Home-Office.

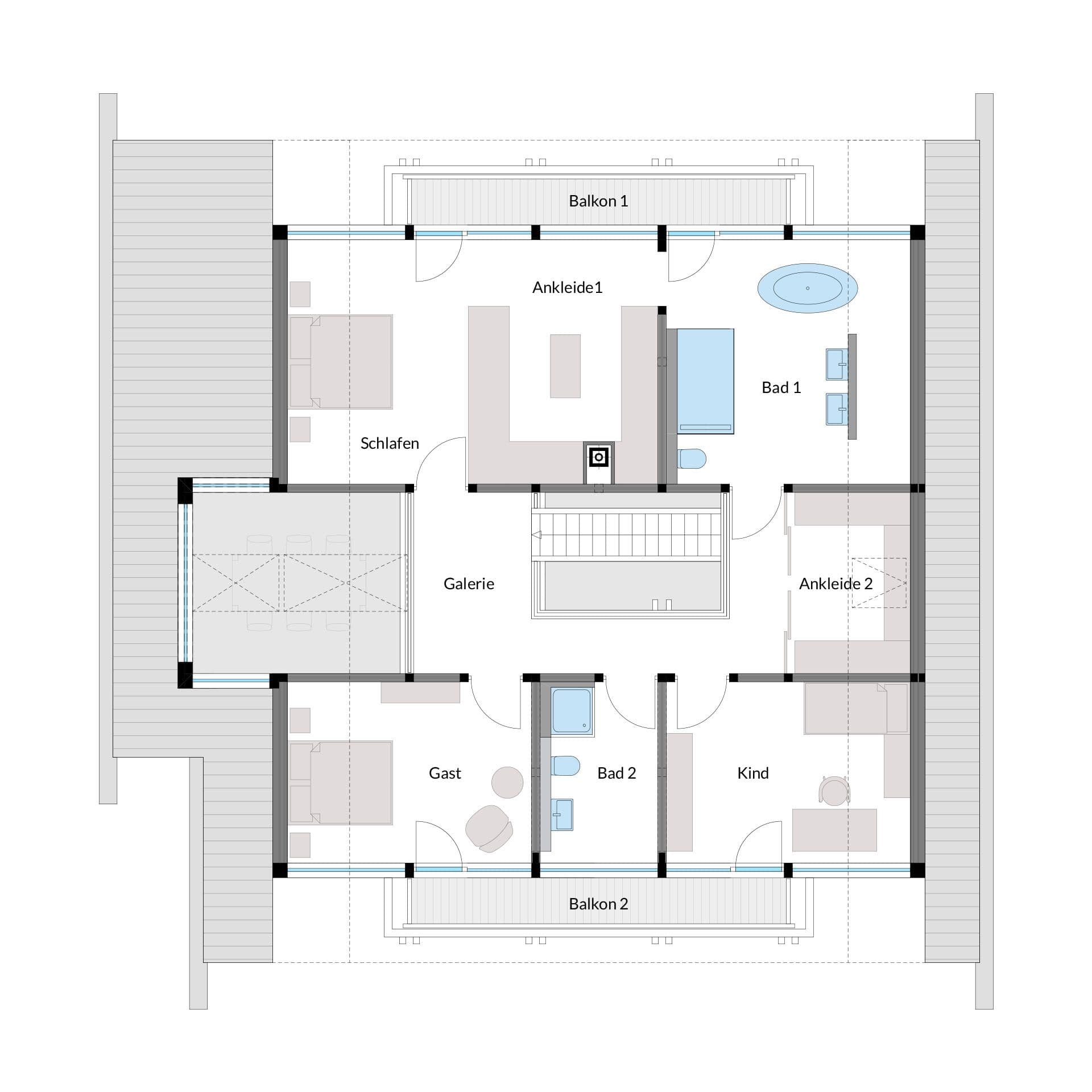
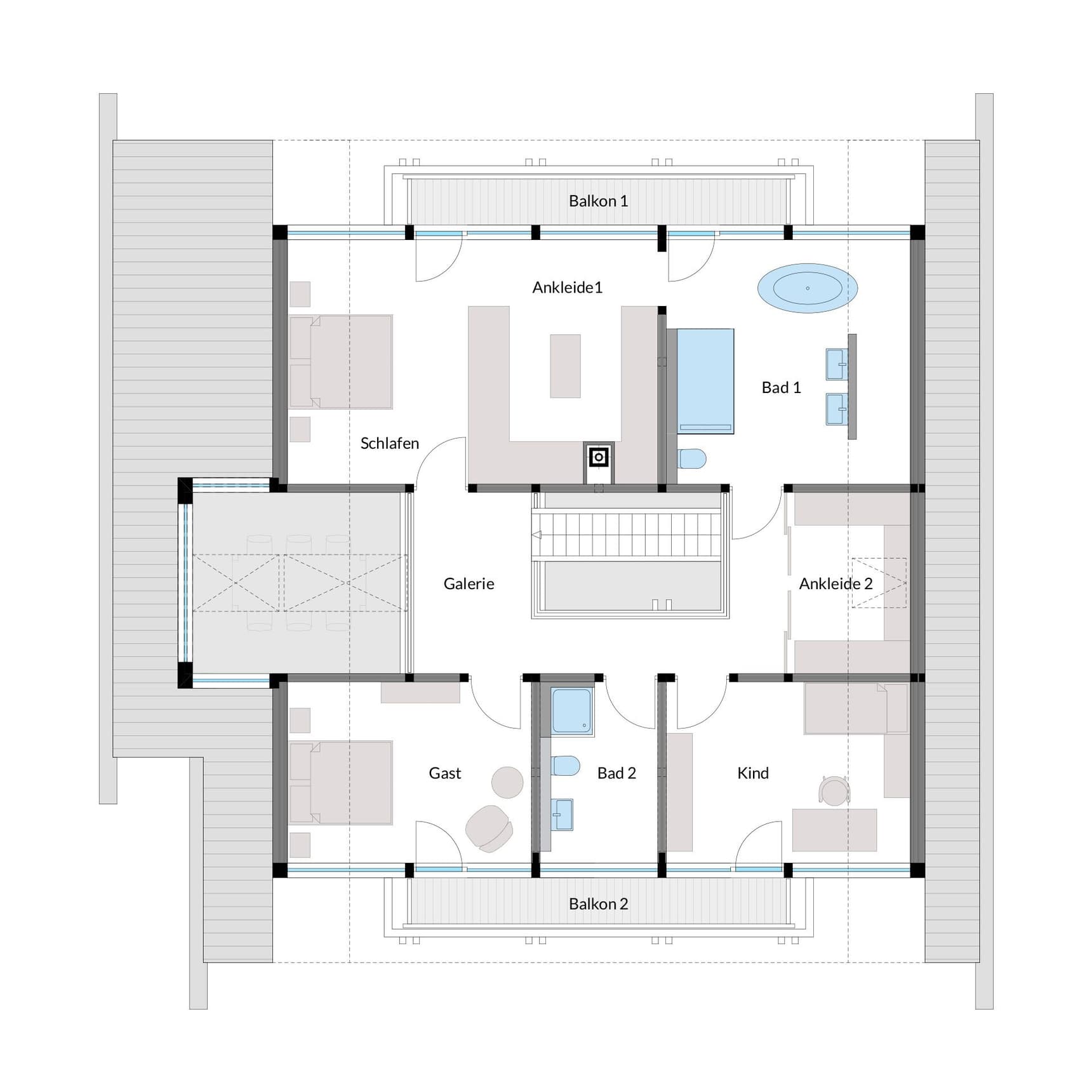
Im Obergeschoss sind sowohl die Galerie als auch Kinder-, Gäste- und ein riesiges Schlaf- und Ankleidezimmer untergebracht; Balkone auf beiden Seiten bieten Gelegenheit zum Sonnenbaden.

Beheizt wird dieses fast schon märchenhafte Anwesen durch eine energetisch hoch effiziente Wärmepumpe.

Da die Planung eines Hauses bei HUF HAUS immer individuell erfolgt, freuen wir uns auf Ihren Anruf. Gerne vereinbaren die erfahrenen Fachberater von HUF HAUS einen unverbindlichen Termin mit Ihnen.

Hausdaten

Hausart Icon
HausartEinfamilienhaus
Bauweise Icon
BauweiseHolz-Skelettbauweise
Anzahl Räume Icon
Anzahl Räume16
Baustil Icon
BaustilFachwerkhäuser
Fassade Icon
FassadeHolz, Putz, Glas
Außenmaße Icon
Außenmaße12.4 m x 12.4 m
Wohnfläche Icon
Wohnfläche255.55 m²
Dachform Icon
DachformSattel-/Giebeldach
Etagen Icon
Etagen1.5
Energiestandard Icon
EnergiestandardEffizienzhaus 55
Immobilientyp Icon
ImmobilientypKundenhaus
Dachneigung Icon
Dachneigung30°
Hauseigenschaften Icon
HauseigenschaftenErker, Terasse, Viel Glas, Gästezimmer
Hausdämmstoff Icon
HausdämmstoffHolzfaser- und Zellulosedämmstoffe
Heizungsart Icon
HeizungsartWärmepumpe (Luft, Wasser, oder beides)
Pfeil nach unten linksWir schaffen Platz für Ihre Träume

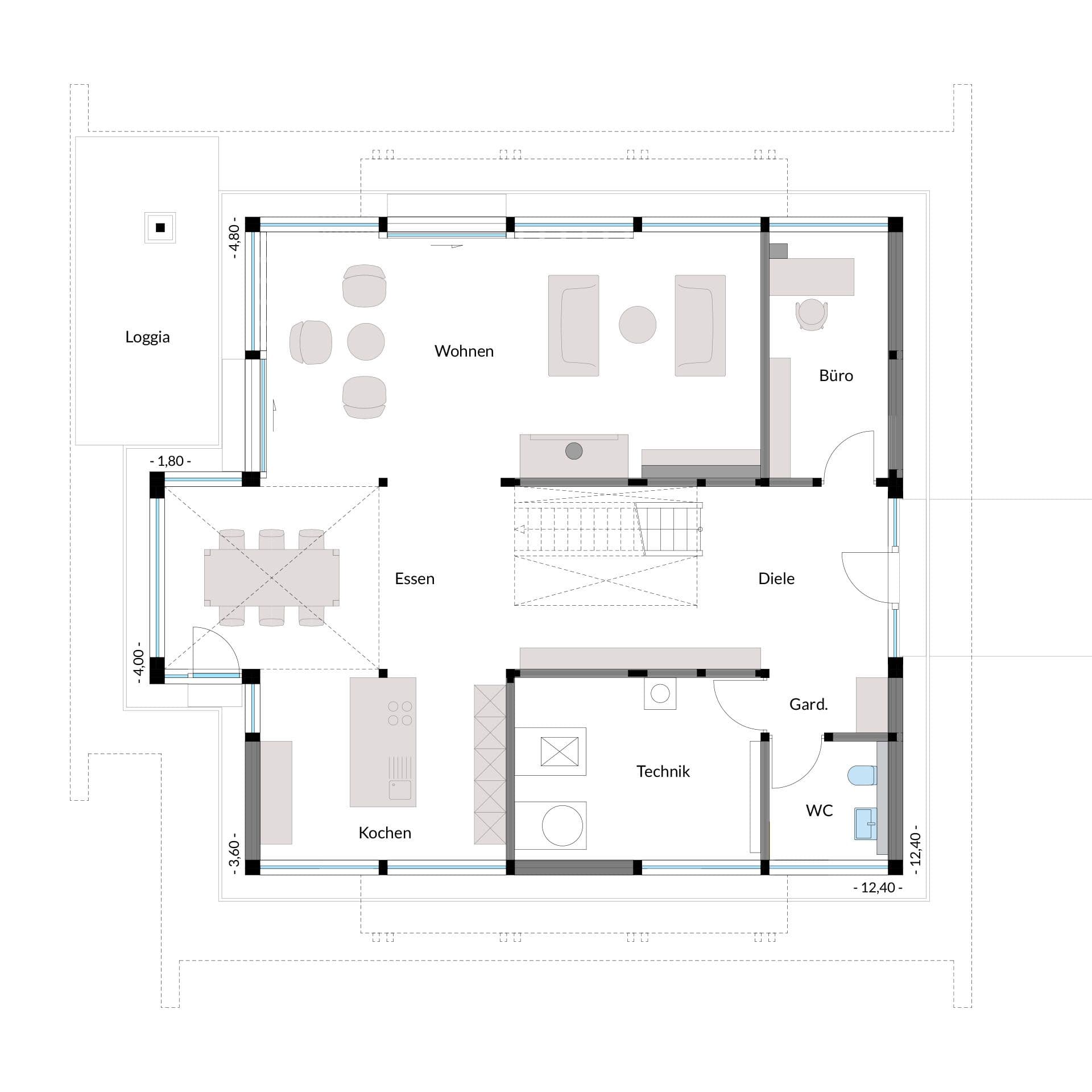
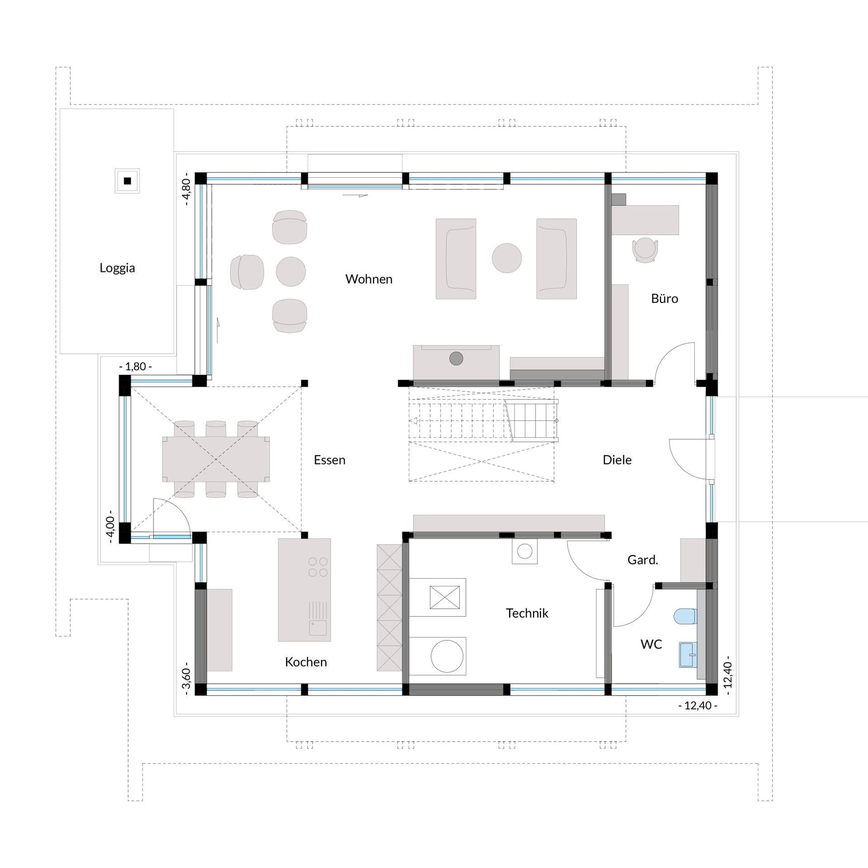
Grundriss

HUF Haus ART 5 Grundriss_Erdgeschoss.jpg
ART 5 Beispiel 4 Grundriss (EG)Wohnfläche EG: 140,01 m²
HUF Haus ART 5 Grundriss_Dachgeschoss.jpg
ART 5 Beispiel 4 Grundriss (DG)Wohnfläche DG: 115,54 m²

Unser Team vor Ort

Joanna HörleFachberater*in bei HUF HAUS
2208-Hörle,-Joanna-10.jpg
Wir beraten Sie gerne!Arrow Icon

Kataloge

HUF HAUS - Hauskatalog
HUF HAUS

HUF HAUS - Hauskatalog


House and TreeParksHouse and PinMusterhausHouse on HandAnbieter