1. AnbieterArrow Icon
  2. HUF HAUSArrow Icon
  3. Musterhaus Nürnberg - ART 4
Slide 1
Location Icon
Slide 2
Location Icon
Slide 3
Location Icon
Slide 4
Location Icon
Slide 5
Location Icon
Slide 6
Location Icon
Slide 7
Location Icon
Slide 8
Location Icon
Slide 9
Location Icon
Slide 10
Location Icon
HUF HAUS Logo 500 px.jpg
HUF HAUSMusterhaus Nürnberg - ART 4
homeFachwerkhäuser
livingArea237 m²
energyStandardEffizienzhaus 55
Preis anfragen

Musterhaus Nürnberg - ART 4

Lichtdurchflutetes Wohnhaus mit offenem Grundriss

Kommunikative Weite und Offenheit bestimmen das Wohngefühl im Inneren. Mittelpunkt des großen Erdgeschosses mit dem großzügigen Wohn-Essbereich bildet die exklusive StilART Küche. Hier haben die Bewohner ausreichend Platz, um auch eine größere Gästeschar zu bewirtschaften. Für gemütliche Stunden sorgt das helle Wohnzimmer mit Zugang zur Terrasse. Wer Ruhe und Platz für sein Hobby, geschäftliches oder privates benötigt, lässt sich am besten im angrenzenden Arbeitsraum nieder, der viel Stauraum für die persönlichen Bedürfnisse bietet.

Das Obergeschoss überzeugt durch ein großzügiges Masterbedroom en Suite. Wer nicht auf Luxus im Sinne von Freiraum verzichten möchte, dürfte sich im Wellnessbad mit integrierter Sauna besonders wohlfühlen. Gäste sind eingeladen, die offene Atmosphäre im eigenen Schlafzimmer mit Duschbad zu genießen.

Hausdaten

Hausart Icon
HausartEinfamilienhaus
Bauweise Icon
BauweiseHolz-Skelettbauweise
Baustil Icon
BaustilFachwerkhäuser
Fassade Icon
FassadePutz, Holz, Glas
Außenmaße Icon
Außenmaße13.96 m x 10.6 m
Wohnfläche Icon
Wohnfläche237.42 m²
Dachform Icon
DachformSattel-/Giebeldach
Etagen Icon
Etagen1.5
Energiestandard Icon
EnergiestandardEffizienzhaus 55
Immobilientyp Icon
ImmobilientypMusterhaus
Dachneigung Icon
Dachneigung33°
Hauseigenschaften Icon
HauseigenschaftenViel Glas, Erker
Heizungsart Icon
HeizungsartWärmepumpe (Luft, Wasser, oder beides)
Pfeil nach unten linksWir schaffen Platz für Ihre Träume

Grundriss

Grundriss Erdgeschoss HUF HAUS Musterhaus Nürnberg mit Wohnbereich, Küche, Büro, Terrasse und separater Garage
Musterhaus Nürnberg - ART 4 Grundriss (EG)Wohnfläche EG: 128,05 m²
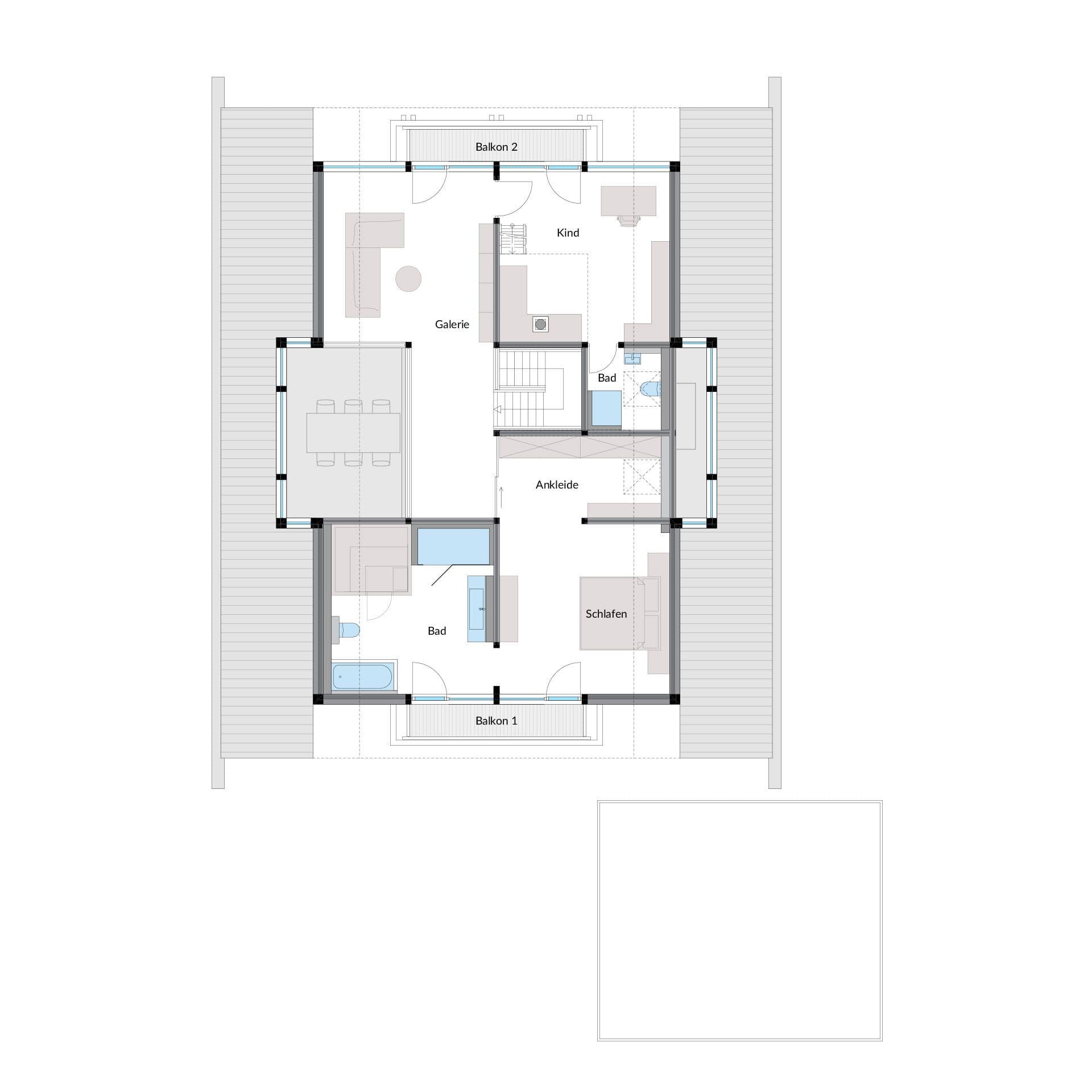
Grundriss Dachgeschoss HUF HAUS Musterhaus Nürnberg mit Schlafzimmer, Kinderzimmer, Galerie, zwei Bädern und Balkonen
Musterhaus Nürnberg - ART 4 Grundriss (DG)Wohnfläche DG: 109,37 m²

Öffnungszeiten

Montag:Geschlossen
Dienstag:Geschlossen
Mittwoch:09:00 - 16:00 Uhr
Donnerstag:09:00 - 16:00 Uhr
Freitag:09:00 - 16:00 Uhr
Samstag:09:00 - 16:00 Uhr
Sonntag:09:00 - 16:00 Uhr

(schließt heute 16:00 Uhr)

Maifeiertag
10:00 - 17:00 Uhr

Adresse

Im Gewerbepark 30
Heßdorf 91093

Anfahrt planen

Beratungstermin

Fertighaus Team in Heßdorf
House and TreeParksHouse and PinMusterhausHouse on HandAnbieter