1. AnbieterArrow Icon
  2. HUF HAUSArrow Icon
  3. Musterhaus London - ART 6 Beispiel 7
Slide 1
Location Icon
Slide 2
Location Icon
Slide 3
Location Icon
Slide 4
Location Icon
Slide 5
Location Icon
HUF HAUS Logo 500 px.jpg
HUF HAUSMusterhaus London - ART 6 Beispiel 7
homeFachwerkhäuser
livingArea362 m²
energyStandardEffizienzhaus 55
Preis anfragen

Musterhaus London - ART 6 Beispiel 7

Nachhaltiges Architektenhaus in London

Wohnen im Einklang mit der Natur und mit den Jahreszeiten – das bietet das HUF Haus ART 6 in einer wahrlich beeindruckenden Weise. Das Fachwerk, das auch hier die architektonische Basis bildet, wird in dunkelgrauer Farbe präsentiert. In Kombination mit zahlreichen Glasflächen entstehen reizvolle Kontraste, die auch mit dem einfallenden Licht und den Reflexionen der Umgebung spielen. Mal blüht es, mal wird Schnee reflektiert und manches Mal herrscht typisch britisches Wetter, passend zum Standort des Hauses in der Nähe von London. Das Faszinierende ist, dass dieses Haus ein Architekturklassiker ist, aber auch als Taktgeber und Wegweiser für neue Architekturformen des 21. Jahrhunderts fungiert.

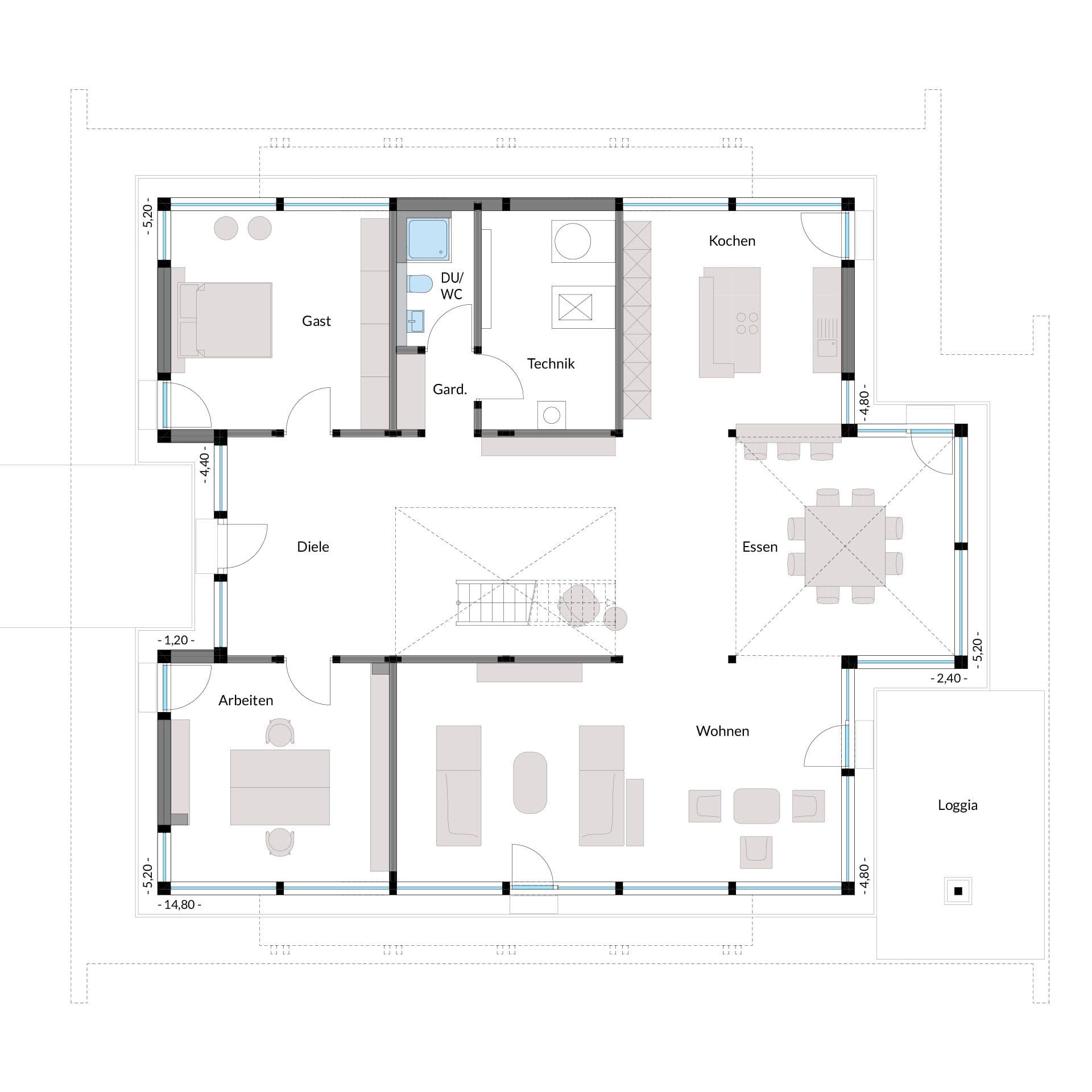
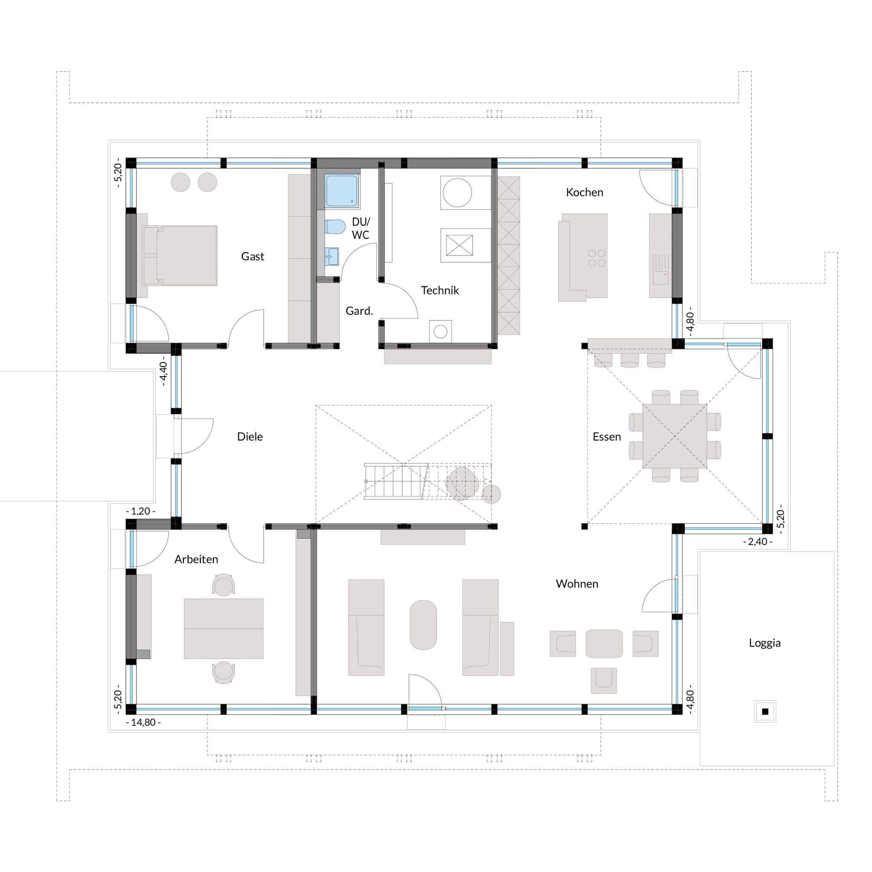
Da ist zum Beispiel das Badezimmer mit direktem Blick ins Grüne. Oder der durchgehend offene Essbereich im Anschluss an die moderne Küche. Im Wohnbereich knistert das Feuer im offenen Kamin und verbreitet eine angenehme Wärme. Das Erdgeschoss kombiniert Offenheit mit Privatsphäre und bietet neben den Wohn- und Empfangsräumen auch separierte Gäste- und Arbeitszimmer.

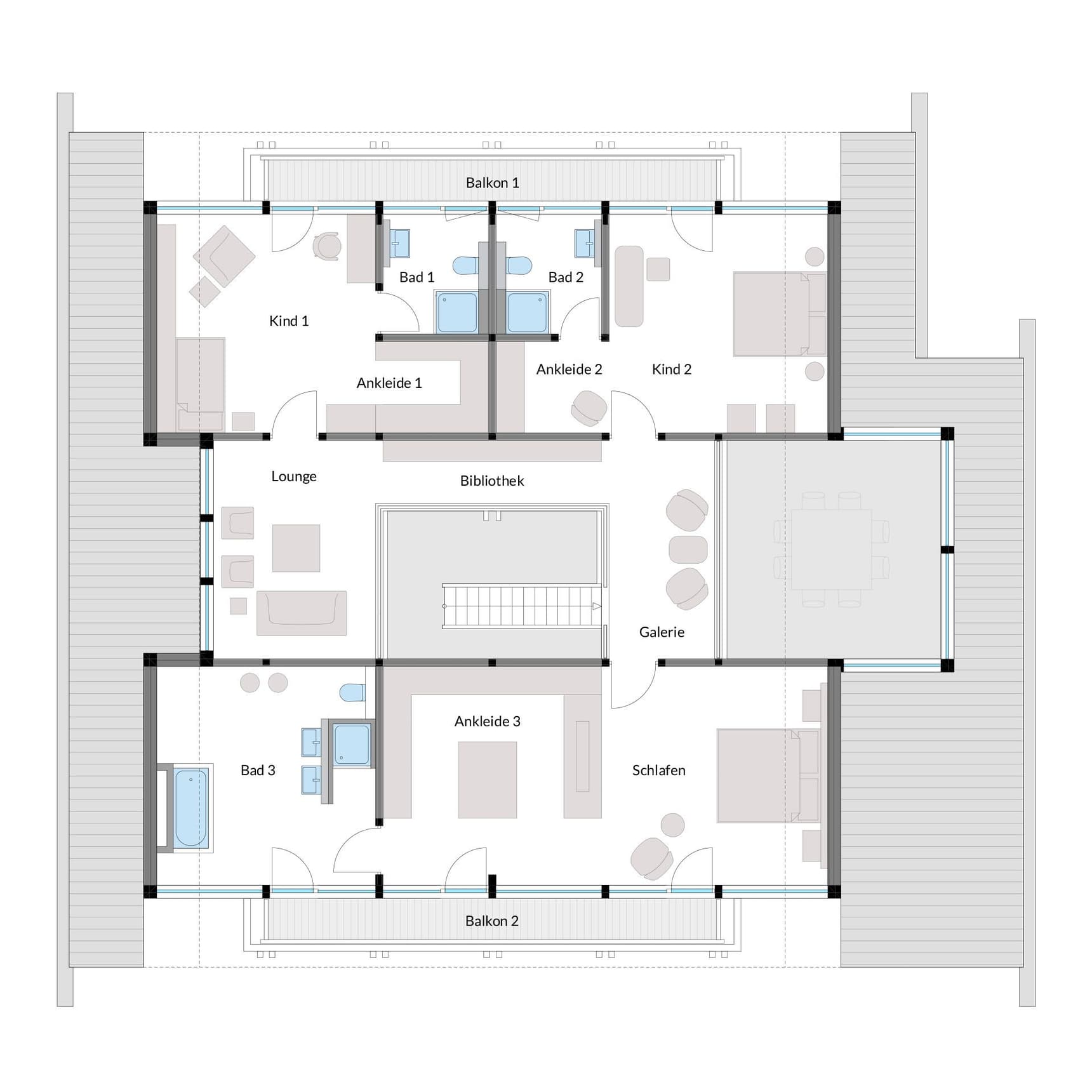
Im oberen Bereich finden sich viele Rückzugsorte: Beide Kinderzimmer verfügen über eigene Bäder und das „Masterbedroom“ geht direkt in Ankleide und das Badezimmer über. An den Giebelseiten befinden sich Balkone, die fast über die gesamte Hausbreite reichen. In verschiedenen Bereichen und Funktionen entdeckt man stilvolle Möbel und Einbauten von StilART, der hauseigenen Möbelmanufaktur von HUF HAUS, sowie B&B Italia. Besonders beeindruckend ist dabei die Bibliothek, die sich über die gesamte Galerie erstreckt.

Einen Teil der Faszination, die dieses Haus ausstrahlt, liegt in der Energietechnik. Verantwortlich ist der Eisspeicher in der Erde und die Nutzung von Sonnenenergie, Lufttemperatur und Erdwärme zur Erzeugung von Energie. Diese wärmt, kühlt und passt das Wohnklima stets perfekt an die Umgebungstemperatur und das individuelle Empfinden an. Dank Wärmepumpe und erstklassiger Isolierung ist auch dieses Haus ein Effizienzhaus.

Möchten auch Sie sich faszinieren lassen? Dann wird es höchste Zeit, dass Sie uns kennen lernen. Kontaktieren Sie uns gerne telefonisch oder digital und vereinbaren Sie jetzt Ihren persönlichen Kennenlern-Termin.

Hausdaten

Hausart Icon
HausartEinfamilienhaus
Bauweise Icon
BauweiseHolz-Skelettbauweise
Anzahl Räume Icon
Anzahl Räume18
Baustil Icon
BaustilFachwerkhäuser
Fassade Icon
FassadeGlas, Holz, Putz
Außenmaße Icon
Außenmaße14.8 m x 14.8 m
Wohnfläche Icon
Wohnfläche362.26 m²
Dachform Icon
DachformSattel-/Giebeldach
Etagen Icon
Etagen1.5
Energiestandard Icon
EnergiestandardEffizienzhaus 55
Immobilientyp Icon
ImmobilientypMusterhaus
Dachneigung Icon
Dachneigung25°
Hauseigenschaften Icon
HauseigenschaftenErker, Terasse, Balkon, Gästezimmer, Viel Glas
Heizungsart Icon
HeizungsartWärmepumpe (Luft, Wasser, oder beides)
Pfeil nach unten linksWir schaffen Platz für Ihre Träume

Grundriss

HUF Haus ART 6 Grundriss_Erdgeschoss.jpg
Musterhaus London - ART 6 Beispiel 7 Grundriss (EG)Wohnfläche EG: 201,61 m²
HUF Haus ART 6 Grundriss_Dachgeschoss.jpg
Musterhaus London - ART 6 Beispiel 7 Grundriss (DG)Wohnfläche DG: 160,65 m²

Unser Team vor Ort

Joanna HörleFachberater*in bei HUF HAUS
2208-Hörle,-Joanna-10.jpg
Wir beraten Sie gerne!Arrow Icon
House and TreeParksHouse and PinMusterhausHouse on HandAnbieter