1. AnbieterArrow Icon
  2. HUF HAUSArrow Icon
  3. Musterhaus Zürich - ART 5 Beispiel 5
Slide 1
Location Icon
Slide 2
Location Icon
Slide 3
Location Icon
Slide 4
Location Icon
Slide 5
Location Icon
HUF HAUS Logo 500 px.jpg
HUF HAUSMusterhaus Zürich - ART 5 Beispiel 5
homeFachwerkhäuser
livingArea258 m²
energyStandardPlusenergiehaus
Preis anfragen

Musterhaus Zürich - ART 5 Beispiel 5

Traumhaus aus Holz und Glas in Kindhausen entdecken

Die Zeiten, in denen nachhaltiges Bauen und Leben lediglich Nischenthemen waren, sind lange vorbei. Mittlerweile versteht sich von selbst, dass Architektur immer auch den Aspekten der Nachhaltigkeit entsprechen muss. Mit dem HUF Haus ART 5 wird dies auf eindrucksvolle Weise unterstrichen. Die Rede ist von einem Plus-Energie-Haus und somit einem Gebäude, das auch über ein Schweizer MINERGIE®-Zertifikat verfügt. Dieses Zertifikat bestätigt eine hochwertige Gebäudehülle und somit hervorragende Energieeffizienz. Das faszinierende an diesem HUF Haus sind die dennoch großen Glasflächen und der uneingeschränkte Blick in die Natur.

Den Eingang erreicht man über einen blühenden Vorgarten. Die Wohnräume sind allesamt hell und großzügig und treten in einen regen Dialog mit der Außenwelt. Natürlich dürfen weder der Carport noch der Freisitz fehlen und im Innenraum ist neben dem Wohnraum auch noch Platz für einen Rückzugsort in Form einer Leseecke. Die Architektur selbst ist puristisch und transparent, die Ausstattung hochwertig und maßgeschneidert. Von der passgenauen Sauna über Einbaumöbel bis hin zum durchdachten Kunstkonzept – in diesem Haus ist alles stimmig.

Beheizt wird das ART 5 in diesem Fall mit einer Wärmepumpe bzw. einer Fußbodenheizung, zudem werden regenerative Energien effizient genutzt. Photovoltaikmodule auf dem Dach sorgen dafür, dass das Haus mehr Energie produziert, als es verbraucht. So können Verbraucher wie Spülmaschine oder LED-Beleuchtung autark versorgt werden.

Haben Sie Lust, dieses Haus mit all seinen Facetten zu besichtigen? Dann vereinbaren Sie gerne einen unverbindlichen Beratungstermin.

Hausdaten

Hausart Icon
HausartEinfamilienhaus
Bauweise Icon
BauweiseHolz-Skelettbauweise
Anzahl Räume Icon
Anzahl Räume17
Baustil Icon
BaustilFachwerkhäuser
Fassade Icon
FassadeGlas, Holz, Putz
Außenmaße Icon
Außenmaße13.6 m x 12.4 m
Wohnfläche Icon
Wohnfläche257.78 m²
Dachform Icon
DachformSattel-/Giebeldach
Etagen Icon
Etagen2.5
Energiestandard Icon
EnergiestandardPlusenergiehaus
Immobilientyp Icon
ImmobilientypMusterhaus
Dachneigung Icon
Dachneigung32°
Hauseigenschaften Icon
HauseigenschaftenBalkon, Gästezimmer, Viel Glas, Keller
Heizungsart Icon
HeizungsartWärmepumpe (Luft, Wasser, oder beides)
Pfeil nach unten linksWir schaffen Platz für Ihre Träume

Grundriss

HUF Haus ART 5 Grundriss_Untergeschoss.jpg
Musterhaus Zürich - ART 5 Beispiel 5 Grundriss (Keller)Wohnfläche KG: 142,71 m²
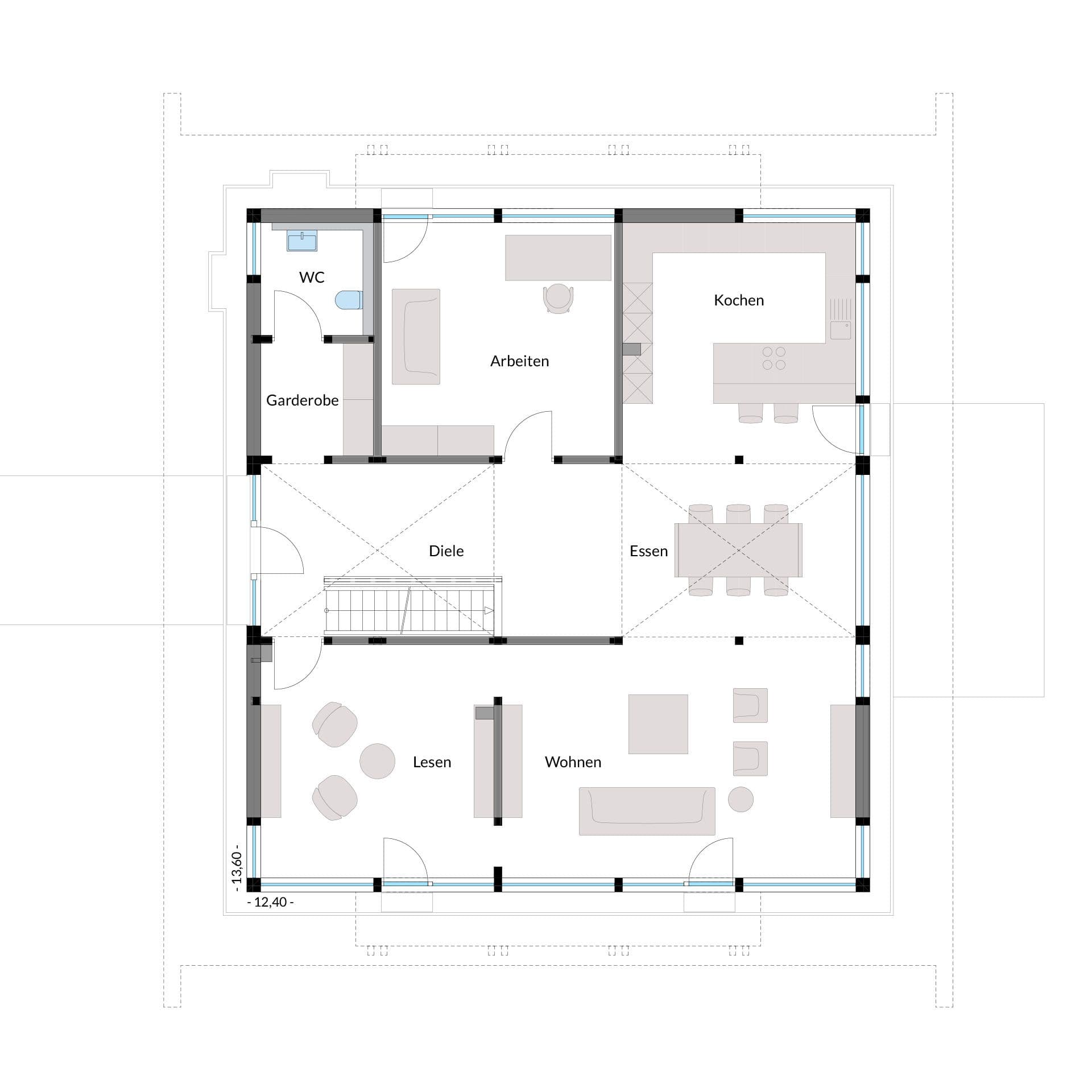
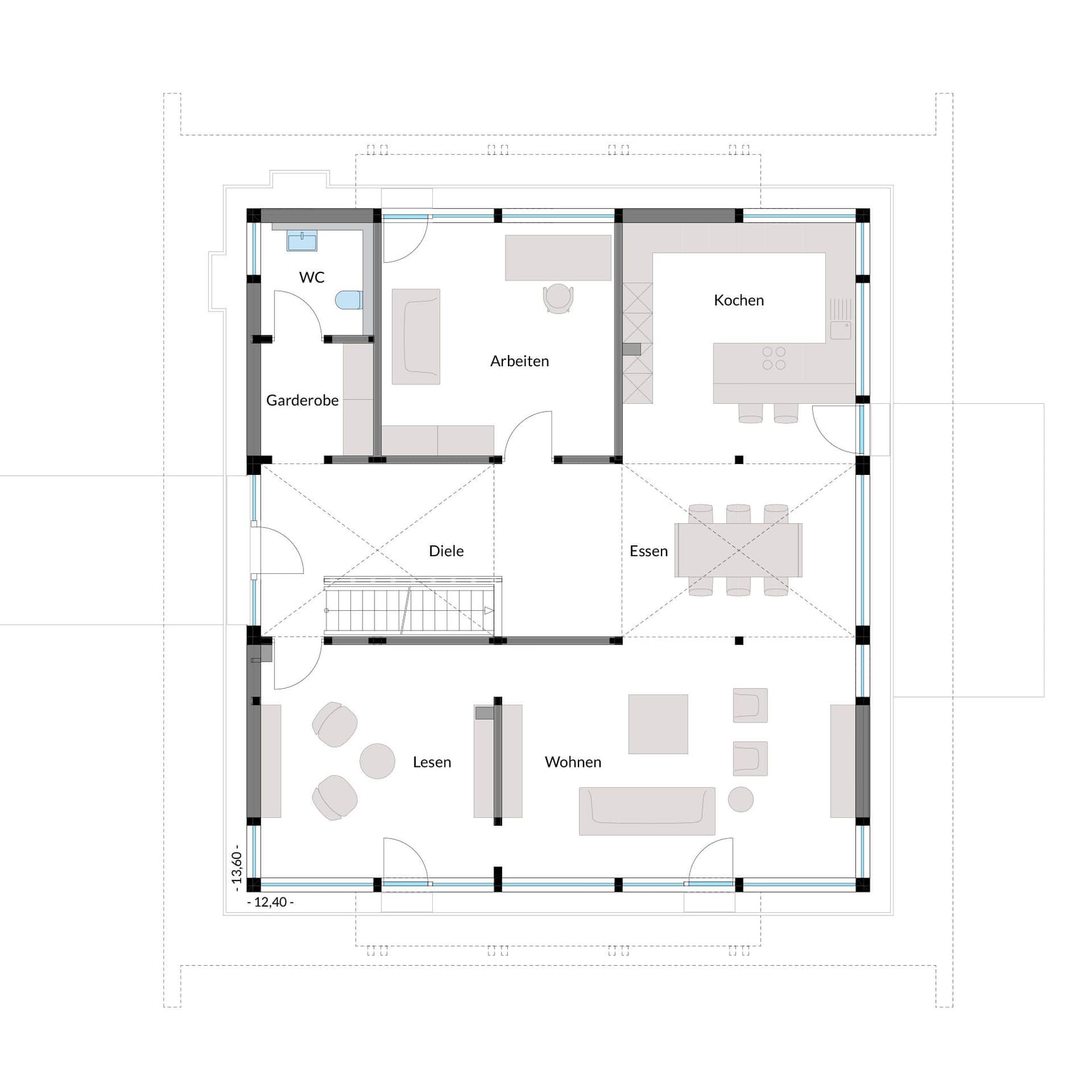
HUF Haus ART 5 Grundriss_Erdgeschoss.jpg
Musterhaus Zürich - ART 5 Beispiel 5 Grundriss (EG)Wohnfläche EG: 145,61 m²
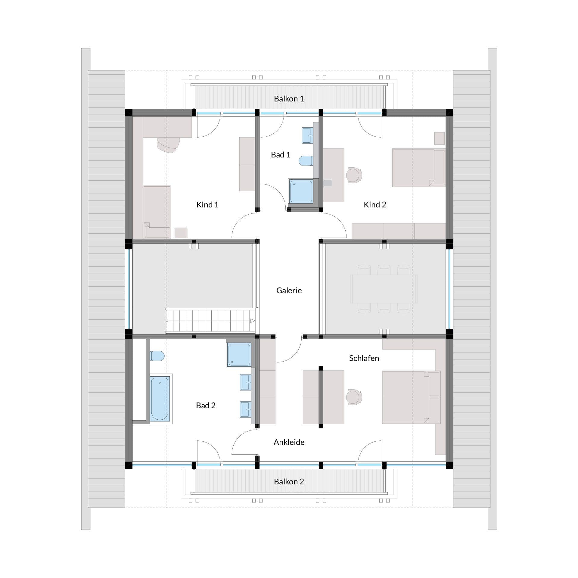
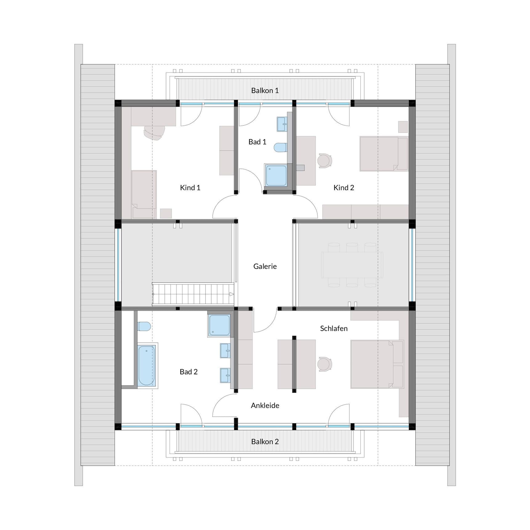
HUF Haus ART 5 Grundriss_Dachgeschoss.jpg
Musterhaus Zürich - ART 5 Beispiel 5 Grundriss (DG)Wohnfläche DG: 112,17 m²

Unser Team vor Ort

Régine MeyerFachberater*in bei HUF HAUS
Régine Meyer_s.jpg
Wir beraten Sie gerne!Arrow Icon
House and TreeParksHouse and PinHäuser liveHouse on HandAnbieter