1. AnbieterArrow Icon
  2. HUF HAUSArrow Icon
  3. MODUM 6 Beispiel 1
Slide 1
Slide 2
Slide 3
Slide 4
Slide 5
HUF HAUS Logo 500 px.jpg
HUF HAUSMODUM 6 Beispiel 1
homeFachwerkhäuser
livingArea147 m²
energyStandardEffizienzhaus 55
Preis anfragen
Katalog bestellen

MODUM 6 Beispiel 1

Architektonische Raffinesse

Die vierköpfige Baufamilie des hier gezeigten HUF Hauses MODUM 6 hat sich bevorzugt für den Loft-Charakter mit weiß gestrichenen Decken entschieden, verzichtet gerne auf vordergründige Statussymbole und geht keinerlei Qualitäts-Kompromisse ein. Ein konsequenter Fokus auf die eigene Lebensqualität.

Eine Lichtachse verläuft durch das moderne Fachwerkhaus und versorgt das Erdgeschoss mit viel gesundem Tageslicht. Beeindruckend ist auch die weite Öffnung der Terrassentür: ganze fünf Meter misst der Durchgang vom Innenraum mit weißer Küche und Esstisch in den schönen Garten. Offenheit und fließende Übergänge sind charakteristisch für die Grundrissplanung, in der alle Wünsche der Familie umgesetzt wurden.

 Im Obergeschoss befindet sich eine Galerie mit samt eines großen Badezimmers und gleich drei Schlafzimmern für Eltern und Kinder. Eine Besonderheit ist das Kino im Untergeschoss – Hollywood-Feeling in den eigenen vier Wänden.

Das HUF Haus MODUM 6 ist ein cleveres und sehr wohnliches Haus voller Überraschungen. Es eignet sich perfekt auch für kompakte Grundstücke und stadtnahe Bauflächen. Durch die Dreifach-Isolierverglasung, das vollwärmegedämmte Dach und die effiziente Wärmepumpen-Technologie ist auch dieses HUF Haus besonders energieeffizient und sparsam.

Die Fachberater von HUF HAUS freuen sich auf Ihre individuelle Planung. Kontaktieren Sie uns gerne für ein unverbindliches Beratungsgespräch.

Hausdaten

Hausart Icon
HausartEinfamilienhaus
Bauweise Icon
BauweiseHolz-Skelettbauweise
Baustil Icon
BaustilFachwerkhäuser
Fassade Icon
FassadeGlas, Putz, Holz
Außenmaße Icon
Außenmaße12.5 m x 7.7 m
Wohnfläche Icon
Wohnfläche146.63 m²
Dachform Icon
DachformSattel-/Giebeldach
Energiestandard Icon
EnergiestandardEffizienzhaus 55
Immobilientyp Icon
ImmobilientypKundenhaus
Dachneigung Icon
Dachneigung30°
Kniestock Icon
Kniestock1.2 m
Hauseigenschaften Icon
HauseigenschaftenViel Glas, Terasse
Heizungsart Icon
HeizungsartWärmepumpe (Luft, Wasser, oder beides)
Pfeil nach unten linksWir schaffen Platz für Ihre Träume

Grundriss

HUF Haus MODUM 6 Grundriss_Untergeschoss.jpg
MODUM 6 Beispiel 1 Grundriss (Keller)Wohnfläche KG: 76,9 m²
HUF Haus MODUM 6 Grundriss_Erdgeschoss.jpg
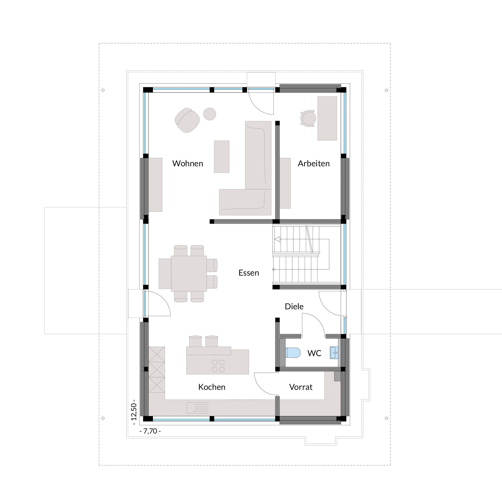
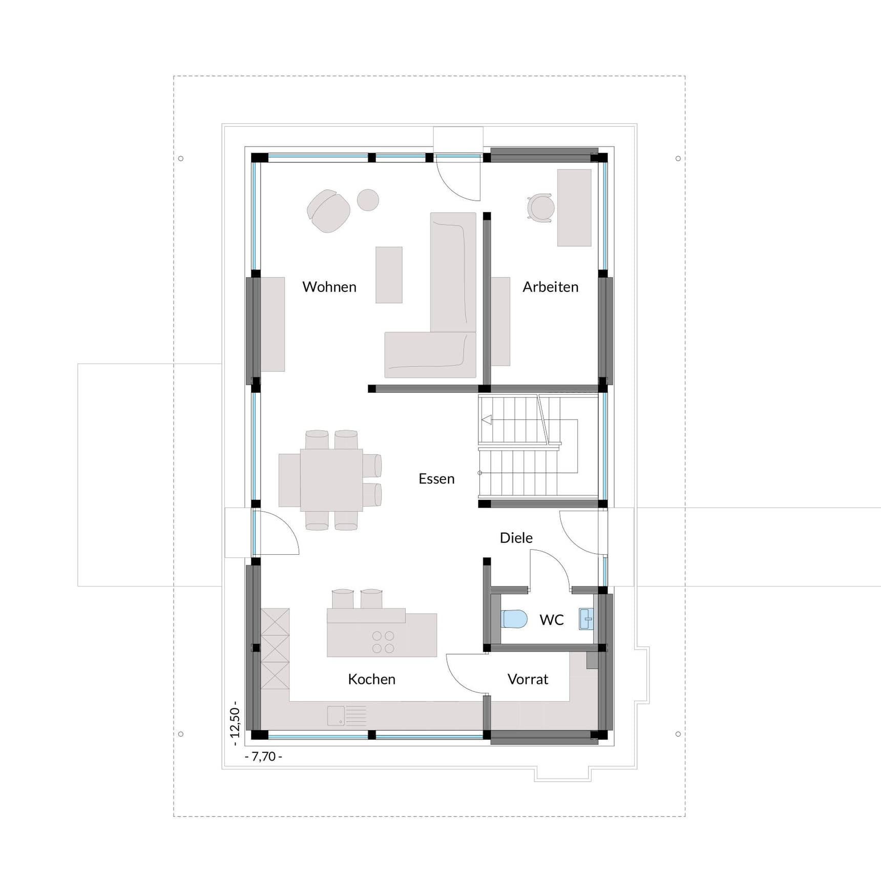
MODUM 6 Beispiel 1 Grundriss (EG)Wohnfläche EG: 74,41 m²
HUF Haus MODUM 6 Grundriss_Dachgeschoss.jpg
MODUM 6 Beispiel 1 Grundriss (DG)Wohnfläche DG: 72,22 m²

Unser Team vor Ort

Joanna HörleFachberater*in bei HUF HAUS
2208-Hörle,-Joanna-10.jpg
Wir beraten Sie gerne!Arrow Icon

Kataloge

HUF HAUS - Hauskatalog
HUF HAUS

HUF HAUS - Hauskatalog


House and TreeParksHouse and PinMusterhausHouse on HandAnbieter