1. AnbieterArrow Icon
  2. HUF HAUSArrow Icon
  3. ART 6 Beispiel 8
Slide 1
Slide 2
Slide 3
Slide 4
Slide 5
HUF HAUS Logo 500 px.jpg
HUF HAUSART 6 Beispiel 8
homeFachwerkhäuser
livingArea458 m²
energyStandardEffizienzhaus 55
Preis anfragen
Katalog bestellen

ART 6 Beispiel 8

Wien - um eine Sehenswürdigkeit reicher

Am Rand einer Großstadt gelegen, interpretiert dieses HUF Haus städtische Villenarchitektur und moderne Lebensart aufs Neue: Eine zeitgemäße und zugleich zeitlose Baukultur, deren Eckpunkte Nachhaltigkeit, Wertigkeit von Materialien und Geradlinigkeit mit Charakter sind.

Auf einem herrlich großen Grundstück, umsäumt von mächtigen Bäumen, schmelzen die bewegte Gartenlandschaft und die Architektur dieses lichten HUF Hauses zu einem Gesamtkunstwerk zusammen. So großzügig wie das parkähnliche Terrain mit Außenpool und großer Sonnenterrasse ist auch der Innenraum: Im Erdgeschoss gehen das Wohnzimmer, die offene Küche mit Bar sowie der Essplatz harmonisch ineinander über. Große Hebe-Schiebe-Türen weisen den Weg zu den Außensitzplätzen.

Im Obergeschoss teil eine Galerie die Haushälften unter dem imposanten Doppelpultdach in zwei Bereiche: Das Elternschlafzimmer en suite mit großer Ankleide zur einen und die Kinderzimmer mit Bad zur anderen Seite. Über der Galerie eröffnet sich dank großem Luftraum ein Blick bis unter das Dach – ein einmaliges Wohnerlebnis. Für noch mehr Wellness und Hobby ist Raum im Untergeschoss, denn durch die clevere Architektenplanung mit Beletage verfügt auch der Fitnessbereich über bodentiefe Glasfronten mit Blick ins Grüne.

Wer sich für das entschleunigte Wohnen in dieser Architekturikone der Zukunft entscheidet, lebt in einem KfW-Effizienzhaus 55 mit Wärmepumpe, das zudem wohlige Wärme über einen offenen Kamin im Wohnbereich erhält. Ein zeitloser Klassiker, der sowohl am Stadtrand als auch auf dem Land überzeugt. Ein Fertighaus der Extraklasse!


Gerne planen wir gemeinsam Ihren Traum-Bungalow! Wir freuen uns auf ein unverbindliches Beratungsgespräch – digital, telefonisch oder persönlich.

 

Hausdaten

Hausart Icon
HausartEinfamilienhaus
Bauweise Icon
BauweiseHolz-Skelettbauweise
Anzahl Räume Icon
Anzahl Räume20
Baustil Icon
BaustilFachwerkhäuser
Fassade Icon
FassadeHolz, Glas, Putz
Außenmaße Icon
Außenmaße13.6 m x 16 m
Wohnfläche Icon
Wohnfläche458 m²
Dachform Icon
DachformVersetztes Pultdach
Etagen Icon
Etagen2.5
Energiestandard Icon
EnergiestandardEffizienzhaus 55
Immobilientyp Icon
ImmobilientypKundenhaus
Dachneigung Icon
Dachneigung30°
Hauseigenschaften Icon
HauseigenschaftenKeller, Gästezimmer, Balkon, Terasse, Viel Glas
Heizungsart Icon
HeizungsartWärmepumpe (Luft, Wasser, oder beides)
Pfeil nach unten linksWir schaffen Platz für Ihre Träume

Grundriss

HUF Haus ART 6 Grundriss_Untergeschoss.jpg
ART 6 Beispiel 8 Grundriss (Keller)Wohnfläche KG: 159,52 m²
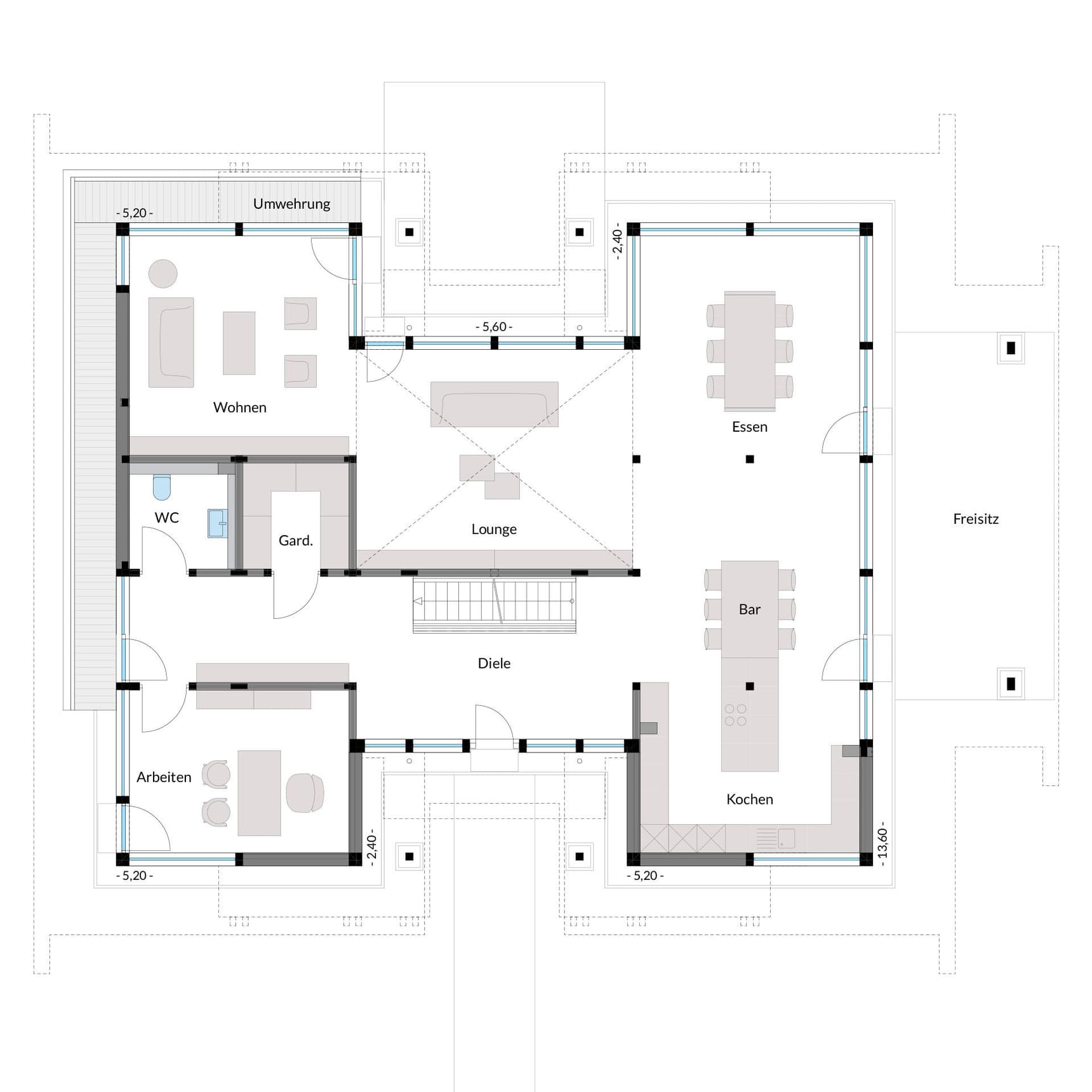
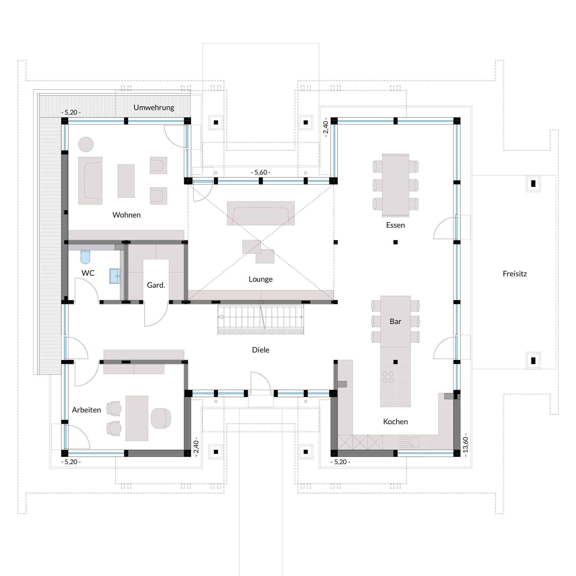
HUF Haus ART 6 Grundriss_Erdgeschoss.jpg
ART 6 Beispiel 8 Grundriss (EG)Wohnfläche EG: 167,8 m²
HUF Haus ART 6 Grundriss_Dachgeschoss.jpg
ART 6 Beispiel 8 Grundriss (DG)Wohnfläche DG: 130,68 m²

Unser Team vor Ort

Joanna HörleFachberater*in bei HUF HAUS
2208-Hörle,-Joanna-10.jpg
Wir beraten Sie gerne!Arrow Icon

Kataloge

HUF HAUS - Hauskatalog
HUF HAUS

HUF HAUS - Hauskatalog


House and TreeParksHouse and PinMusterhausHouse on HandAnbieter