In diesem Zuhause kann die nächste Reise getrost warten, denn das HUF Haus ART 4 verbreitet täglich traumhafte Urlaubsstimmung und stillt das Fernweh auf ganz besondere Weise: Eine lichtdurchflutete Architektur in enger Verbindung mit der Natur im Innen- und Außenbereich, faszinierende Einrichtungsdetails und eine intuitive Haus- und Heiztechnik verwandeln das wohngesunde Fachwerkhaus in ein Wohnparadies mit Urlaubsflair.
Das Unternehmen HUF HAUS erweitert sein Musterhaus-Angebot rund um die Metropolregion Leipzig und lädt Bauinteressierte ab sofort in das neuen HUF HAUS Musterhaus in die Ausstellung Unger-Park im Ortsteil Dölzig ein.
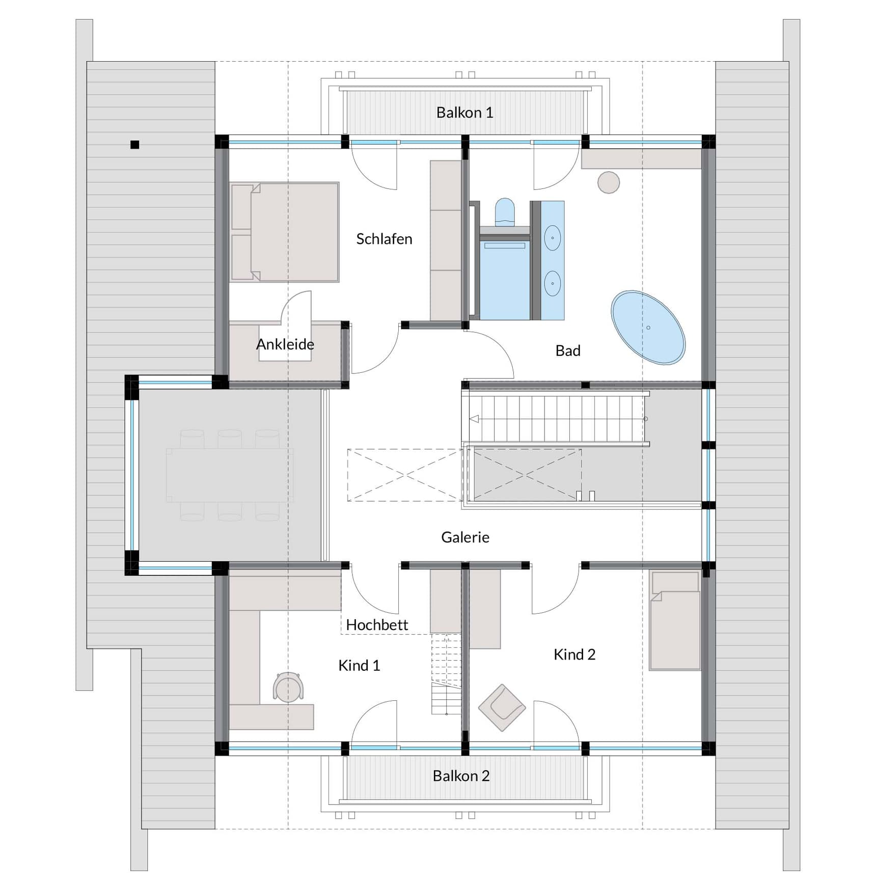
Für die Gestaltung und Grundrissplanung hat Architekt Alexander Huf das Thema Offenheit in den Fokus gerückt. Lufträume, weite Sichtachsen in den Garten, HUF typische bodentiefe Glasfronten und die beeindruckende Firstverglasung sorgen für ein Maximum an Tageslicht und schaffen die perfekte Wohlfühlatmosphäre für Körper und Geist.
Die Einrichtung des Hauses widmet sich ebenfalls der Idee, nachhaltige Erholung zu schaffen und kleine Alltagspausen zu etwas Besonderem zu machen. Schon im Eingangsbereich erwartet die Besucher ein Indoor-Miniaturgarten mit Sukkulenten, der an die letzte Fernreise erinnert, während in der edlen StilART Küche kulinarische Köstlichkeiten aus aller Welt zubereitet werden. Neben einer perfekt in die Konstruktion integrierten grifflosen Schrankwand mit Weinkühlschrank bietet der Inselblock mit Theke in der Raummitte sowie das gegenüberliegende, schwebende Sideboard ausreichend Arbeitsfläche und Stauraum. Holz, Stein und eine neuartige, samtig weiche Oberfläche zieren die Fronten und Flächen dieser Luxusküche. Der Clou: Die verwendeten Materialien finden sich ebenfalls in den Bodenbelägen wieder – somit entsteht ein besonders harmonisches Design. Auch in den anderen Wohnbereichen helfen ästhetische Möbel mit cleveren Funktionen, inspirierende Kunstwerke und ein großzügiges Wellnessbad bestens dabei, das geliebte Urlaubsgefühl dauerhaft zu konservieren.
Gleiches gilt für den harmonischen Außenbereich: Der liebevoll gestaltete Garten von GartenART mit insektenfreundlicher Bepflanzung, Stauden und Gräsern, Hecken und Bäumen erweitert den Wohnraum ins Grüne. Eine gemütliche Sitznische mit Feuerschale bietet Raum für Abenteuer mit Familie und Freunden.
Komfort wie im Hotel? Natürlich darf auch eine intuitive Gebäudesteuerung im Musterhaus mit KfW-Effizienzklasse 55 nicht fehlen. Ganz nach Belieben der Nutzer können Funktionen wie Licht, Jalousien, Heizung oder Multimedia klassisch per Taster, über einen Touchscreen an der Wand, das eigene Smartphone oder mittels Sprachbefehl gesteuert werden. Einlass ins Haus gewährt ein Fingerprintsystem. Über diese Standardfunktionen hinaus verspricht das smarte Gebäude mit integrierter Photovoltaikanlage noch viele Highlights, die für Komfort im Allgemeinen und eine flexible Raumnutzung mit Szenenprogrammierung im Speziellen sorgen.
HUF HAUS bildet, dank einer eigenen Firmengruppe, die gesamte Leistungskette für ein Projekt aus einer Hand ab. Dieser Service garantiert höchste Qualität in der Ausführung der jeweiligen Gewerke und eine perfekte Koordinierung der Bauprozesse – dieser Anspruch gilt für das neue Musterhaus in Leipzig und jeden einzelnen Kunden in ganz Europa.
„Zu Hause ankommen, abschalten und wohlfühlen. Mit einer Architektur der offenen Wohnraumgestaltung, die die Natur ins Haus holt, und einem intelligenten Raum- und Möbelkonzept können wir viel dazu beitragen, um das angenehme Gefühl von Urlaub dauerhaft in unserem zu Hause zu etablieren“, erklärt Michael Baumann, verantwortlicher Interior-Designer. Die Finesse bestehe darin, so der Experte, eine Harmonie aus Architektur, Garten und Landschaft, Inneneinrichtung und Technik zu schaffen, sodass man selbst nach der schönsten Reise gerne nach Hause zurückkehrt.
(öffnet Donnerstag um 12:00 Uhr)
