1. AnbieterArrow Icon
  2. HARTL HAUSArrow Icon
  3. Trend 129 W
Slide 1
Slide 2
no description
HARTL HAUSTrend 129 W
homeKlassische Familienhäuser
energyStandardEffizienzhaus 40 Plus
Preis anfragen
Katalog bestellen

Trend 129 W

Die großen Fenster durchfluten die Räume mit Licht und verleihen den Bewohnern des Hauses das Gefühl von Wohlbefinden.

Hausdaten

Hausart Icon
HausartEinfamilienhaus
Bauweise Icon
BauweiseHolz-Tafelbau
Anzahl Räume Icon
Anzahl Räume5
Baustil Icon
BaustilKlassische Familienhäuser
Außenmaße Icon
Außenmaße9.87 m x 7.93 m
Dachform Icon
DachformWalm-/Zeltdach
Energiestandard Icon
EnergiestandardEffizienzhaus 40 Plus
Immobilientyp Icon
ImmobilientypPlanungsidee
Dachneigung Icon
Dachneigung22°
Hauseigenschaften Icon
HauseigenschaftenGästezimmer
Heizungsart Icon
HeizungsartWärmepumpe (Luft, Wasser, oder beides)
Pfeil nach unten linksWir schaffen Platz für Ihre Träume

Grundriss

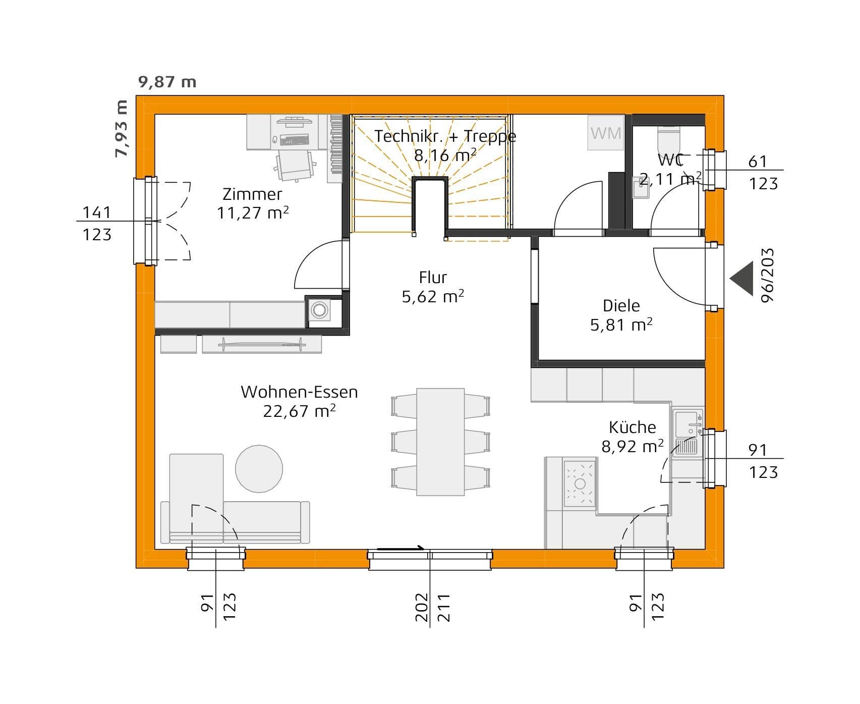
HARTL HAUS Trend_129_W Erdgeschoss
Trend 129 W Grundriss (EG)Wohnfläche EG: 64,69 m²
HARTL HAUS Trend 129 W Obergeschoss
Trend 129 W Grundriss (OG)Wohnfläche OG: 64,78 m²

Unser Team vor Ort

Michael DrexlFachberater*in bei HARTL HAUS
no description
Wir beraten Sie gerne!Arrow Icon

Kataloge

HARTL HAUS: Mehrfamilienhaus
HARTL HAUS

HARTL HAUS: Mehrfamilienhaus


HARTL HAUS: Hauskatalog
HARTL HAUS

HARTL HAUS: Hauskatalog


House and TreeParksHouse and PinMusterhausHouse on HandAnbieter