
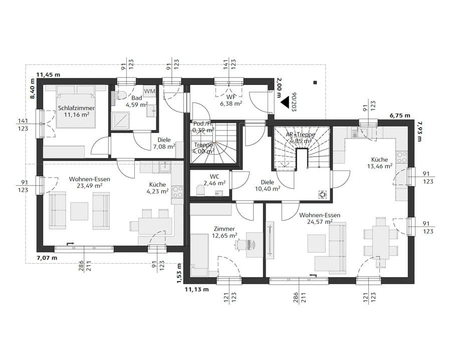
Durch die besondere Aufteilung können Familien jeglicher Größe das Haus bewohnen. Optional kann die Einliegerwohnung auch als Mietwohnung oder Ferienwohnung verwendet werden. Zur späteren Vorsorge könnte auch eine Pflegekraft dort ihren Wohlfühlbereich finden. Dabei bewährt sich die strikte Trennung von Haupthaus und Einliegerwohnung.

