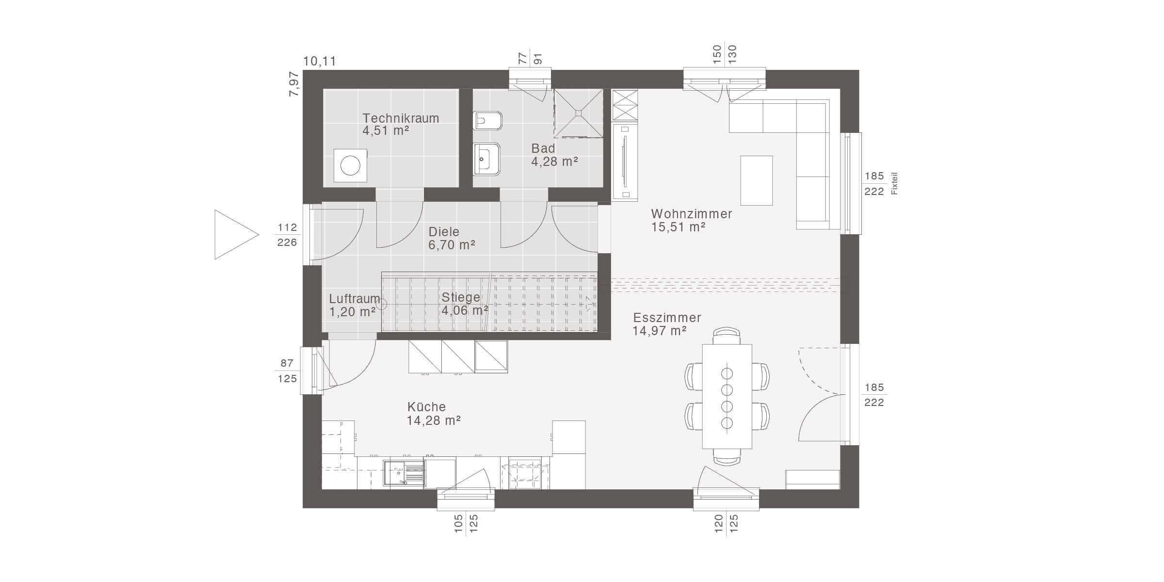
Für stilvolle Flexibilität und hohe Qualität steht das ELK Now 129 und überzeugt schon im Eingangsbereich. Dank dem direkten Zugang zur Küche lassen sich Ihre Einkäufe schnell und einfach verstauen. Ideal für Familien, einladend für Gäste und variantenreich mit viel Spiel- und Stauraum.


