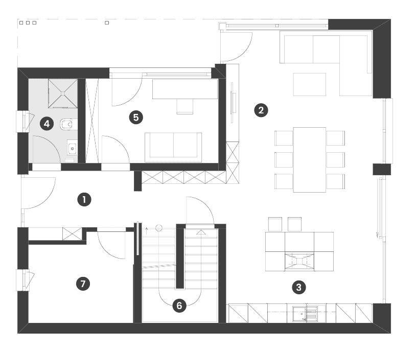
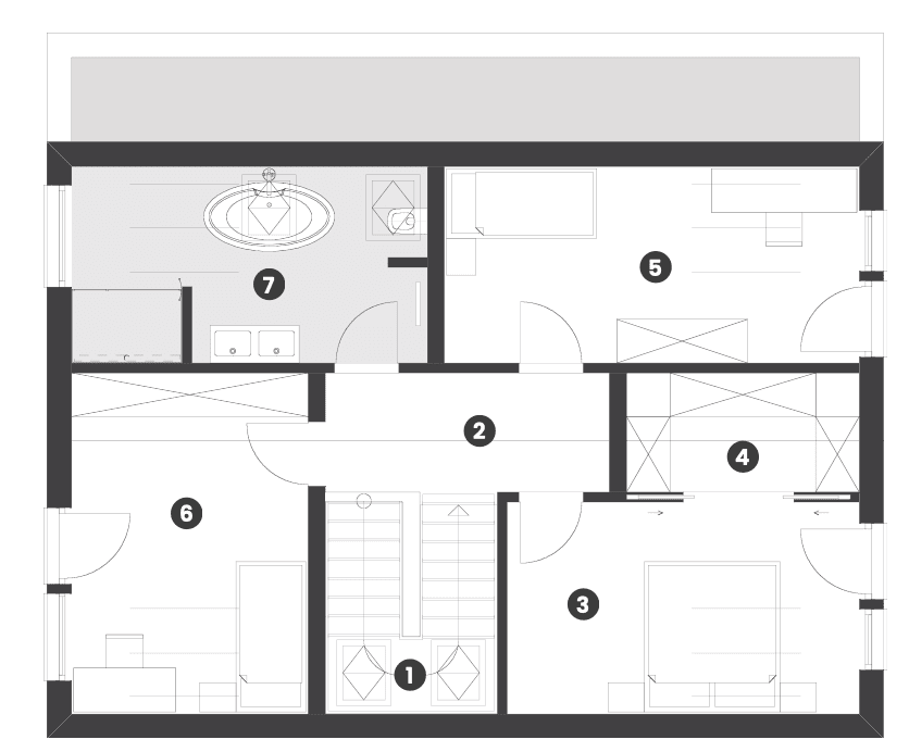
Tritt ein in eine neue Dimension des Wohnens. Das ELK Next 158 ist nicht nur ein Haus, sondern ein Statement. Eine Synthese aus zeitloser Eleganz und visionärer Architektur, die modernes Wohnen neu definiert. Großzügige Glasflächen verschmelzen Innen und Außen, klare Linien lassen den Raum atmen.

