1. AnbieterArrow Icon
  2. ELKArrow Icon
  3. ELK Now 127
Slide 1
Slide 2
2024_ELK_Logo_RGB_negative_red-black.png
ELKELK Now 127
livingArea121 m²
Preis anfragen
Katalog bestellen

ELK Now 127

Das ideale Wohnkonzept für jede Lebensphase

Das ELK Now 127 eröffnet Ihnen neue Freiheiten: nie mehr schwere Einkaufstaschen die Stufen hinauftragen, keine Angst mehr um Ihren Nachwuchs auf der Treppe und keine Sorge, dass Sie später vielleicht einmal in Ihrer Mobilität eingeschränkt sind. Stattdessen: ebenerdiger Wohnkomfort ohne Treppensteigen und das beruhigende Wissen, dass Ihr ELK Bungalow auch im höheren Alter noch zu Ihnen passt. Ein zeitgemäßes Wohnkonzept mit vielen Vorteilen.

Hausdaten

Anzahl Räume Icon
Anzahl Räume4
Wohnfläche Icon
Wohnfläche120.67 m²
Dachform Icon
DachformWalm-/Zeltdach
Pfeil nach unten linksWir schaffen Platz für Ihre Träume

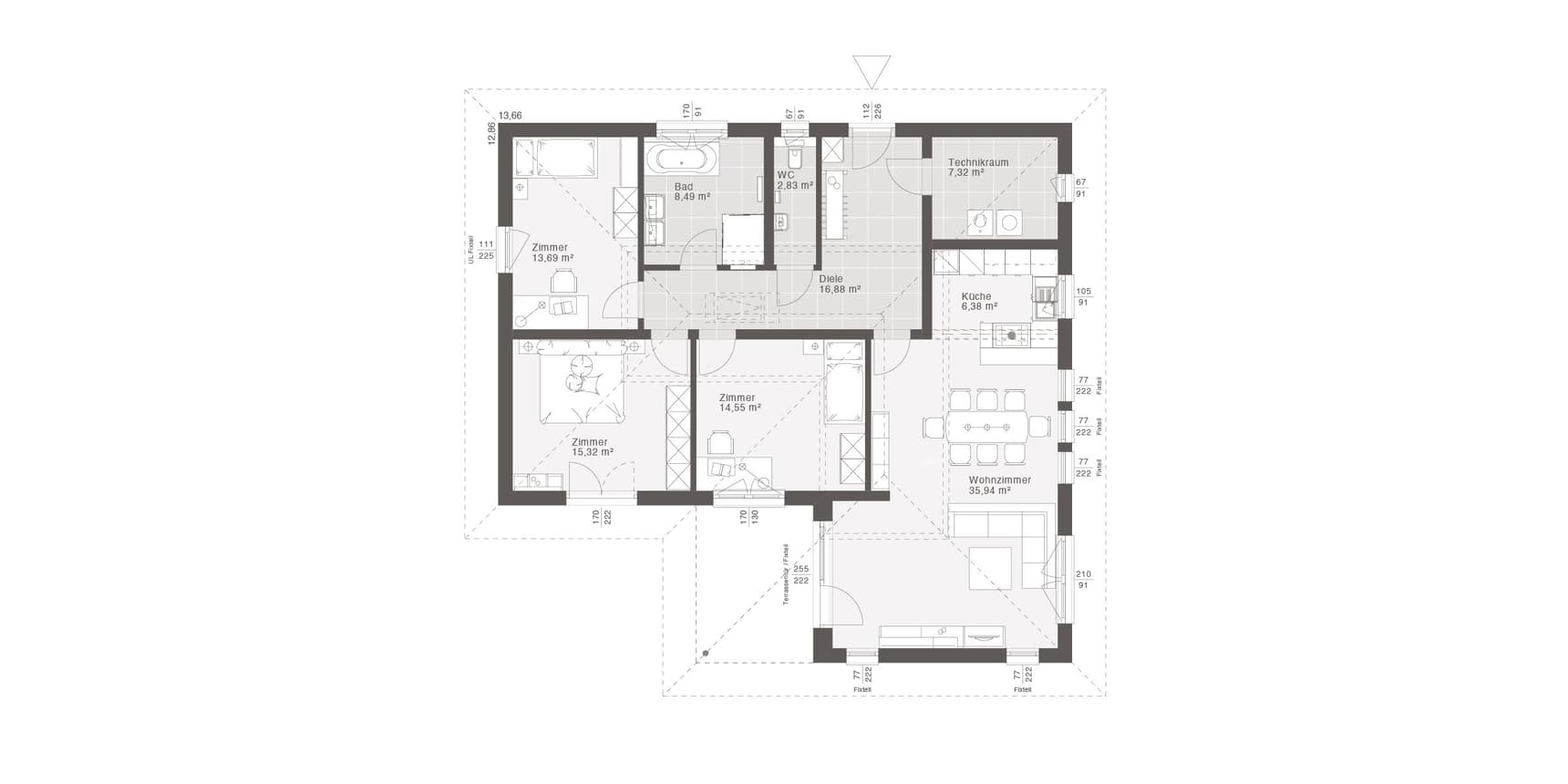
Grundriss

51.jpeg
ELK Now 127 Grundriss (EG)

Kataloge

ELK Duo Collection
ELK

ELK Duo Collection


Die ELK Duo Collection bietet flexible Wohnlösungen für jeden Wunsch: Doppelhäuser, Zweifamilienhäuser und Modelle mit Einliegerwohnung.
ELK NOW
ELK

ELK NOW


Bei ELK wird die Zukunft des Wohnens Realität. Mit mutigem Design, gelebter Nachhaltigkeit und bahnbrechender Innovation.
ELK Next
ELK

ELK Next


Bei ELK wird die Zukunft des Wohnens Realität. Mutiges Design, gelebte Nachhaltigkeit und bahnbrechende Innovation. ELK schafft einen Lifestyle. Für dich. Für jetzt. Für alles, was kommt.
ELK Vision
ELK

ELK Vision


Bei ELK Vision finden Sie nicht nur irgendein Zuhause, sondern genau Ihr Zuhause.
House and TreeParksHouse and PinHäuser liveHouse on HandAnbieter