1. AnbieterArrow Icon
  2. Danwood S.A.Arrow Icon
  3. Park 180W
Slide 1
Slide 2
Slide 3
Slide 4
no description
Danwood S.A.Park 180W
homeStadtvillen
livingArea181 m²
energyStandardEffizienzhaus 40 EE
Preis anfragen
Katalog bestellen

Park 180W

Großzügige moderne Stadtvilla

Die Stadtvilla Park 180 W ist ein bei Danwood-Kunden beliebtes Familienhaus. Das liegt nicht nur an der harmonischen Optik, sondern vor allem am großzügigen Platzangebot auf beiden Wohnebenen. Viel Platz bieten die Bereiche Kochen und Essen auf der einen und der Wohnraum auf der anderen Seite des großen, durch die mittig gelegene Treppe geteilten Areals.  Alles ist hell und von Tageslicht geflutet. Das Parterre wird ergänzt durch ein geräumiges Arbeits-/Gästezimmer, ein Gäste-WC mit Platz für eine zusätzliche Dusche, den Technikraum, eine Garderobennische und eine recht stattliche Diele, von der man die Treppe und darüber hinaus den Garten im Blick hat.

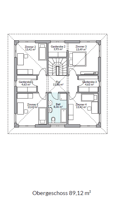
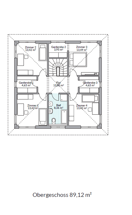
Das Obergeschoss bietet vier Schlafzimmer nahezu identischer Größen und drei Ankleiden. Eine davon könnte man sich auch als zusätzliches Bad vorstellen. Diese gut aufgeteilten Räume und die flexiblen Möglichkeiten Ihrer Nutzung oder Umgestaltung sind zusammen mit dem schön geschnittenen Erdgeschoss der Grund dafür, dass „Park 180W“ so gern gebaut wird. Die attraktiven Fensterfronten, die Haustür mit gläsernem Seitenteil und das flache Walmdach mit der weißen Untersicht bieten dem Auge außerdem einen schönen Anblick.

Hausdaten

Hausart Icon
HausartEinfamilienhaus
Bauweise Icon
BauweiseHolz-Tafelbau
Anzahl Räume Icon
Anzahl Räume6
Baustil Icon
BaustilStadtvillen
Fassade Icon
FassadePutz
Außenmaße Icon
Außenmaße104.2 m x 104.2 m
Wohnfläche Icon
Wohnfläche180.65 m²
Dachform Icon
DachformWalm-/Zeltdach
Etagen Icon
Etagen2
Energiestandard Icon
EnergiestandardEffizienzhaus 40 EE
Pfeil nach unten linksWir schaffen Platz für Ihre Träume

Grundriss

no description
Park 180W Grundriss (EG)
no description
Park 180W Grundriss (OG)

Park 180W

360°Rundgang starten

Unser Team vor Ort

DAN-WOOD HouseFachberater*in bei Danwood S.A.
Default Avatar
Wir beraten Sie gerne!Arrow Icon

Kataloge

Danwood Mehrfamilienhäuser
Danwood S.A.

Danwood Mehrfamilienhäuser


Nachhaltig investieren - Entdecken Sie die Flexibilität und Individualität der Mehrfamilienhäuser von Danwood.
DAN-WOOD Family
Danwood S.A.

DAN-WOOD Family


DAN-WOOD Family bietet die optimale Lösung für Familien: familiengerechte Häuser zu familienfreundlichen Preisen.
Danwood NEXT Holiday
Danwood S.A.

Danwood NEXT Holiday


Sehnen Sie sich nach einem eigenen Rückzugsort in dem die Seele Ruhe findet? Genau diese Sehnsucht stillen die NEXT-Holiday Ferien- und Wochenendhäuser.
Danwood VISION Ausstattung
Danwood S.A.

Danwood VISION Ausstattung


In Zusammenarbeit mit dem renommierten dänischen Studio Jacob Jensen Design entstanden unsere exklusiven Vision-Häuser, die den wahren skandinavischen Stil verkörpern: Klare, moderne Formen mit durchdachter Funktionalität verbinden alle Elemente des Hauses zu einem vollkommenen Ganzen.
House and TreeParksHouse and PinHäuser liveHouse on HandAnbieter