1. AnbieterArrow Icon
  2. Danwood S.A.Arrow Icon
  3. DAN-WOOD Perfect 95
Slide 1
Slide 2
Slide 3
Slide 4
Slide 5
no description
Danwood S.A.DAN-WOOD Perfect 95
homeBungalow
livingArea95 m²
energyStandardEffizienzhaus 40 EE
Preis anfragen
Katalog bestellen

DAN-WOOD Perfect 95

Für Hobbyköche

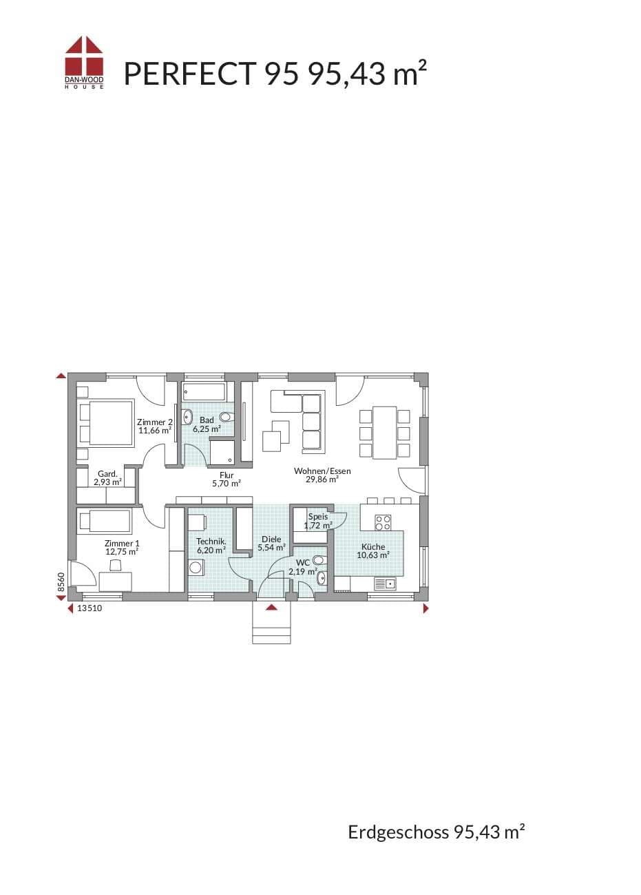
Eine großzügige und von drei Seiten mit Tageslicht verwöhnte Küche mit Speisekammer ist das Highlight dieses Bungalows. Dem Schlafzimmer ist eine kleine Ankleide angeschlossen, und ein weiteres Zimmer kann als Kinder,- Arbeits- oder Gästezimmer genutzt werden. Die Diele bietet Raum für einen großen Garderobenschrank, und im angrenzenden Flur finden Kommoden oder Schuhschränke Platz. Für ein bis zwei Personen ist der Bungalow der ideale Rahmen für ein langes und komfortables Leben im eigenen Haus.

Hausdaten

Hausart Icon
HausartEinfamilienhaus
Bauweise Icon
BauweiseHolz-Tafelbau
Anzahl Räume Icon
Anzahl Räume3
Baustil Icon
BaustilBungalow
Fassade Icon
FassadePutz
Außenmaße Icon
Außenmaße85.6 m x 135.1 m
Wohnfläche Icon
Wohnfläche95.43 m²
Dachform Icon
DachformSattel-/Giebeldach
Energiestandard Icon
EnergiestandardEffizienzhaus 40 EE
Immobilientyp Icon
ImmobilientypPlanungsidee
Dachneigung Icon
Dachneigung22°
Hauseigenschaften Icon
HauseigenschaftenGästezimmer
Hausdämmstoff Icon
HausdämmstoffMineralfaser (Glaswolle, Steinwolle)
Heizungsart Icon
HeizungsartWärmepumpe (Luft, Wasser, oder beides)
Pfeil nach unten linksWir schaffen Platz für Ihre Träume

Grundriss

no description
DAN-WOOD Perfect 95 Grundriss (EG)Wohnfläche EG: 95,43 m²

Unser Team vor Ort

DAN-WOOD HouseFachberater*in bei Danwood S.A.
Default Avatar
Wir beraten Sie gerne!Arrow Icon

Kataloge

Danwood: Mehrfamilienhäuser
Danwood S.A.

Danwood: Mehrfamilienhäuser


Danwood: Family
Danwood S.A.

Danwood: Family


Danwood: NEXT Holiday
Danwood S.A.

Danwood: NEXT Holiday


Danwood: VISION Ausstattung
Danwood S.A.

Danwood: VISION Ausstattung


House and TreeParksHouse and PinMusterhausHouse on HandAnbieter