1. AnbieterArrow Icon
  2. Danwood S.A.Arrow Icon
  3. Perfect 86
Slide 1
Slide 2
Slide 3
Slide 4
Slide 5
no description
Danwood S.A.Perfect 86
homeBungalow
0
energyStandardEffizienzhaus 40 EE
Preis anfragen
Katalog bestellen

Perfect 86

Ideal für Singles und Paare

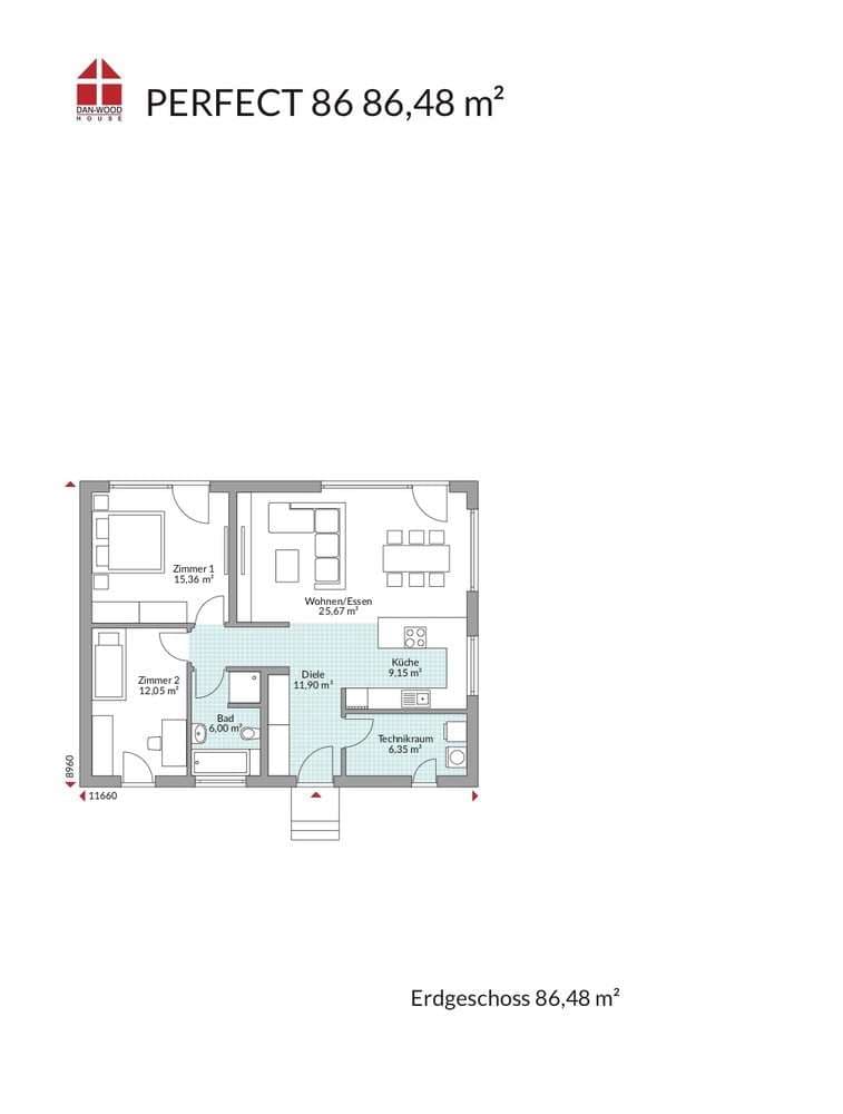
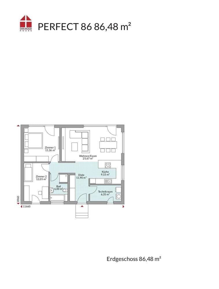
Große Fensterflächen verpassen dem kleinen Bungalow nickt nur ein schickes  Äußeres, sondern sorgen für viel Helligkeit und Weite im Haus. Die Diele gibt sich großzügig, die offene Küche bietet ausreichend Stau- und Arbeitsfläche und der Wohn-/Essbereich ist klar gegliedert. Das Bad mit Nischendusche und Wanne nutzt den verfügbaren Platz optimal aus und ist gut an die zwei Schlafzimmer angebunden. Auch der Technikraum bietet Platz für Waschmaschine und Trockner und all die Technik, die untergebracht werden muss. Einfach perfekt!

Hausdaten

Hausart Icon
HausartEinfamilienhaus
Bauweise Icon
BauweiseHolz-Tafelbau
Anzahl Räume Icon
Anzahl Räume3
Baustil Icon
BaustilBungalow
Fassade Icon
FassadePutz
Außenmaße Icon
Außenmaße89.6 m x 116.6 m
Dachform Icon
DachformSattel-/Giebeldach
Energiestandard Icon
EnergiestandardEffizienzhaus 40 EE
Pfeil nach unten linksWir schaffen Platz für Ihre Träume

Grundriss

no description
Perfect 86 Grundriss (EG)

Unser Team vor Ort

DAN-WOOD HouseFachberater*in bei Danwood S.A.
Default Avatar
Wir beraten Sie gerne!Arrow Icon

Kataloge

Danwood Mehrfamilienhäuser
Danwood S.A.

Danwood Mehrfamilienhäuser


Nachhaltig investieren - Entdecken Sie die Flexibilität und Individualität der Mehrfamilienhäuser von Danwood.
DAN-WOOD Family
Danwood S.A.

DAN-WOOD Family


DAN-WOOD Family bietet die optimale Lösung für Familien: familiengerechte Häuser zu familienfreundlichen Preisen.
Danwood NEXT Holiday
Danwood S.A.

Danwood NEXT Holiday


Sehnen Sie sich nach einem eigenen Rückzugsort in dem die Seele Ruhe findet? Genau diese Sehnsucht stillen die NEXT-Holiday Ferien- und Wochenendhäuser.
Danwood VISION Ausstattung
Danwood S.A.

Danwood VISION Ausstattung


In Zusammenarbeit mit dem renommierten dänischen Studio Jacob Jensen Design entstanden unsere exklusiven Vision-Häuser, die den wahren skandinavischen Stil verkörpern: Klare, moderne Formen mit durchdachter Funktionalität verbinden alle Elemente des Hauses zu einem vollkommenen Ganzen.
House and TreeParksHouse and PinHäuser liveHouse on HandAnbieter