1. AnbieterArrow Icon
  2. Danwood S.A.Arrow Icon
  3. Perfect 113
Slide 1
Slide 2
Slide 3
Slide 4
Slide 5
Slide 6
Slide 7
Slide 8
Slide 9
Slide 10
Slide 11
no description
Danwood S.A.Perfect 113
homeBungalow
livingArea113 m²
energyStandardEffizienzhaus 40 EE
Preis anfragen
Katalog bestellen

Perfect 113

Offenherzig

Herz, was willst Du mehr? Der kompakte Bungalow mit viel Stauraum, drei Schlafzimmern und einer Ankleide überzeugt in jeder Hinsicht. Mit einer großzügigen Diele und  – das ist das Highlight – Offenheit im Wohn-/Essbereich bis unters Dach inklusive teilverglastem Giebel. Das ergibt nicht nur ein tolles Raumgefühl mit viel Luft nach oben, sondern auch eine Architektur, die sich sehen lassen kann.

Hausdaten

Hausart Icon
HausartEinfamilienhaus
Bauweise Icon
BauweiseHolz-Tafelbau
Anzahl Räume Icon
Anzahl Räume4
Baustil Icon
BaustilBungalow
Fassade Icon
FassadePutz
Außenmaße Icon
Außenmaße115.6 m x 139.6 m
Wohnfläche Icon
Wohnfläche112.69 m²
Dachform Icon
DachformSattel-/Giebeldach
Energiestandard Icon
EnergiestandardEffizienzhaus 40 EE
Pfeil nach unten linksWir schaffen Platz für Ihre Träume

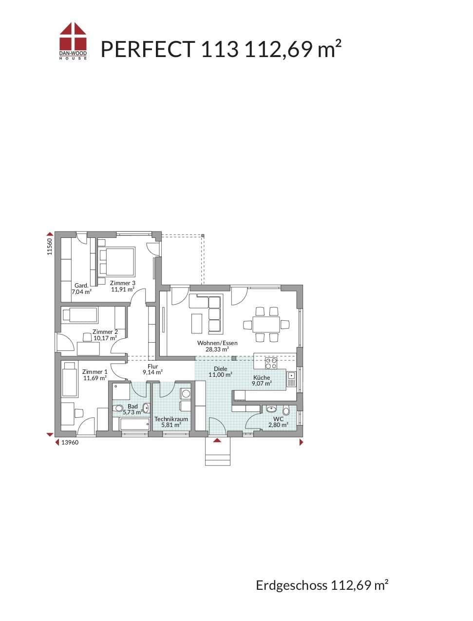
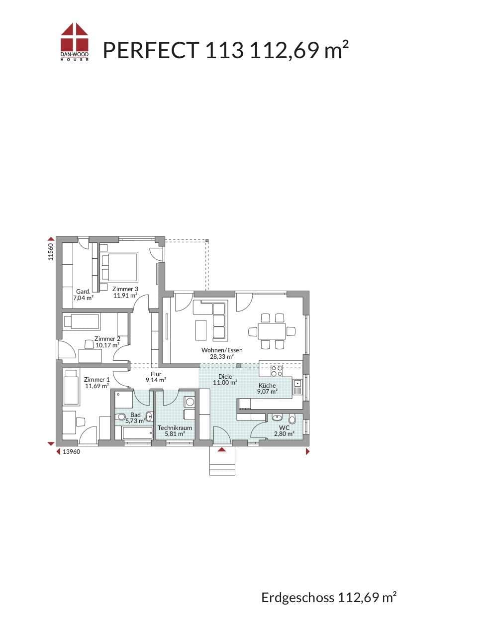
Grundriss

no description
Perfect 113 Grundriss (EG)

Unser Team vor Ort

DAN-WOOD HouseFachberater*in bei Danwood S.A.
Default Avatar
Wir beraten Sie gerne!Arrow Icon

Kataloge

Danwood Mehrfamilienhäuser
Danwood S.A.

Danwood Mehrfamilienhäuser


Nachhaltig investieren - Entdecken Sie die Flexibilität und Individualität der Mehrfamilienhäuser von Danwood.
DAN-WOOD Family
Danwood S.A.

DAN-WOOD Family


DAN-WOOD Family bietet die optimale Lösung für Familien: familiengerechte Häuser zu familienfreundlichen Preisen.
Danwood NEXT Holiday
Danwood S.A.

Danwood NEXT Holiday


Sehnen Sie sich nach einem eigenen Rückzugsort in dem die Seele Ruhe findet? Genau diese Sehnsucht stillen die NEXT-Holiday Ferien- und Wochenendhäuser.
Danwood VISION Ausstattung
Danwood S.A.

Danwood VISION Ausstattung


In Zusammenarbeit mit dem renommierten dänischen Studio Jacob Jensen Design entstanden unsere exklusiven Vision-Häuser, die den wahren skandinavischen Stil verkörpern: Klare, moderne Formen mit durchdachter Funktionalität verbinden alle Elemente des Hauses zu einem vollkommenen Ganzen.
House and TreeParksHouse and PinHäuser liveHouse on HandAnbieter