1. AnbieterArrow Icon
  2. Danwood S.A.Arrow Icon
  3. Danwood Aktionshaus Perfect 101
Slide 1
Slide 2
Slide 3
Slide 4
Slide 5
Slide 6
Slide 7
Slide 8
Slide 9
Slide 10
no description
Danwood S.A.Danwood Aktionshaus Perfect 101
homeBungalow
livingArea101 m²
energyStandardEffizienzhaus 40
Preis anfragen
Katalog bestellen

Danwood Aktionshaus Perfect 101

Das ideale Fertighaus für Familien und Paare

Das Danwood-Perfect 101 ist ein moderner, funktionaler Bungalow, das sich perfekt für Paare und kleine Familien eignet. Mit einer Wohnfläche von 101,02 m² bietet dieses Fertighaus ausreichend Platz für ein komfortables barrierefreies Leben auf einer Ebene. Das Haus besticht durch ein ansprechendes, minimalistisches Design mit klaren Linien.

Grundriss und Raumaufteilung

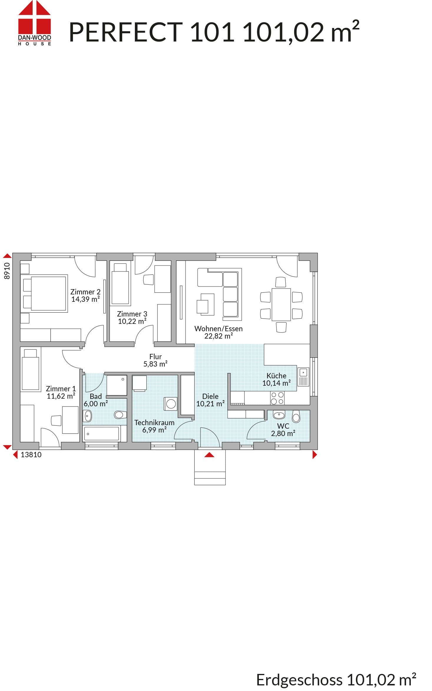
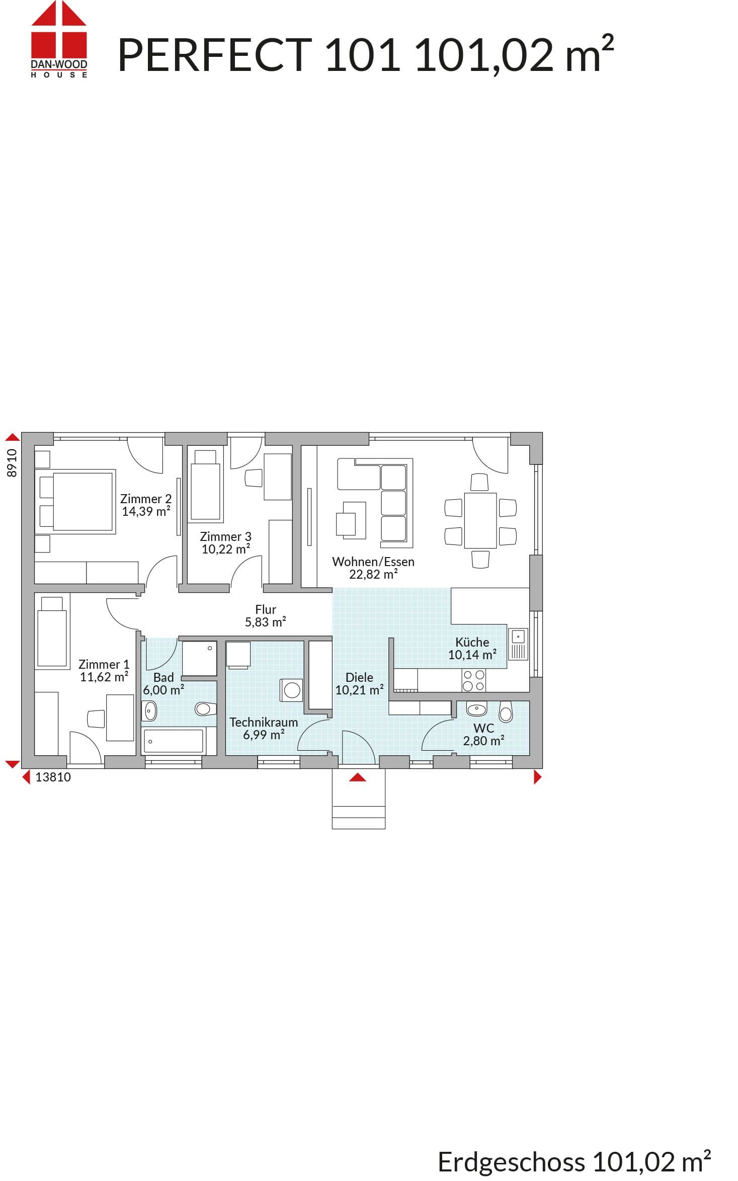
Das Danwood-Perfect 101 überzeugt mit durchdachter Raumaufteilung für Funktionalität als auch Komfort. Der großzügige Wohn- und Essbereich ist der zentrale Punkt des Hauses. Große Fensterfronten sorgen für viel Tageslicht und bieten einen direkten Zugang zur Terrasse und in den Garten. Eine offene Küche bietet ausreichend Platz für kulinarische Aktivitäten. Sie ist direkt mit dem Essbereich verbunden, was für eine angenehme Wohnatmosphäre sorgt. Das Hauptschlafzimmer bietet genügend Platz für ein großes Bett und Stauraum. Zwei weitere Zimmer können als Kinderzimmer, Gästezimmer oder Büro genutzt werden. Das Badezimmer verfügt über alle Annehmlichkeiten, die man sich für eine Auszeit wünscht inklusive Badewanne und bodenebener Dusche. Ein separates Gäste-WC erhöht den Komfort. Der Technikraum bietet Platz für Haustechnik und zusätzliche Stauräume. Die Diele und der Flur verbinden die verschiedenen Räume des Hauses auf harmonische Weise.

Haustechnik und Ausstattung

Das Danwood-Perfect 101 wird schlüsselfertig angeboten und umfasst alle wesentlichen Elemente für ein bezugsfertiges Zuhause. Im Preis inklusive ist eine Luft-Wasser-Wärmepumpe, eine Fußbodenheizung sowie eine zentrale Lüftungsanlage mit Wärmerückgewinnung. Diese modernen Technologien sorgen für ein energieeffizientes und komfortables Wohnklima und geringe Betriebskosten nach dem Einzug.

Aktionspreis: 207.200 € schlüsselfertig inklusive Maler, Fliesen, Sanitär, Vinyl, Teppichboden und Technikpaket (Luft-Wasser-Wärmepumpe + Fußbodenheizung + zentrale Lüftungsanlage mit Wärmerückgewinnung) ab Oberkante Bodenplatte

(gültig bis 31. August 2024, Abbildungen enthalten Sonderausstattungen, die nicht im Preis enthalten sind)

Mehr Informationen: https://www.danwood.de/de/projekte 

Hausdaten

Hausart Icon
HausartAktionshaus
Bauweise Icon
BauweiseHolz-Tafelbau
Anzahl Räume Icon
Anzahl Räume4
Baustil Icon
BaustilBungalow
Fassade Icon
FassadePutz
Außenmaße Icon
Außenmaße13.81 m x 8.91 m
Wohnfläche Icon
Wohnfläche101.02 m²
Dachform Icon
DachformSattel-/Giebeldach
Etagen Icon
Etagen1
Energiestandard Icon
EnergiestandardEffizienzhaus 40
Immobilientyp Icon
ImmobilientypPlanungsidee
Dachneigung Icon
Dachneigung25°
Mittlerer U-Wert Icon
Mittlerer U-Wert0.12 W/m²K
Hauseigenschaften Icon
HauseigenschaftenGästezimmer
Heizungsart Icon
HeizungsartWärmepumpe (Luft, Wasser, oder beides)
Pfeil nach unten linksWir schaffen Platz für Ihre Träume

Grundriss

perfect 101_DE.jpg
Danwood Aktionshaus Perfect 101 Grundriss (EG)Wohnfläche EG: 101,02 m²

Kataloge

Danwood: Mehrfamilienhäuser
Danwood S.A.

Danwood: Mehrfamilienhäuser


Danwood: Family
Danwood S.A.

Danwood: Family


Danwood: NEXT Holiday
Danwood S.A.

Danwood: NEXT Holiday


Danwood: VISION Ausstattung
Danwood S.A.

Danwood: VISION Ausstattung


House and TreeParksHouse and PinMusterhausHouse on HandAnbieter