1. AnbieterArrow Icon
  2. Danwood S.A.Arrow Icon
  3. Brave 180
Slide 1
Slide 2
Slide 3
Slide 4
Slide 5
Slide 6
no description
Danwood S.A.Brave 180
homeBungalow
livingArea178 m²
energyStandardEffizienzhaus 40 EE
Preis anfragen
Katalog bestellen

Brave 180

Ebenerdig mit Mehrwert

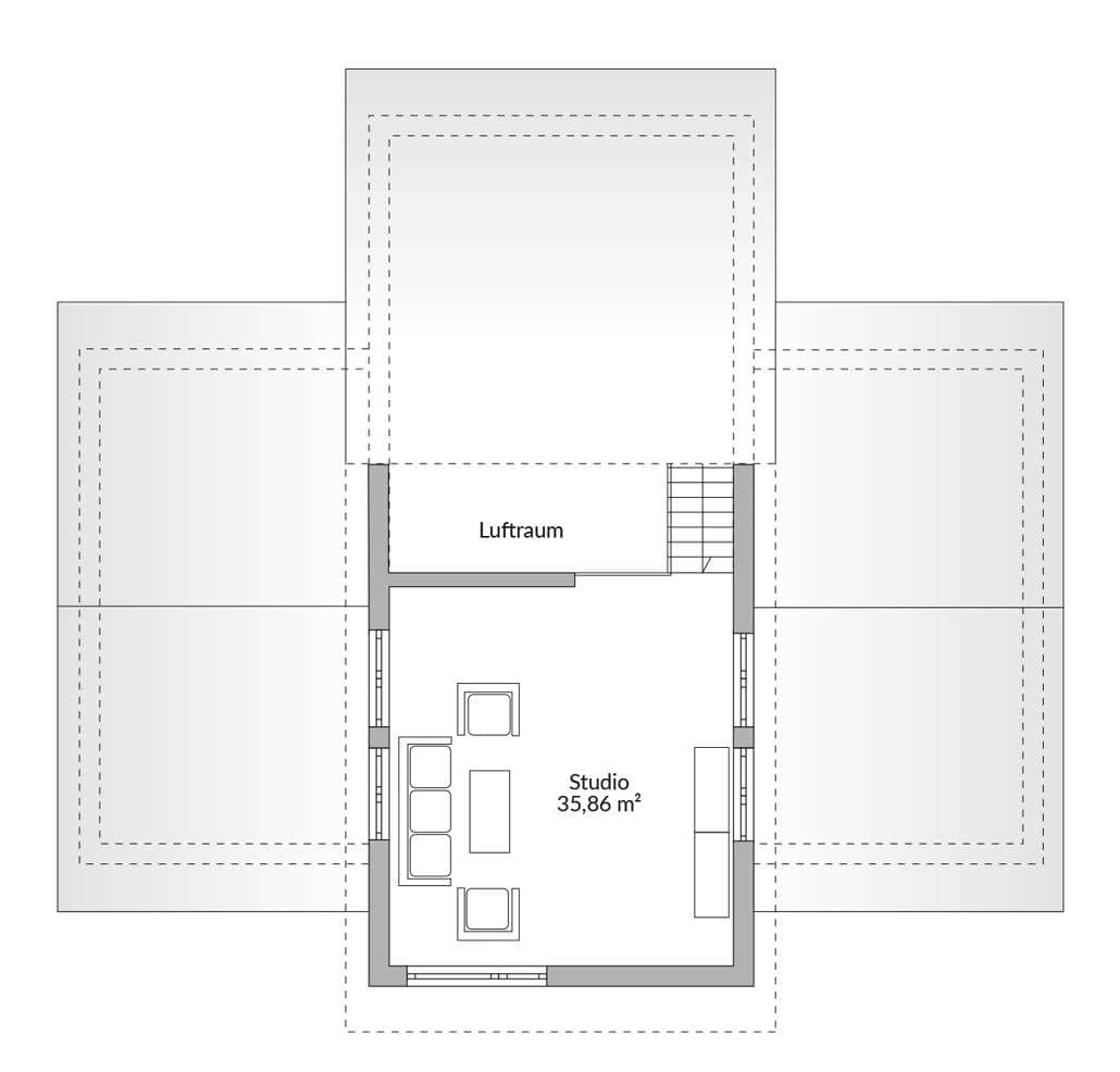
Der Bungalow Brave 180 ist dank der versetzten Pultdächer und des zusätzlichen „Hochsitzes“ ein besonders großzügiges Beispiel für ebenerdiges Wohnen. Auf einer Ebene ist alles untergebracht, was eine Familie braucht – bis hin zu zwei Kinderzimmern. Die zweite Ebene bietet ein großes Studio, aus dem man das Beste für sich machen kann: ein privates Fitnessstudio, ein Atelier, ein Reich für Kinder oder auch einen ungestörten Platz zum Arbeiten oder Lesen. Unsere Bauherren sind da erfinderisch – es ist auch schon das Elternschlafzimmer samt Bad und Ankleide nach oben verlegt worden. In jedem Fall bietet das offene Pultdach viel lichte Höhe im Wohnzimmer.

Hausdaten

Hausart Icon
HausartEinfamilienhaus
Bauweise Icon
BauweiseHolz-Tafelbau
Anzahl Räume Icon
Anzahl Räume4
Baustil Icon
BaustilBungalow
Fassade Icon
FassadePutz
Außenmaße Icon
Außenmaße16.17 m x 14.02 m
Wohnfläche Icon
Wohnfläche178.08 m²
Dachform Icon
DachformVersetztes Pultdach
Energiestandard Icon
EnergiestandardEffizienzhaus 40 EE
Pfeil nach unten linksWir schaffen Platz für Ihre Träume

Grundriss

no description
Brave 180 Grundriss (EG)
no description
Brave 180 Grundriss (DG)

Brave 180

360°Rundgang starten
no description

Unser Team vor Ort

DAN-WOOD HouseFachberater*in bei Danwood S.A.
Default Avatar
Wir beraten Sie gerne!Arrow Icon

Kataloge

Danwood Mehrfamilienhäuser
Danwood S.A.

Danwood Mehrfamilienhäuser


Nachhaltig investieren - Entdecken Sie die Flexibilität und Individualität der Mehrfamilienhäuser von Danwood.
DAN-WOOD Family
Danwood S.A.

DAN-WOOD Family


DAN-WOOD Family bietet die optimale Lösung für Familien: familiengerechte Häuser zu familienfreundlichen Preisen.
Danwood NEXT Holiday
Danwood S.A.

Danwood NEXT Holiday


Sehnen Sie sich nach einem eigenen Rückzugsort in dem die Seele Ruhe findet? Genau diese Sehnsucht stillen die NEXT-Holiday Ferien- und Wochenendhäuser.
Danwood VISION Ausstattung
Danwood S.A.

Danwood VISION Ausstattung


In Zusammenarbeit mit dem renommierten dänischen Studio Jacob Jensen Design entstanden unsere exklusiven Vision-Häuser, die den wahren skandinavischen Stil verkörpern: Klare, moderne Formen mit durchdachter Funktionalität verbinden alle Elemente des Hauses zu einem vollkommenen Ganzen.
House and TreeParksHouse and PinHäuser liveHouse on HandAnbieter