1. AnbieterArrow Icon
  2. Bien-ZenkerArrow Icon
  3. CONCEPT-M 152 Pfullingen
Slide 1
Location Icon
Slide 2
Location Icon
Slide 3
Location Icon
Slide 4
Location Icon
Slide 5
Location Icon
no description
Bien-ZenkerCONCEPT-M 152 Pfullingen
homeKlassische Familienhäuser
livingArea154 m²
energyStandardEffizienzhaus 40 Plus
Preis anfragen

CONCEPT-M 152 Pfullingen

Elegantes und repräsentatives Einfamilienhaus

Bien-Zenker Hausberatung – auch online! 
Individuelle Hausberatung im persönlichen Gespräch gibt es bei Bien-Zenker auch als Online-Konferenz. Geben Sie einfach Ihre Postleitzahl an und vereinbaren Sie einen Termin mit Ihrem Hausberater vor Ort! 
>>> Zur Online-Beratung


CONCEPT-M 152 Pfullingen

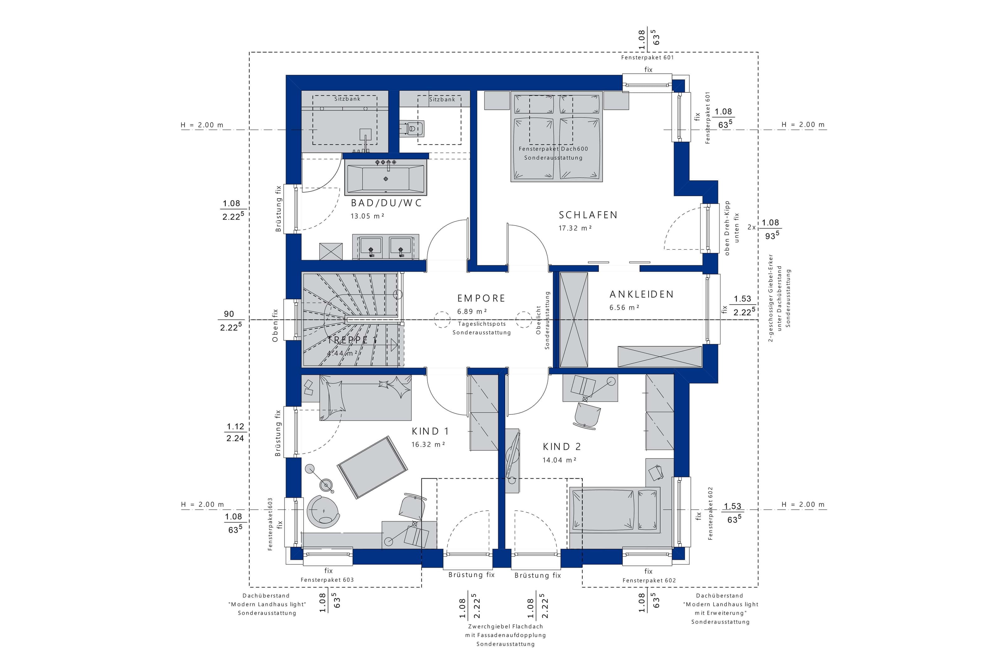
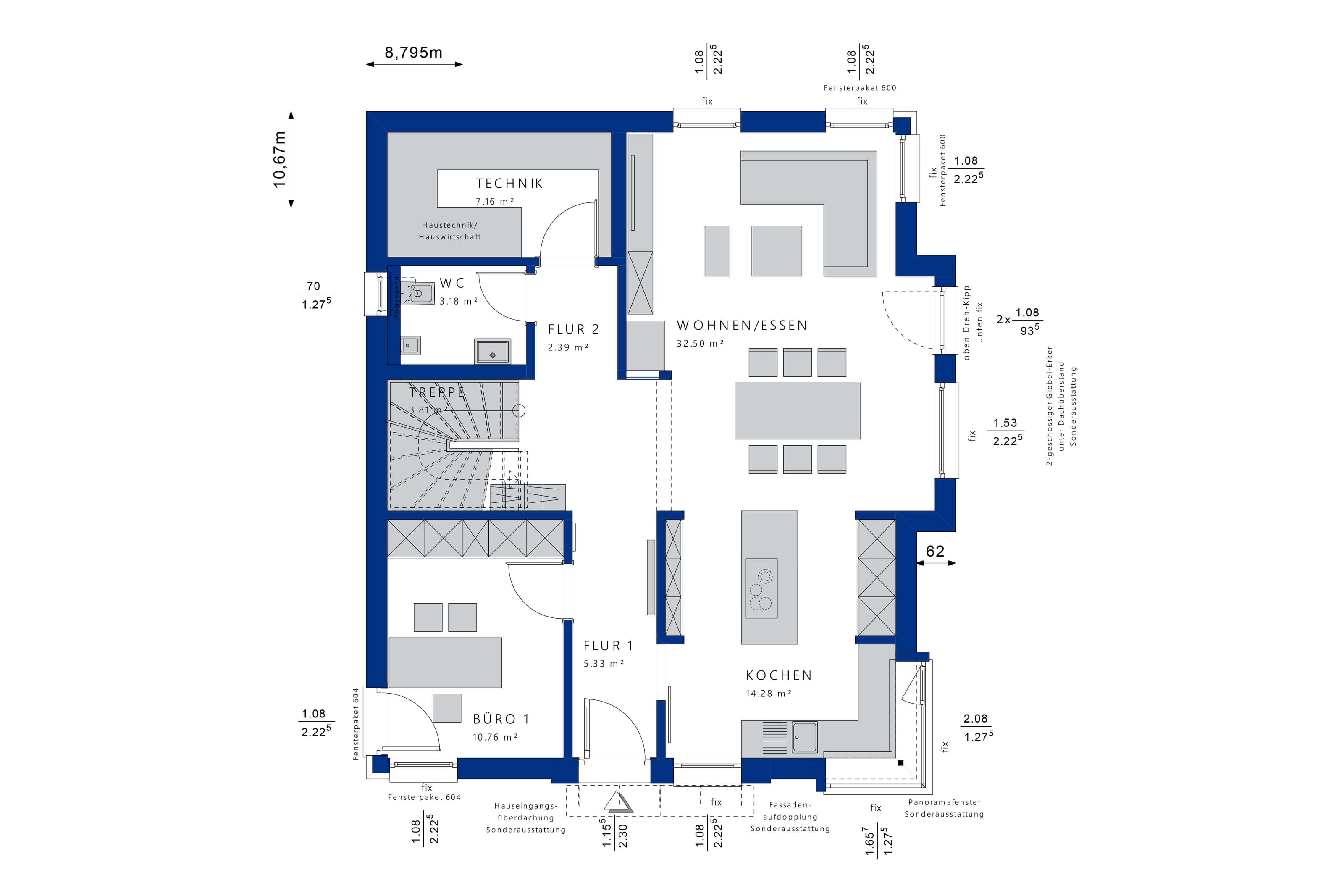
CONCEPT-M 152 bietet Ihnen modernes Wohnen auf höchstem Niveau. Von außen begeistert die repräsentative und zugleich moderne Architektur des Satteldachhauses mit vielen Highlights. Das Erdgeschoss bietet mit der offenen Küche und dem zentralen Küchenblock einen idealen Treffpunkt für die ganze Familie. Von hier eröffnet sich der lichtdurchflutete Wohn- und Essbereich, der zum Leben und Genießen einlädt. Im Obergeschoss bietet der Elternbereich mit separater Ankleide viel Privatsphäre zum Relaxen. Zwei schicke Kinderzimmer und das große Wellness-Bad runden die Raumaufteilung perfekt ab.

Dem CONCEPT-M 152 Pfullingen verleihen der Zwerchgiebel mit Flachdach im Eingangsbereich und die Kombination aus Design-Haustür mit Glas-Eingangsüberdachung eine ganz besondere Note. Ein Hingucker in Sachen Architektur und Nutzwert ist das Panorama-Design-Eckfenster in der Küche. Abgerundet wird das äußerst stimmige Gesamt-Design durch den 2-geschossigen Giebel-Erker, die vielen Design-Eckfenster und den Dachüberstand mit sichtbaren Pfetten. Die Wohlfühl-Klima-Heizung+ bietet höchsten Wohnkomfort bei minimalen Heizkosten und macht das CONCEPT-M 152 Pfullingen zu einem innovativen Effizienzhaus.

Der Preis bezieht sich auf die Ausbaustufe ZAF als Effizienzhaus 40 Plus inkl. Bodenplatte gemäß aktuell gültiger Bau- und Leistungsbeschreibung.

Grundrisse und Abbildungen können Extras zeigen. Flächenangaben nach DIN 277.

 

BAUEN MIT BIEN-ZENKER

Die fachkundigen Bien-Zenker Hausberaterinnen und Hausberater entwickeln gemeinsam mit Ihnen DAS HAUS als perfekten Mittelpunkt für Ihren Lebensraum und den Ihrer Familie. Ausgehend von Ihren Wünschen bzw. Ihrem favorisierten Planungsvorschlag wählen Sie gemeinsam einen Architekturstil und ein Wohnkonzept. Die individuelle Hausberatung hilft Ihnen bei der flexiblen Grundriss- und Wohnraumgestaltung sowie bei den zahlreichen Entscheidungen zur Innenausstattung. Außerdem bei der Auswahl eines innovativen Energiesparkonzepts mit eigener Photovoltaikanlage, Batterie und der passenden Haus- und Heizungstechnik. Damit leisten Sie einen aktiven Beitrag zum Klimaschutz und können sich von den stetig steigenden Energiepreisen abkoppeln

Ihr Haus ist rundum nachhaltig, weil Bien-Zenker bevorzugt regionale Rohstoffe einsetzt und so Transportwege spart. Dabei achtet der Fertighaushersteller genauso wie seine ausgewählten Lieferanten auf einen verantwortungsvollen und schonenden Umgang mit natürlichen Ressourcen. Geleitet vom Respekt für die Bedürfnisse kommender Generationen und der Leidenschaft, das für jede Baufamilie individuell passende, zukunftssichere Haus zu bauen, erschafft Bien-Zenker mit Ihnen gemeinsam den idealen neuen Mittelpunkt für Ihren zukünftigen Lebensraum. Für heute. Für die Zukunft. Denn jedes Bien-Zenker Haus ist mit dem Gold-Zertifikat der Deutschen Gesellschaft für Nachhaltiges Bauen – DGNB e.V. ausgezeichnet.

Darüber hinaus bietet Bien-Zenker seinen Bauherren umfangreiche Inklusiv-Leistungen wie Grundstücks-, Finanzierungs- und Architektenservices sowie ein umfassendes PREMIUM-Versicherungspaket. Um Ihr Projekt Hausbau für Sie so einfach und reibungslos wie möglich zu machen, hat Bien-Zenker außerdem als erster Fertighaushersteller eine Bauherren-App entwickelt, mit der Sie alle Unterlagen und die aktuellen Informationen zu Ihrem Bauprojekt immer online greifbar haben.

Für die Qualität und Zukunftsfähigkeit seiner Häuser sowie die Innovationskraft des gesamten Unternehmens wird Bien-Zenker regelmäßig mit renommierten Preisen ausgezeichnet, zum Beispiel als „Fairster Fertighausanbieter“ (FOCUS-MONEY 2021), als „Deutschlands Kundenchampion“ (F.A.Z.-Institut 2024) oder mit dem Plus X Award („Most Innovative Brand“ 2021). Die positiven Erfahrungen unzähliger Bien-Zenker Bauherren sprechen ebenfalls eine deutliche Sprache.

Weitere Informationen erhalten Sie unter: www.bien-zenker.de

Hausdaten

Hausart Icon
HausartEinfamilienhaus
Bauweise Icon
BauweiseHolz-Tafelbau
Anzahl Räume Icon
Anzahl Räume5
Baustil Icon
BaustilKlassische Familienhäuser
Fassade Icon
FassadePutz
Wohnfläche Icon
Wohnfläche154 m²
Dachform Icon
DachformSattel-/Giebeldach
Energiestandard Icon
EnergiestandardEffizienzhaus 40 Plus
Immobilientyp Icon
ImmobilientypMusterhaus
Dachneigung Icon
Dachneigung25°
Kniestock Icon
Kniestock1.6 m
Hauseigenschaften Icon
HauseigenschaftenGästezimmer
Hausdämmstoff Icon
HausdämmstoffMineralfaser (Glaswolle, Steinwolle)
Heizungsart Icon
HeizungsartGas-Brennwertheizung
Pfeil nach unten linksWir schaffen Platz für Ihre Träume

Grundriss

no description
CONCEPT-M 152 Pfullingen Grundriss (EG)Wohnfläche EG: 77,75 m²
no description
CONCEPT-M 152 Pfullingen Grundriss (DG)Wohnfläche DG: 76,25 m²

CONCEPT-M 152 Pfullingen

360°Rundgang starten
no description

Unser Team vor Ort

Bien-Zenker Online-BeratungFachberater*in bei Bien-Zenker
no description
Wir beraten Sie gerne!Arrow Icon
Bien-Zenker Pfullingen

Die fachkundigen Bien-Zenker Hausberaterinnen und Hausberater entwickeln gemeinsam mit Ihnen Ihren individuellen Lebensraum und unterstützen Sie mit Rat und Tat bei der Suche nach dem perfekten Grundstück und der passenden Finanzierung sowie allen Fragen rund um den Bau Ihres Traumhauses.

B-Z_400x400.jpg
House and TreeParksHouse and PinMusterhausHouse on HandAnbieter