1. AnbieterArrow Icon
  2. Bien-ZenkerArrow Icon
  3. CELEBRATION 207 V2
Slide 1
Slide 2
Slide 3
no description
Bien-ZenkerCELEBRATION 207 V2
homeKlassische Familienhäuser
livingArea109 m²
energyStandardEffizienzhaus 40 Plus
Preis anfragen
Katalog bestellen

CELEBRATION 207 V2

Tolles Mehrgenerationenhaus mit Übereck-Erker für mehr Platz zum Leben

Bien-Zenker Hausberatung – auch online! 
Individuelle Hausberatung im persönlichen Gespräch gibt es bei Bien-Zenker auch als Online-Konferenz. Geben Sie einfach Ihre Postleitzahl an und vereinbaren Sie einen Termin mit Ihrem Hausberater vor Ort! 
>>> Zur Online-Beratung


CELEBRATION 207 V2

Das moderne Zweifamilienhaus kombiniert das Wohnen von zwei Familien unter einem Dach besonders intelligent und praktisch und ist damit ein echtes Mehrgenerationenhaus, das vor allem mit attraktiver Architektur und großer Vielfalt überzeugt. CELEBRATION 207 bietet zwei ansprechende Wohnungen, die dank einer intelligenten Raumaufteilung hohen Wohnkomfort, optimiertes Wohnen für zwei Familien und die nötige Privatsphäre perfekt miteinander verbinden. Die große Hauptwohnung, die sich über das Erd- und das Obergeschoss erstreckt, erlaubt mit vier Schlafzimmern und zwei Bädern Platz für eine große Familie. Die freundliche Einliegerwohnung mit einer Wohnfläche von ca. 50 Quadratmetern und separatem Eingang ist ideal für zwei Personen. Mit dem Hauskonzept CELEBRATION 207 entsteht für Sie Ihr persönliches und individuelles Traumhaus.

Der Preis bezieht sich auf die Ausbaustufe ZAF als Effizienzhaus 40 Plus inkl. Bodenplatte gemäß aktuell gültiger Bau- und Leistungsbeschreibung.

Grundrisse und Abbildungen können Extras zeigen. Flächenangaben nach DIN 277.

 

BAUEN MIT BIEN-ZENKER

Die fachkundigen Bien-Zenker Hausberaterinnen und Hausberater entwickeln gemeinsam mit Ihnen DAS HAUS als perfekten Mittelpunkt für Ihren Lebensraum und den Ihrer Familie. Ausgehend von Ihren Wünschen bzw. Ihrem favorisierten Planungsvorschlag wählen Sie gemeinsam einen Architekturstil und ein Wohnkonzept. Die individuelle Hausberatung hilft Ihnen bei der flexiblen Grundriss- und Wohnraumgestaltung sowie bei den zahlreichen Entscheidungen zur Innenausstattung. Außerdem bei der Auswahl eines innovativen Energiesparkonzepts mit eigener Photovoltaikanlage, Batterie und der passenden Haus- und Heizungstechnik. Damit leisten Sie einen aktiven Beitrag zum Klimaschutz und können sich von den stetig steigenden Energiepreisen abkoppeln

Ihr Haus ist rundum nachhaltig, weil Bien-Zenker bevorzugt regionale Rohstoffe einsetzt und so Transportwege spart. Dabei achtet der Fertighaushersteller genauso wie seine ausgewählten Lieferanten auf einen verantwortungsvollen und schonenden Umgang mit natürlichen Ressourcen. Geleitet vom Respekt für die Bedürfnisse kommender Generationen und der Leidenschaft, das für jede Baufamilie individuell passende, zukunftssichere Haus zu bauen, erschafft Bien-Zenker mit Ihnen gemeinsam den idealen neuen Mittelpunkt für Ihren zukünftigen Lebensraum. Für heute. Für die Zukunft. Denn jedes Bien-Zenker Haus ist mit dem Gold-Zertifikat der Deutschen Gesellschaft für Nachhaltiges Bauen – DGNB e.V. ausgezeichnet.

Darüber hinaus bietet Bien-Zenker seinen Bauherren umfangreiche Inklusiv-Leistungen wie Grundstücks-, Finanzierungs- und Architektenservices sowie ein umfassendes PREMIUM-Versicherungspaket. Um Ihr Projekt Hausbau für Sie so einfach und reibungslos wie möglich zu machen, hat Bien-Zenker außerdem als erster Fertighaushersteller eine Bauherren-App entwickelt, mit der Sie alle Unterlagen und die aktuellen Informationen zu Ihrem Bauprojekt immer online greifbar haben.

Für die Qualität und Zukunftsfähigkeit seiner Häuser sowie die Innovationskraft des gesamten Unternehmens wird Bien-Zenker regelmäßig mit renommierten Preisen ausgezeichnet, zum Beispiel als „Fairster Fertighausanbieter“ (FOCUS-MONEY 2021), als „Deutschlands Kundenchampion“ (F.A.Z.-Institut 2024) oder mit dem Plus X Award („Most Innovative Brand“ 2021). Die positiven Erfahrungen unzähliger Bien-Zenker Bauherren sprechen ebenfalls eine deutliche Sprache.

Weitere Informationen erhalten Sie unter: www.bien-zenker.de

Hausdaten

Hausart Icon
HausartZweifamilienhaus
Bauweise Icon
BauweiseHolz-Tafelbau
Anzahl Räume Icon
Anzahl Räume6
Baustil Icon
BaustilKlassische Familienhäuser
Fassade Icon
FassadePutz
Wohnfläche Icon
Wohnfläche108.5 m²
Dachform Icon
DachformSattel-/Giebeldach
Energiestandard Icon
EnergiestandardEffizienzhaus 40 Plus
Immobilientyp Icon
ImmobilientypPlanungsidee
Dachneigung Icon
Dachneigung25°
Hauseigenschaften Icon
HauseigenschaftenGästezimmer
Hausdämmstoff Icon
HausdämmstoffMineralfaser (Glaswolle, Steinwolle)
Heizungsart Icon
HeizungsartGas-Brennwertheizung
Pfeil nach unten linksWir schaffen Platz für Ihre Träume

Grundriss

no description
CELEBRATION 207 V2 Grundriss (EG)Wohnfläche EG: 103,33 m²
no description
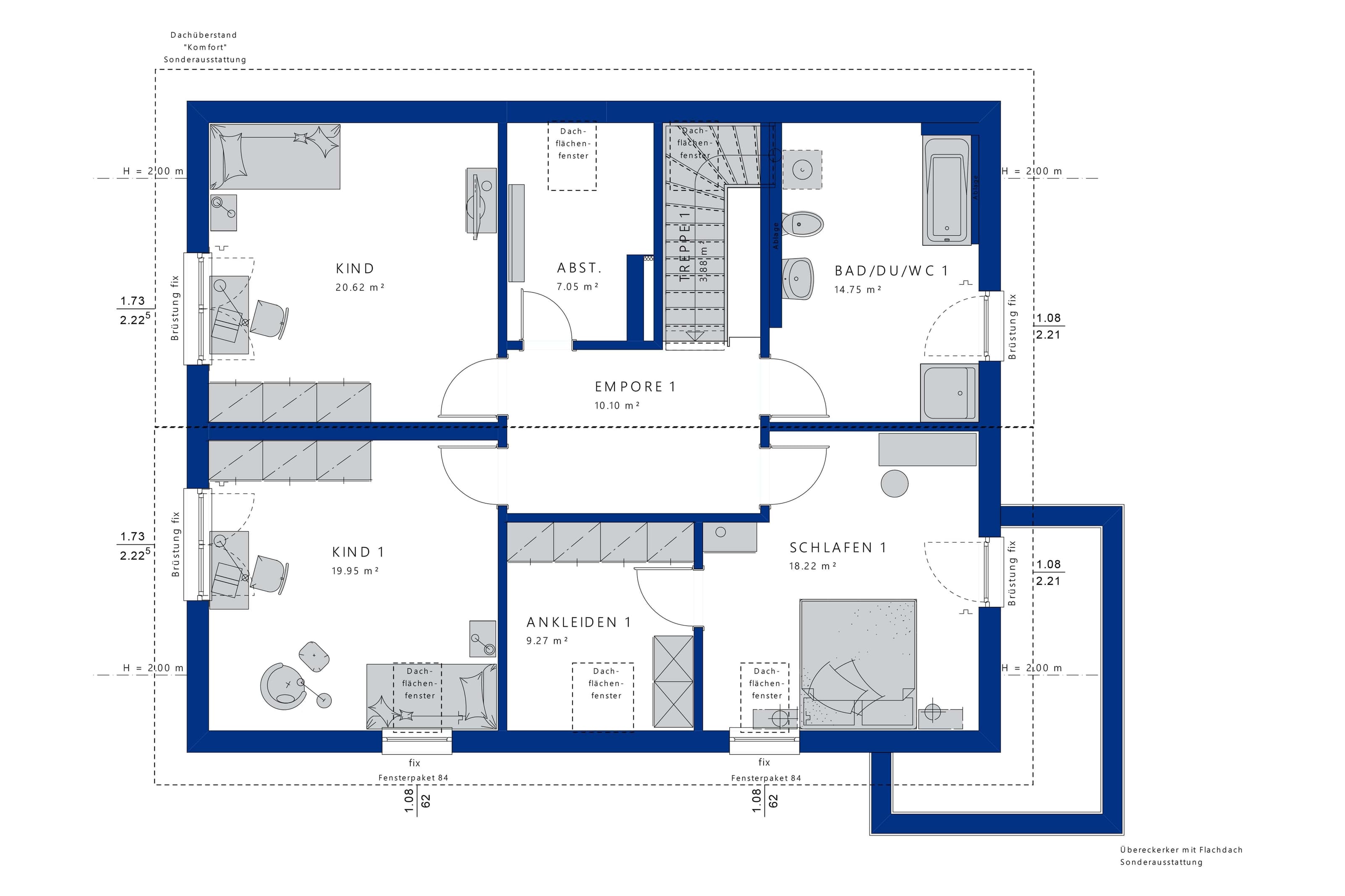
CELEBRATION 207 V2 Grundriss (DG)Wohnfläche DG: 105,17 m²

Unser Team vor Ort

Bien-Zenker Online-BeratungFachberater*in bei Bien-Zenker
no description
Wir beraten Sie gerne!Arrow Icon
Bien-ZenkerFachberater*in bei Bien-Zenker
Default Avatar

Kataloge

Bien-Zenker: Hauskatalog
Bien-Zenker

Bien-Zenker: Hauskatalog


House and TreeParksHouse and PinMusterhausHouse on HandAnbieter