1. AnbieterArrow Icon
  2. BAUFRITZArrow Icon
  3. Musterhaus Remiger
Slide 1
Slide 2
Slide 3
Slide 4
Slide 5
Baufritz Logo
BAUFRITZMusterhaus Remiger
homeKlassische Familienhäuser
livingArea130 m²
energyStandardEffizienzhaus 55
Preis anfragen
Katalog bestellen

Musterhaus Remiger

Landlust mit Mehrwert

Ein Werbefilmer und Creative Director lebt mit seiner Frau, einer Grundschullehrerin, schon viele Jahre in der Bayerischen Landeshauptstadt im Zentrum, beide arbeiten und wohnen in der Innenstadt. Mittlerweile haben sie zwei Kinder. Aufgewachsen ist das Paar in der Kleinstadt Lauingen, inmitten des Donautals im bayerischen Schwaben. Weil die beiden immer noch sehr mit dieser Region verbunden sind, ihre Eltern und viele Freunde leben dort, kaufte der junge Familienvater schon 2010 ein über 2300 Quadratmeter großes Gartengrundstück mit einem kleinen Schuppen. Hier verbrachte er mit seiner Frau und seinen beiden Söhnen die Freizeit. Auf dem Anwesen in Alleinlage wurde getobt, gespielt und Gemüse angebaut.
Letztes Jahr entschloss sich das Paar dort ein Haus zu bauen, denn in München konnten sie sich ihren Traum von der eigenen Immobilie nicht leisten. Mittlerweile kostet Baugrund in guter Lage zwischen 1200 bis 2600 Euro pro Quadratmeter. Und in die Außenbezirke mit täglichen Fahrtzeiten von über einer Stunde und mehr wollte das Paar auch nicht ziehen. Aber es gab noch einen dritten Grund: „Die Stadt bietet kaum noch Ruhe und Freiräume“, resümiert der Bauherr.

Ihr neues Domizil, kaum hundert Meter vom Ufer der Donau entfernt, nutzt die Familie so oft sie kann, an den Wochenenden oder in den Schulferien. Die Projekte des ökologischen Designhausanbieters Baufritz verfolgte der Kreative schon fast 20 Jahre. Die Bauqualität und der hohe ästhetische Anspruch des renommierten Hausherstellers standen außer Frage. Die schadstofffreie Biodämmung aus Hobelspänen und die patentierte Elektrosmog-Schutzebene, die zwischen 95 bis 99% Prozent aller hochfrequenten Mobilfunkstrahlen abhält, waren unschlagbare Vorteile. So war von Anfang an klar: Wenn ein neues Haus, dann nur mit Baufritz. „Ich habe einen Partner gesucht, auf den ich mich voll verlassen kann. Es ist eine Gefühlssache“, meint der erfolgreiche Werbefachmann. „Ich wollte nicht wochenlang von Fliesenleger zu Fliesenleger und von einem Maler zum nächsten, um Angebote einzuholen. Hier wusste ich, dass ich auch bei der Bemusterung gute Qualität bekomme und nicht unter 27 Produkten ein gutes rausfiltern muss.“

Die erste Idee war, einen Ferienbungalow zu bauen, plus Schlafkojen im Ober-geschoss. Als der von Baufritz beauftragte erfahrene Architekt Reiner Bayer eines Abends zu Besuch kam, bat der Bauherr ihn in seinen Gartenschuppen, der Heizlüfter schnurrte leise vor sich hin und wärmte die beiden. Nach einem ersten intensiven Gespräch kristallisierte sich heraus, dass ein voll funktionsfähiges Haus für die Zukunft doch mehr Sinn macht und dann auch nicht so viel teurer ist wie der zunächst angedachte Rückzugsort. Es ist zudem nachhaltiger, weil es viel länger Bestand hat und sich bei Bedarf leichter veräußern lässt.

Ein ganz wichtiger Aspekt war für die Bauherren auch die Anbindung in die Natur. Der Neubau sollte von den Entwürfen des österreichisch-amerikanischen Architekten Richard Neutra inspiriert sein, mit ineinander übergehenden Räumen und großen Fenstern, die das Gefühl vermitteln, mitten im Garten zu sitzen. Diese Wunsch-vorstellungen fanden in dem minimalistischen Satteldachhaus mit rund 130 Quadratmetern Wohnfläche, das durch seine äußere Schlichtheit zeitlos modern wirkt, seine Entsprechung. Es erhielt eine vorvergraute Holzfassade, denn das Paar wollte keine Verschalung, die sich erst nach acht oder zehn Jahren natürlich in ein helles Anthrazit verwandelt. Damit die Fläche homogen erscheint, ließ das Paar auch die Haustüre mit demselben Holz verkleiden. Drei großformatige Glaselemente verbinden das Erdgeschoss mit dem Garten. „Um den alten Apfelbaum und die Linde erhalten zu können, musste die Terrasse auf der Südwestseite dazwischen schräg eingefädelt werden“, erzählt der Bauherr. Drei Treppenstufen gleichen beim Eingang und der zweiten Eingangstüre an der Giebelseite den Niveauunterschied aus: Weil das Gebäude im Gefährdungsbereich eines Jahrhunderthochwassers steht, das im statistischen Mittel einmal alle 100 Jahre erreicht oder überschritten wird, musste es um etwa 80 Zentimeter erhöht werden.

Die Wohnküche avancierte ganz schnell zum kommunikativen Zentrum der Familie. Das Sitzfenster ist der Lieblingsplatz von allen. Es ersetzt eine Bank vor dem Esstisch. Der Familienvater hat die ehemalige Werkbank abgeschliffen und weiß lasiert. Auf ihr darf gemalt, gebastelt und gespielt werden. In der Nische gegenüber mit dem Hochschrank in dem Geschirr und Gläser verstaut sind, fügten die Küchenbauer einen Backofen in Stehhöhe passgenau ein. Die quer gestellten Küchentresen wurden mit Altholz verkleidet und stellen so optisch die Verbindung zur Fassade her. Als Spritzschutz wählten die Bauherren glasierte Metrofliesen. Die zweite Eingangstüre daneben möchten die Eigentümer nicht mehr missen: Alle Einkäufe landen sofort in der Küche und müssen nicht durchs ganze Erdgeschoss getragen werden. Die einläufige Treppe zwischen Ess- und Wohnbereich fungiert als optische und räumliche Trennung. Sie führt in das Obergeschoss mit den beiden Kinderzimmern, dem Elternschlafzimmer und Bad. Die Bauherren entschieden sich bewusst für Sichtbeton, um einen Kontrapunkt zur Rustikalität des Eichenbodens zu setzten. Als Absturzsicherung und attraktiver Ersatz für ein Geländer dienen zwei Glasplatten. Im lichtdurchfluteten Wohnzimmer mit einem bodentiefen Panorama-fenster relaxt die Familie. Die fröhlichen Pandabären über der alten Kommode, einem Erbstück, sind ein Kunstwerk der Hausherrin. In dieser ländlichen Atmosphäre kann sie besonders kreativ sein und umgeben von Natur neue Inspiration schöpfen.

  

Hausdaten

Hausart Icon
HausartEinfamilienhaus
Bauweise Icon
BauweiseHolz-Tafelbau
Anzahl Räume Icon
Anzahl Räume5
Baustil Icon
BaustilKlassische Familienhäuser
Fassade Icon
FassadeHolz
Außenmaße Icon
Außenmaße11.33 m x 7.58 m
Wohnfläche Icon
Wohnfläche130 m²
Dachform Icon
DachformSattel-/Giebeldach
Etagen Icon
Etagen2
Energiestandard Icon
EnergiestandardEffizienzhaus 55
Immobilientyp Icon
ImmobilientypKundenhaus
Dachneigung Icon
Dachneigung25°
Kniestock Icon
Kniestock2.35 m
Heizungsart Icon
HeizungsartWärmepumpe (Luft, Wasser, oder beides)
Pfeil nach unten linksWir schaffen Platz für Ihre Träume

Grundriss

no description
Musterhaus Remiger Grundriss (EG)Wohnfläche EG: 66 m²
no description
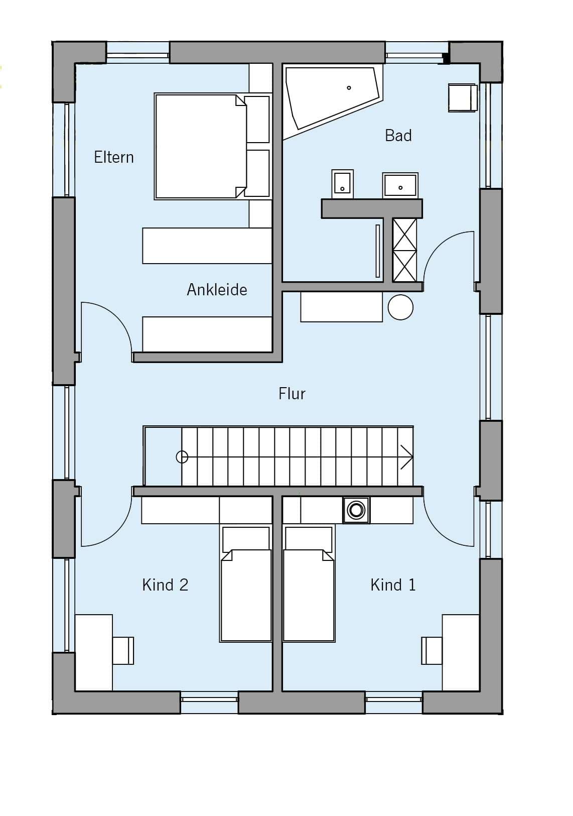
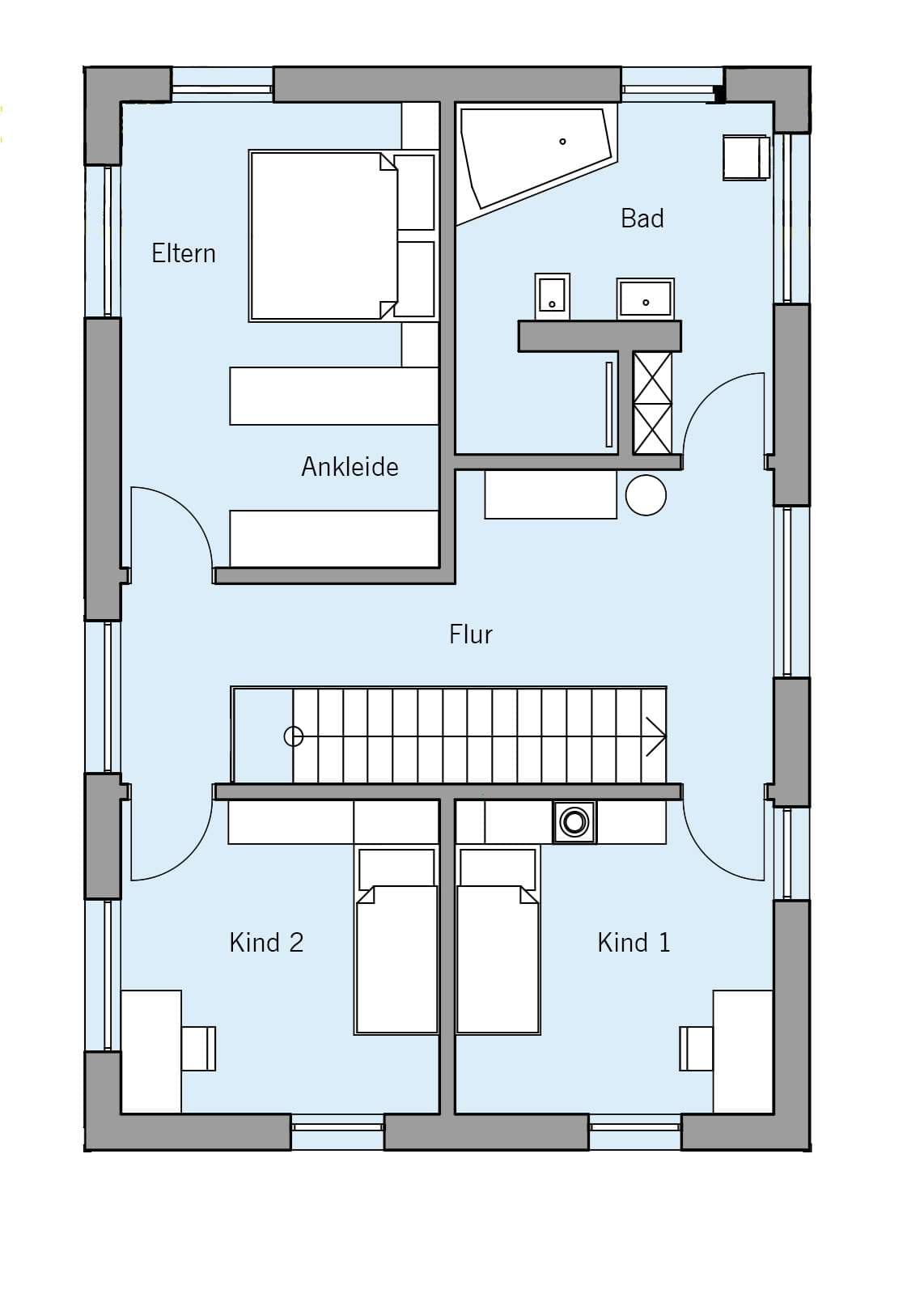
Musterhaus Remiger Grundriss (DG)Wohnfläche DG: 64 m²

Unser Team vor Ort

Baufritz Team ErkheimFachberater*in bei BAUFRITZ
Default Avatar
Wir beraten Sie gerne!Arrow Icon
House and TreeParksHouse and PinMusterhausHouse on HandAnbieter