1. AnbieterArrow Icon
  2. WeberHausArrow Icon
  3. Extravagantes Pultdachhaus ohne Dachüberstand
Slide 1
Slide 2
Slide 3
Slide 4
Slide 5
Slide 6
Slide 7
Slide 8
Logo WeberHaus
WeberHausExtravagantes Pultdachhaus ohne Dachüberstand
homeKlassische Familienhäuser
livingArea130 m²
energyStandardEffizienzhaus 40 Plus
Preis anfragen
Katalog bestellen

Extravagantes Pultdachhaus ohne Dachüberstand

Das extravagante Pultdach ohne Dachüberstand zieht bereits alle Blicke auf sich – einzigartig für das in Baden-Württemberg gelegene Wohngebiet. Als ein Unikat wollten die Bauherren ihr individuell geplantes Architektenhaus gestalten. Bereits der Carport, der bei Bedarf als überdachte Partyfläche diente, ist etwas Außergewöhnliches. „Wir haben unser Haus exakt auf unsere Bedürfnisse zugeschnitten und unseren Geschmack entsprechend umgesetzt“, berichtet das Paar stolz.

Hausdaten

Hausart Icon
HausartEinfamilienhaus
Bauweise Icon
BauweiseHolz-Tafelbau
Anzahl Räume Icon
Anzahl Räume6
Baustil Icon
BaustilKlassische Familienhäuser
Fassade Icon
FassadePutz
Außenmaße Icon
Außenmaße6.63 m x 11.63 m
Wohnfläche Icon
Wohnfläche130.19 m²
Dachform Icon
DachformPultdach
Etagen Icon
Etagen2
Energiestandard Icon
EnergiestandardEffizienzhaus 40 Plus
Immobilientyp Icon
ImmobilientypKundenhaus
Dachneigung Icon
Dachneigung15°
Kniestock Icon
Kniestock2.67 m
Mittlerer U-Wert Icon
Mittlerer U-Wert0.11 W/m²K
Hauseigenschaften Icon
HauseigenschaftenGästezimmer
Hausdämmstoff Icon
HausdämmstoffMineralfaser (Glaswolle, Steinwolle)
Heizungsart Icon
HeizungsartGas-Brennwertheizung
Pfeil nach unten linksWir schaffen Platz für Ihre Träume

Grundriss

no description
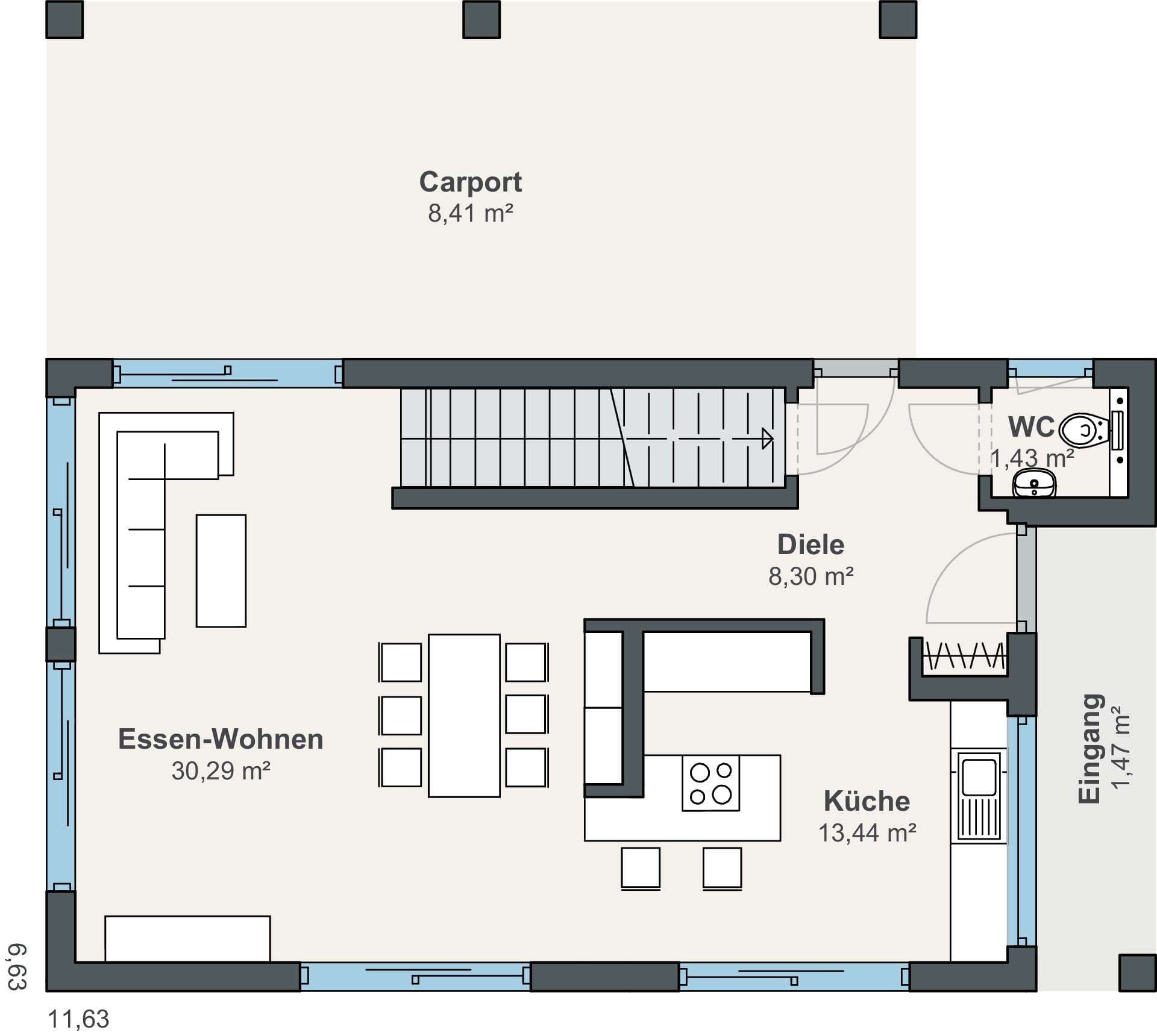
Extravagantes Pultdachhaus ohne Dachüberstand Grundriss (EG)Wohnfläche EG: 54,93 m²
no description
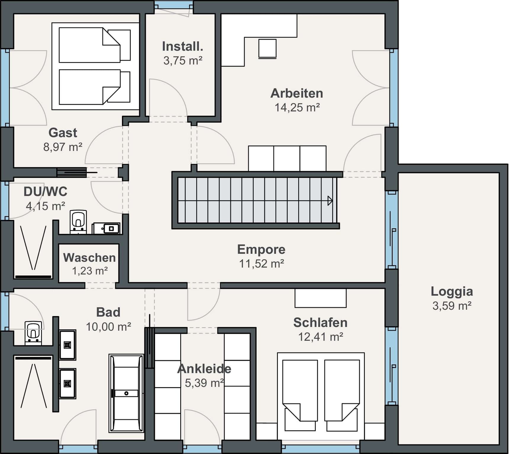
Extravagantes Pultdachhaus ohne Dachüberstand Grundriss (OG)Wohnfläche OG: 75,26 m²

Kataloge

WeberHaus: OPTION
WeberHaus

WeberHaus: OPTION


WeberHaus: Objektbau Katalog
WeberHaus

WeberHaus: Objektbau Katalog


WeberHaus: Hauskatalog
WeberHaus

WeberHaus: Hauskatalog


House and TreeParksHouse and PinMusterhausHouse on HandAnbieter