1. AnbieterArrow Icon
  2. Sonnleitner HolzbauwerkeArrow Icon
  3. Kundenhaus 'Bäumler'
Slide 1
Slide 2
Slide 3
Slide 4
Slide 5
Slide 6
Sonnleitner_Logo_2.jpg
Sonnleitner HolzbauwerkeKundenhaus 'Bäumler'
homeKubushäuser im Bauhausstil
livingArea143 m²
energyStandardEffizienzhaus 55
Preis anfragen
Katalog bestellen

Kundenhaus 'Bäumler'

Schmal und langgestreckt präsentiert sich dieser frei geplante Entwurf. 

Hinter der weißen Putzfassade verbirgt sich allerdings eine ungewöhnliche Holzkonstruktion mit hohem ökologischem Anspruch.

Bei diesem individuellen Hanghaus, das in der vorbildlichen Siedlung „ecoQuartier Pfaffenhofen“ steht, muss man schon etwas genauer hinschauen, um den Hintergrund zu klären. Das Quartier steht für ein einzigartiges Stadtentwicklungskonzept, bei dem die Schwerpunkte Ökologie, Ökonomie und soziale Aspekte miteinander verknüpft sind. Das stellt u.a. besondere Herausforderungen an die Bebauung.

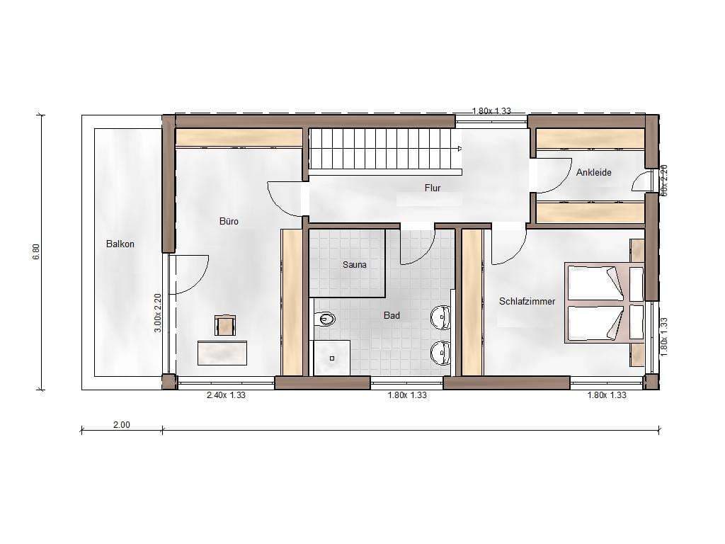
Auf insgesamt ca. 161 m2 werden zwei fast gleich große Wohnebenen ausgewiesen. Die Raumaufteilung zeigt sich ohne Überraschungen. Eine abgeschottete Diele mit Windfang-Charakter, ein offener Wohn-, Esszimmerbereich mit Küche, und dann auf der zweiten Ebene der Elterntrakt mit Ankleide, einem kombinierten Sauna-/Badbereich sowie ein Büro mit Balkon. Ökonomisch und formschön zugleich: Eine einläufige, gerade Treppe verbindet die beiden Ebenen.

Der Energiestandard wird mit KfW 55 angegeben, beheizt wird mit Fernwärme . Störende Heizkörper treten nicht in Erscheinung, denn die Wärmeabgabe erfolgt über eine Fußbodenheizung. Alles in allem also ein recht ungewöhnliches Öko-Haus im zeitlosen Bauhaus-Look, das sicherlich nicht den üblichen Vorstellungen entspricht.

Weitere Infos und Impressionen

Hausdaten

Hausart Icon
HausartEinfamilienhaus
Bauweise Icon
BauweiseMassivholzkonstruktion
Anzahl Räume Icon
Anzahl Räume7
Baustil Icon
BaustilKubushäuser im Bauhausstil
Fassade Icon
FassadePutz
Außenmaße Icon
Außenmaße14.3 m x 6.8 m
Wohnfläche Icon
Wohnfläche142.85 m²
Dachform Icon
DachformPultdach
Energiestandard Icon
EnergiestandardEffizienzhaus 55
Immobilientyp Icon
ImmobilientypKundenhaus
Dachneigung Icon
Dachneigung
Kniestock Icon
Kniestock2.8 m
Hauseigenschaften Icon
HauseigenschaftenTerasse
Hausdämmstoff Icon
HausdämmstoffHolzfaser- und Zellulosedämmstoffe
Heizungsart Icon
HeizungsartGas-Brennwertheizung
Pfeil nach unten linksWir schaffen Platz für Ihre Träume

Grundriss

Der Grundriss des EGs des schmalen, modernen Holzhauses mit mineralischem Putz und Farbakzenten
Kundenhaus 'Bäumler' Grundriss (EG)Wohnfläche EG: 64,76 m²
Der Grundriss des OGs des schmalen, modernen Holzhauses mit mineralischem Putz und Farbakzenten
Kundenhaus 'Bäumler' Grundriss (OG)Wohnfläche OG: 78,09 m²
House and TreeParksHouse and PinMusterhausHouse on HandAnbieter