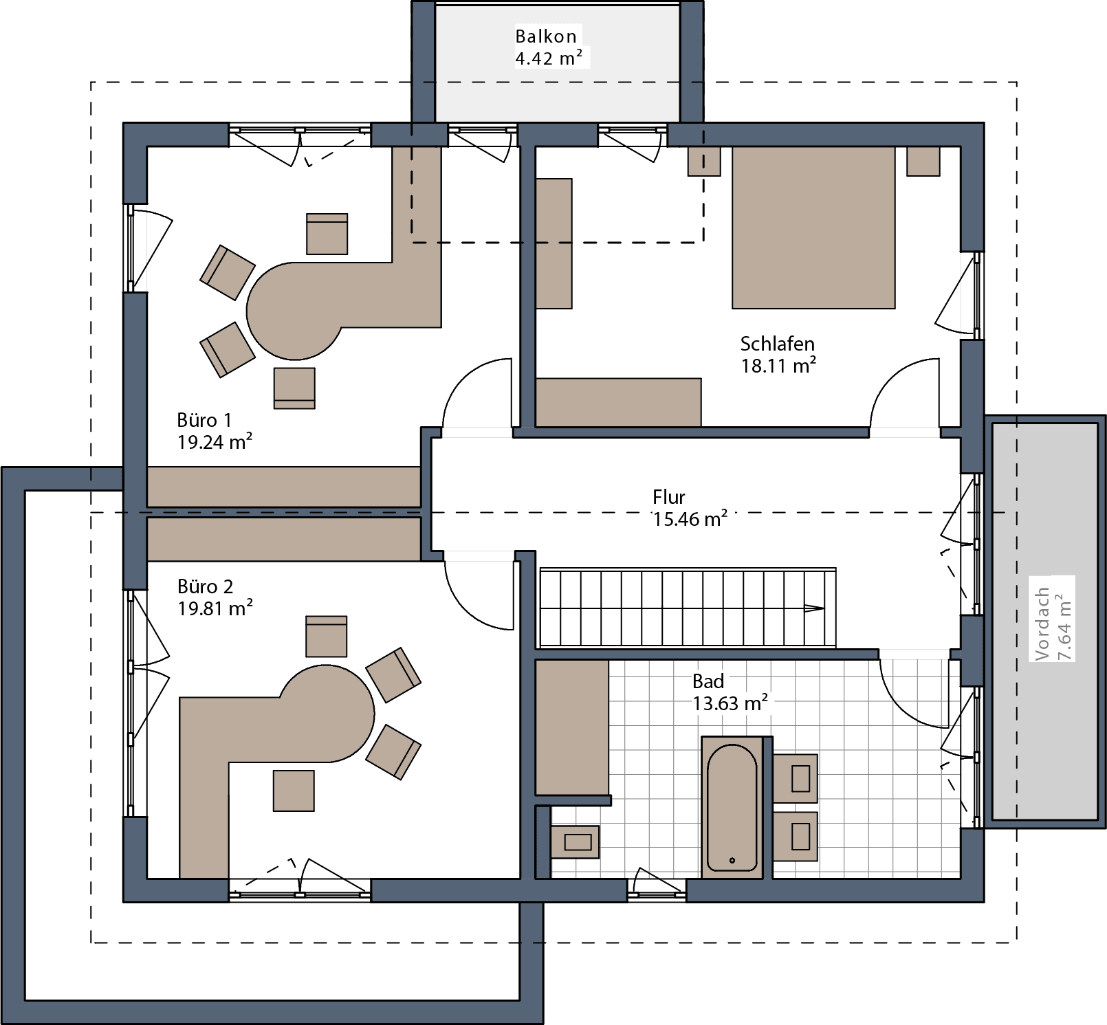
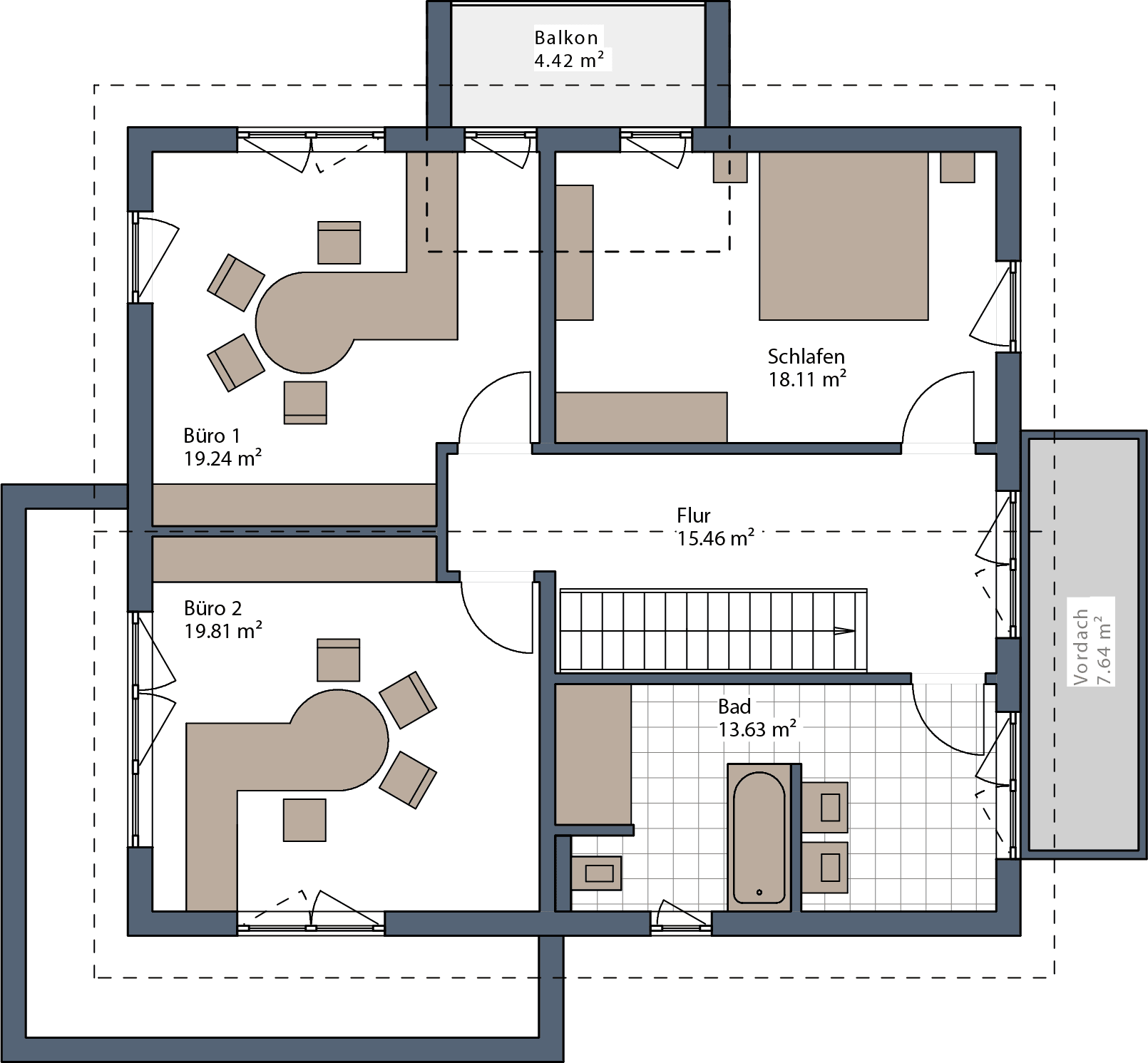
Die zurückhaltende und zugleich edle Außengestaltung des Hauses wird geprägt durch die naturweiße Fassade und das dunkle Satteldach. Die knapp 170 Quadratmeter, bieten mit einem 40 m² großen Wohn- und Essbereich und einem großen Familienbad mit bodenebener Dusche, viel Platz auf 2 Etagen. Das nachhaltige Energiekonzept besticht durch die intelligente Stromsteuerung- und Speicherung, sowie die Erdwärmeheizung. Durch den zusätzlichen Einsatz einer Photovoltaikanlage erfüllt das Musterhaus die Auflagen für das Effizienzhaus 40 Plus.


(öffnet Mittwoch um 13:00 Uhr)