1. AnbieterArrow Icon
  2. SchwabenhausArrow Icon
  3. Solitaire-E-145 Entwurfsidee 3
Slide 1
Slide 2
Slide 3
Slide 4
no description
SchwabenhausSolitaire-E-145 Entwurfsidee 3
homeKlassische Familienhäuser
livingArea146 m²
energyStandardEffizienzhaus 55
Preis anfragen
Katalog bestellen

Solitaire-E-145 Entwurfsidee 3

Einzigartigkeit versprüht das Hauskonzept Solitaire von Schwabenhaus. Denn hier konfigurieren die Bauherren ihr Traumhaus selbst. Individuelle Grundrisse inklusive. Offener XL-Wohn/Ess/Koch-Bereich, drei Schlafzimmer oder lieber zwei mit einer offenen Ankleide, Gästezimmer mit angrenzender Dusche? Im Solitaire von Schwabenhaus sind den Möglichkeiten keine Grenzen gesetzt. Unterschiedliche Raumkonzepte, Treppenvarianten und verschiedene Kniestöcke sorgen dafür, dass kein Solitaire dem anderen gleicht. Außen geben eine große Auswahl an Dachvarianten sowie verschiedene Designs – von avantgardistisch über modern bis klassisch – dem Solitaire ganz individuelle Optiken. Ob Erker, Querhaus, bodentiefe oder schmale Fenster – das entscheiden alleine die Bauherren. Natürlich auch hier Standard: die hohe Schwabenhaus-Ausstattung mit Smart-Home-Technik, Klima-Komfort-Bauweise, All-Inclusive-Konzept und Wärmepumpen-Heizung.

*Preis-Information: Preise und Außenmaße beziehen sich auf das zugrundeliegende Basishaus in der Ausbau-Stufe "Schlüsselfertig", Effizienzhaus-55, inkl. Bodenplatte, inkl. All-Inklusive-Leistungspaket, Bilder und Abbildungen können aufpreispflichtige Extras zeigen. Preislisten Stand 08/23
**Grundrisse und Abbildungen können über den Standard hinausgehende Ausstattungsmerkmale und Sonderausstattung zeigen

Entwurfdetails:
Wohnfläche EG:        77,16m²
Wohnfläche OG:        72,71m²
Wohnfläche Gesamt: 149,87m²
Anbauteile:                 Rechteck-Erker, Eck-Terrassenüberdachung, Balkon mit Glas-Geländer, Doppel-Carport, Design-Fensterecke

Hausdaten

Hausart Icon
HausartEinfamilienhaus
Bauweise Icon
BauweiseHolz-Tafelbau
Anzahl Räume Icon
Anzahl Räume6
Baustil Icon
BaustilKlassische Familienhäuser
Fassade Icon
FassadePutz
Außenmaße Icon
Außenmaße9.33 m x 9.33 m
Wohnfläche Icon
Wohnfläche145.52 m²
Dachform Icon
DachformSattel-/Giebeldach
Energiestandard Icon
EnergiestandardEffizienzhaus 55
Immobilientyp Icon
ImmobilientypPlanungsidee
Dachneigung Icon
Dachneigung38°
Kniestock Icon
Kniestock1 m
Hauseigenschaften Icon
HauseigenschaftenGästezimmer
Hausdämmstoff Icon
HausdämmstoffMineralfaser (Glaswolle, Steinwolle)
Heizungsart Icon
HeizungsartWärmepumpe (Luft, Wasser, oder beides)
Pfeil nach unten linksWir schaffen Platz für Ihre Träume

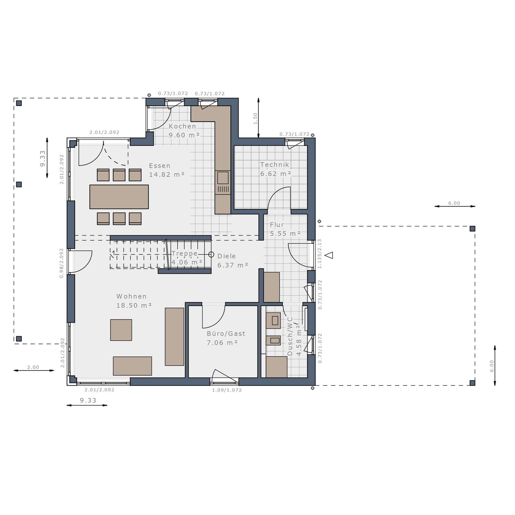
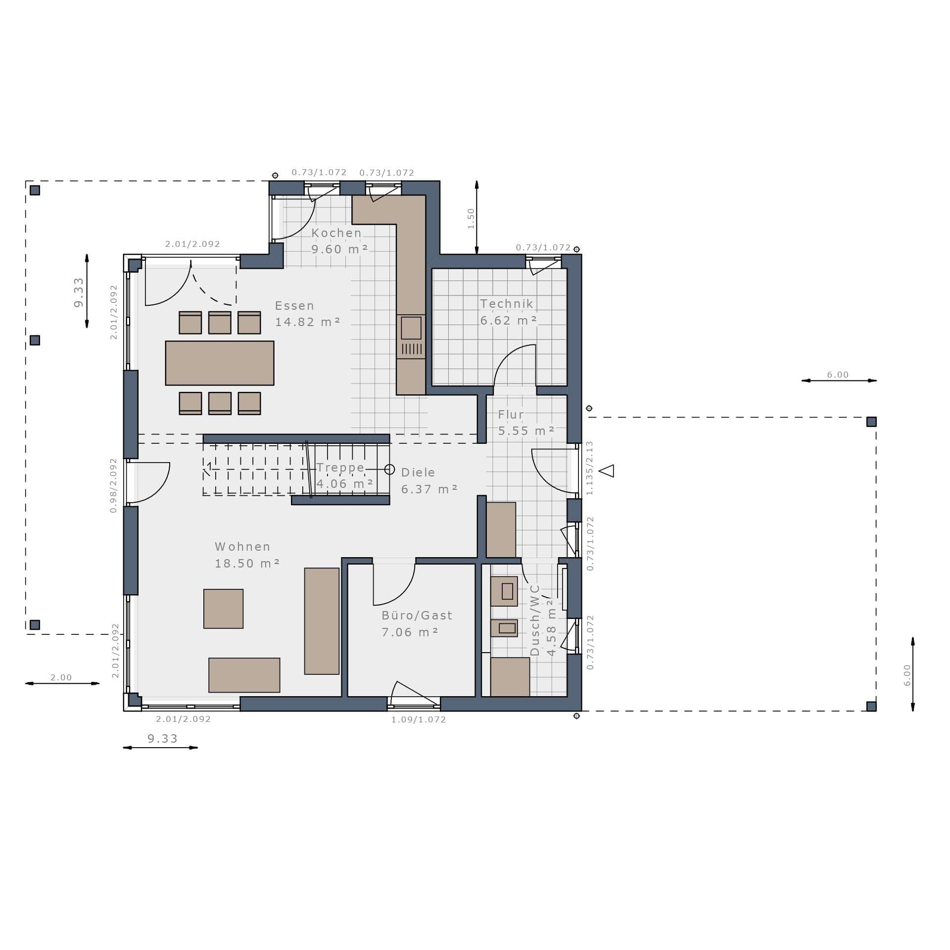
Grundriss

no description
Solitaire-E-145 Entwurfsidee 3 Grundriss (EG)Wohnfläche EG: 72,81 m²
no description
Solitaire-E-145 Entwurfsidee 3 Grundriss (OG)Wohnfläche OG: 72,71 m²

Unser Team vor Ort

Team SchwabenhausFachberater*in bei Schwabenhaus
Default Avatar
Wir beraten Sie gerne!Arrow Icon

Kataloge

Schwabenhaus: Hauskatalog
Schwabenhaus

Schwabenhaus: Hauskatalog


House and TreeParksHouse and PinMusterhausHouse on HandAnbieter