1. AnbieterArrow Icon
  2. SchwabenhausArrow Icon
  3. Solitaire-E-135 Entwurfsidee 5
Slide 1
Slide 2
Slide 3
Slide 4
no description
SchwabenhausSolitaire-E-135 Entwurfsidee 5
homeKlassische Familienhäuser
livingArea134 m²
energyStandardEffizienzhaus 55
Preis anfragen
Katalog bestellen

Solitaire-E-135 Entwurfsidee 5

Einzigartigkeit versprüht das Hauskonzept Solitaire von Schwabenhaus. Denn hier konfigurieren die Bauherren ihr Traumhaus selbst. Individuelle Grundrisse inklusive. Offener XL-Wohn/Ess/Koch-Bereich, drei Schlafzimmer oder lieber zwei mit einer offenen Ankleide, Gästezimmer mit angrenzender Dusche? Im Solitaire von Schwabenhaus sind den Möglichkeiten keine Grenzen gesetzt. Unterschiedliche Raumkonzepte, Treppenvarianten und verschiedene Kniestöcke sorgen dafür, dass kein Solitaire dem anderen gleicht. Außen geben eine große Auswahl an Dachvarianten sowie verschiedene Designs – von avantgardistisch über modern bis klassisch – dem Solitaire ganz individuelle Optiken. Ob Erker, Querhaus, bodentiefe oder schmale Fenster – das entscheiden alleine die Bauherren. Natürlich auch hier Standard: die hohe Schwabenhaus-Ausstattung mit Smart-Home-Technik, Klima-Komfort-Bauweise, All-Inclusive-Konzept und Wärmepumpen-Heizung.

*Preis-Information: Preise und Außenmaße beziehen sich auf das zugrundeliegende Basishaus in der Ausbau-Stufe "Schlüsselfertig", Effizienzhaus-55, inkl. Bodenplatte, inkl. All-Inklusive-Leistungspaket, Bilder und Abbildungen können aufpreispflichtige Extras zeigen. Preislisten Stand 08/23
**Grundrisse und Abbildungen können über den Standard hinausgehende Ausstattungsmerkmale und Sonderausstattung zeigen

Entwurfdetails:
Wohnfläche EG:        72,81m²
Wohnfläche OG:        63,70m²
Wohnfläche Gesamt:136,51m²
Anbauteile:                 Zwerchgiebel Flachdach, Rechteck-Erker, Eingangsüberdachung L-Design, Terrassen-Pergola

Hausdaten

Hausart Icon
HausartEinfamilienhaus
Bauweise Icon
BauweiseHolz-Tafelbau
Anzahl Räume Icon
Anzahl Räume5
Baustil Icon
BaustilKlassische Familienhäuser
Fassade Icon
FassadePutz
Außenmaße Icon
Außenmaße10.03 m x 8.08 m
Wohnfläche Icon
Wohnfläche134.24 m²
Dachform Icon
DachformSattel-/Giebeldach
Energiestandard Icon
EnergiestandardEffizienzhaus 55
Immobilientyp Icon
ImmobilientypPlanungsidee
Dachneigung Icon
Dachneigung25°
Kniestock Icon
Kniestock1.66 m
Hauseigenschaften Icon
HauseigenschaftenGästezimmer
Hausdämmstoff Icon
HausdämmstoffMineralfaser (Glaswolle, Steinwolle)
Heizungsart Icon
HeizungsartWärmepumpe (Luft, Wasser, oder beides)
Pfeil nach unten linksWir schaffen Platz für Ihre Träume

Grundriss

no description
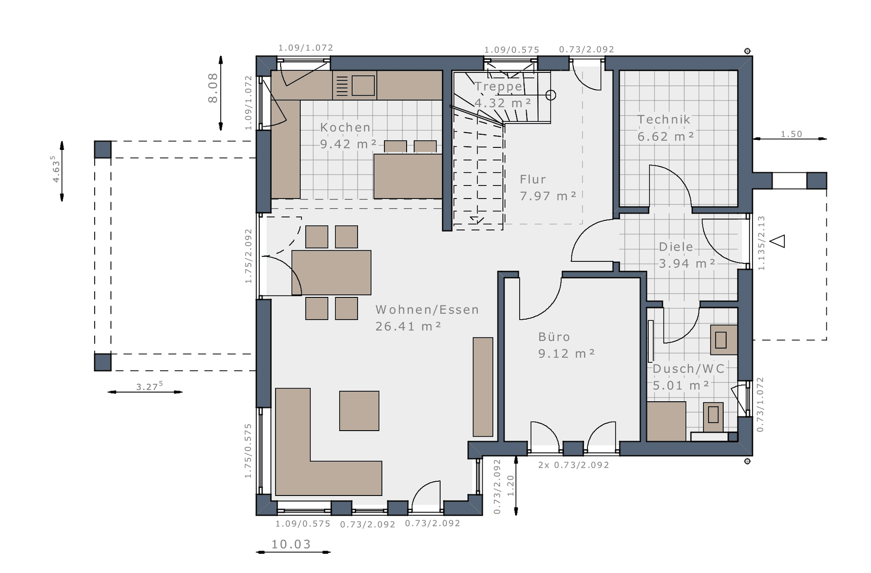
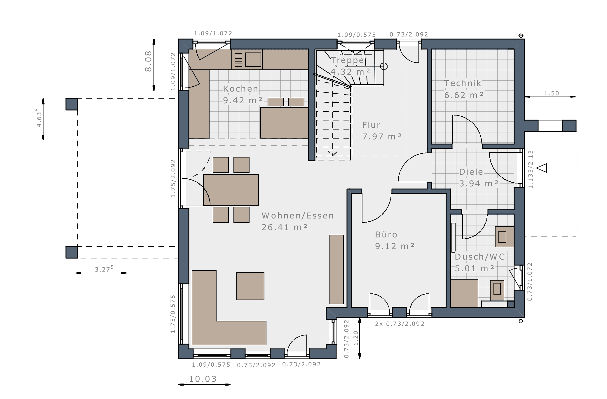
Solitaire-E-135 Entwurfsidee 5 Grundriss (EG)Wohnfläche EG: 67,55 m²
no description
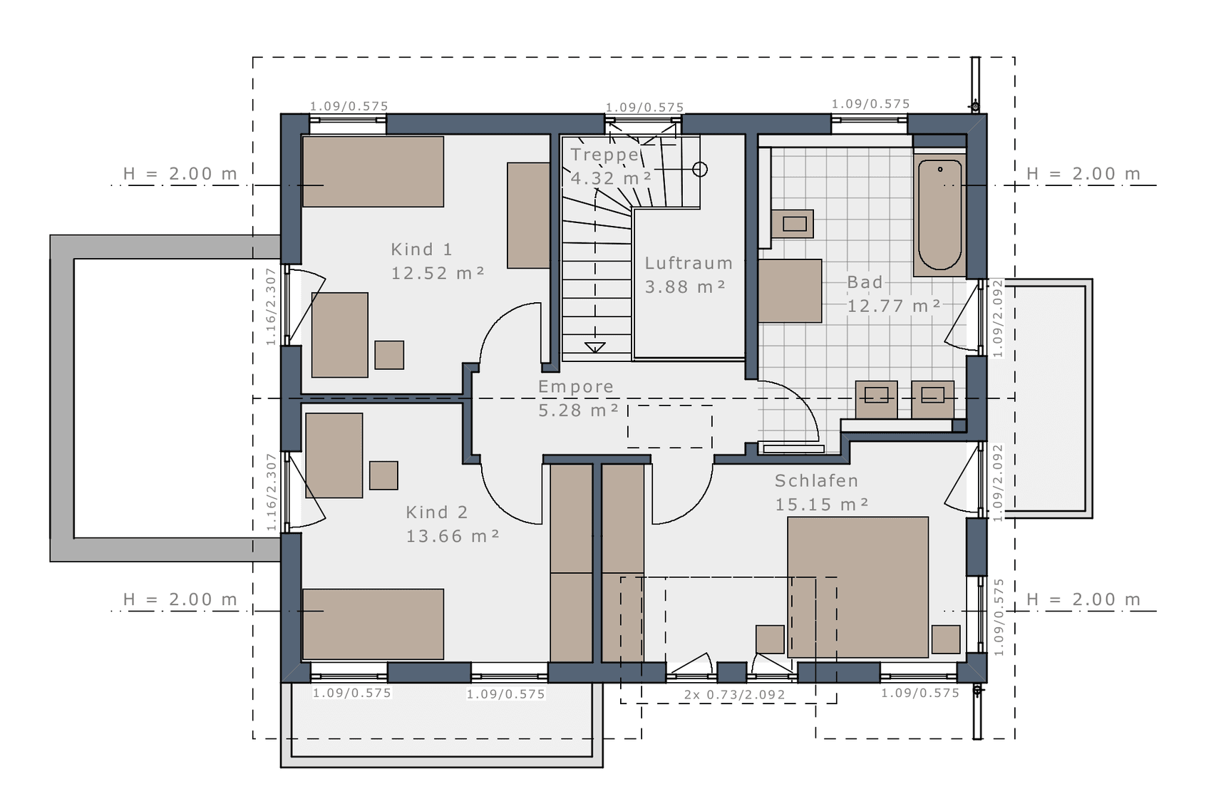
Solitaire-E-135 Entwurfsidee 5 Grundriss (DG)

Unser Team vor Ort

Team SchwabenhausFachberater*in bei Schwabenhaus
Default Avatar
Wir beraten Sie gerne!Arrow Icon

Kataloge

Schwabenhaus: Hauskatalog
Schwabenhaus

Schwabenhaus: Hauskatalog


House and TreeParksHouse and PinMusterhausHouse on HandAnbieter