1. AnbieterArrow Icon
  2. SchwabenhausArrow Icon
  3. SmartSpace-E-140 Entwurfsidee 3
Slide 1
Slide 2
Slide 3
Slide 4
no description
SchwabenhausSmartSpace-E-140 Entwurfsidee 3
homeKlassische Familienhäuser
livingArea140 m²
energyStandardEffizienzhaus 55
Preis anfragen
Katalog bestellen

SmartSpace-E-140 Entwurfsidee 3

Das Schwabenhaus Hausprogramm: Smart Space - Innovative Editionshäuser!

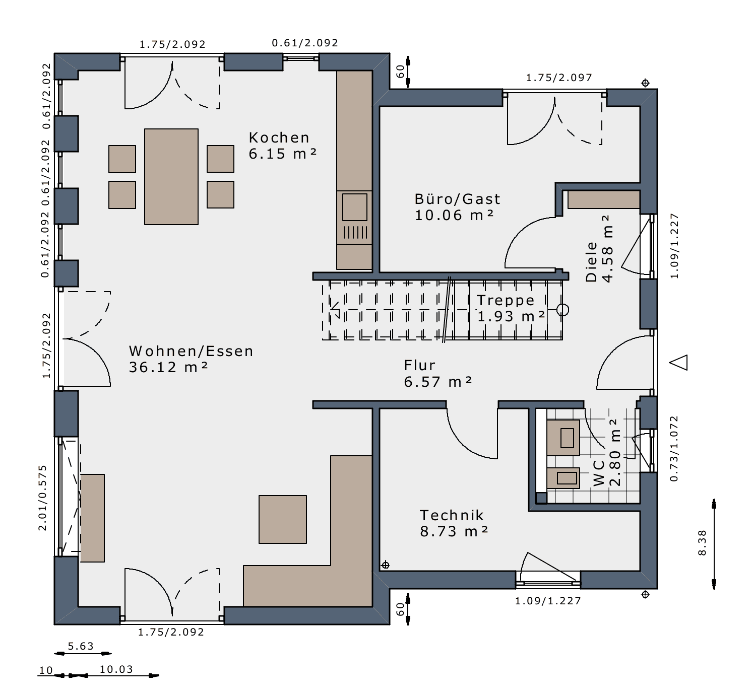
Alle Smart Space Editions-Häuser eint ein schickes Design in Kombination mit einem funktionalen und modernen Grundriss. Die Haustypen Smart Space 120 und Smart Space 140 sind jeweils mit vier Hausentwürfen vertreten und beherbergen im Erdgeschoss neben einem Gäste-WC, den Technikraum sowie eine Garderobe und einen einladenden Wohn- / Essbereich, der direkt mit der Küche verbunden ist und zum gemeinsamen Verweilen mit Familie und Freunden einlädt. Im Obergeschoss befinden sich ein Badezimmer sowie ein Schlaf- und zwei Kinderzimmer, die natürlich auch wunderbar als Arbeits- oder Gästezimmer genutzt werden können.

*Preis-Information: Preise und Außenmaße beziehen sich auf das zugrundeliegende Basishaus in der Ausbau-Stufe "Schlüsselfertig", Effizienzhaus-55, inkl. Bodenplatte, inkl. All-Inklusive-Leistungspaket, Bilder und Abbildungen können aufpreispflichtige Extras zeigen. Preislisten Stand 08/23
**Grundrisse und Abbildungen können über den Standard hinausgehende Ausstattungsmerkmale und Sonderausstattung zeigen

Entwurfdetails:
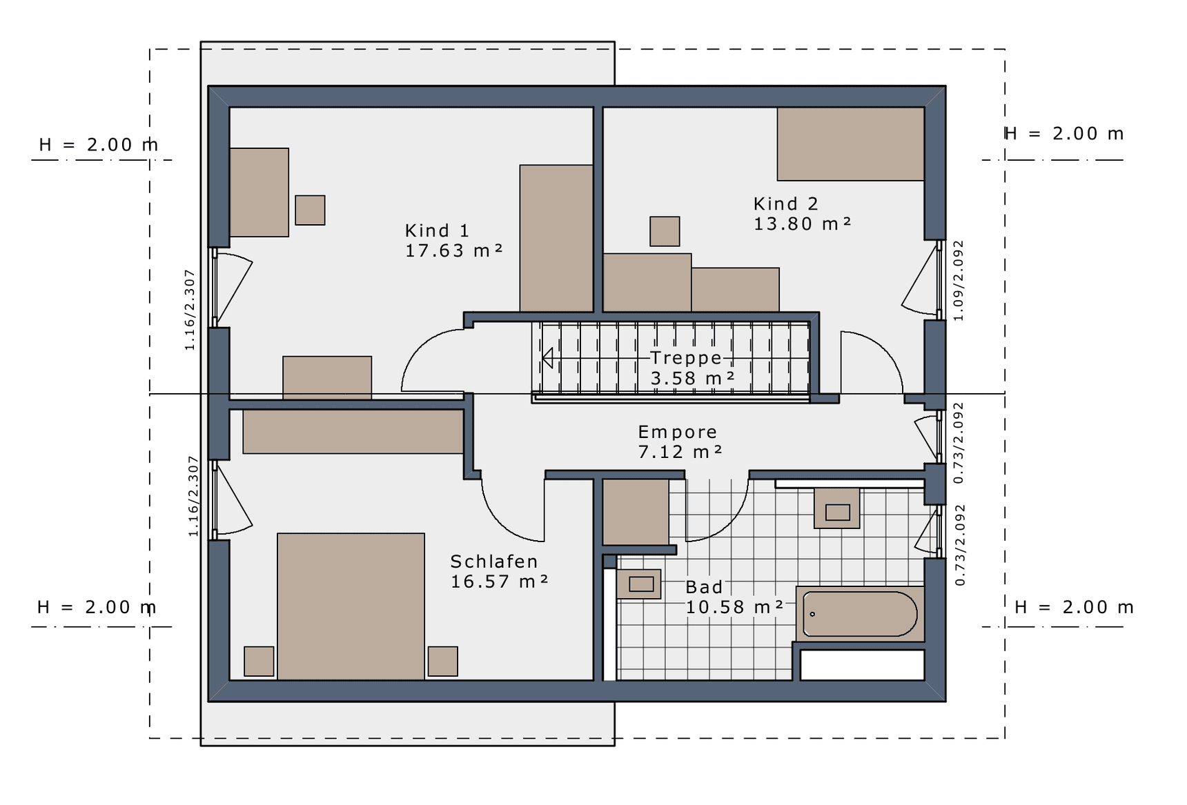
Wohnfläche EG:        76,94m² 
Wohnfläche OG:        69,28m² 
Wohnfläche Gesamt: 146,22m²
Anbauteile:                 Doppelter Rechteck-Erker mit Fassadenaufdopplung

Hausdaten

Hausart Icon
HausartEinfamilienhaus
Bauweise Icon
BauweiseHolz-Tafelbau
Anzahl Räume Icon
Anzahl Räume5
Baustil Icon
BaustilKlassische Familienhäuser
Fassade Icon
FassadePutz
Außenmaße Icon
Außenmaße10.03 m x 8.38 m
Wohnfläche Icon
Wohnfläche140.29 m²
Dachform Icon
DachformSattel-/Giebeldach
Energiestandard Icon
EnergiestandardEffizienzhaus 55
Immobilientyp Icon
ImmobilientypPlanungsidee
Dachneigung Icon
Dachneigung25°
Kniestock Icon
Kniestock1.66 m
Hauseigenschaften Icon
HauseigenschaftenGästezimmer
Hausdämmstoff Icon
HausdämmstoffHolzfaser- und Zellulosedämmstoffe
Heizungsart Icon
HeizungsartWärmepumpe (Luft, Wasser, oder beides)
Pfeil nach unten linksWir schaffen Platz für Ihre Träume

Grundriss

no description
SmartSpace-E-140 Entwurfsidee 3 Grundriss (EG)Wohnfläche EG: 71 m²
no description
SmartSpace-E-140 Entwurfsidee 3 Grundriss (DG)

Unser Team vor Ort

Team SchwabenhausFachberater*in bei Schwabenhaus
Default Avatar
Wir beraten Sie gerne!Arrow Icon

Kataloge

Schwabenhaus: Hauskatalog
Schwabenhaus

Schwabenhaus: Hauskatalog


House and TreeParksHouse and PinMusterhausHouse on HandAnbieter