1. AnbieterArrow Icon
  2. SchwabenhausArrow Icon
  3. Sensation-E-133 Entwurfsidee 4
Slide 1
Slide 2
Slide 3
Slide 4
no description
SchwabenhausSensation-E-133 Entwurfsidee 4
homeKlassische Familienhäuser
livingArea133 m²
energyStandardEffizienzhaus 55
Preis anfragen
Katalog bestellen

Sensation-E-133 Entwurfsidee 4

Attaktive Aktionshäuser zu starken Vorteilen - das ist das Hausprogramm Sensation von Schwabenhaus. Diese Taumhäuser wurden mit viel Sorgfalt und Detail geplant und können von den Bauherren auf eigene Bedürnisse angepasst werden. Dabei bieten die Entwürfe aus dem Hausprogramm Sensation bereits viele Vorteile und Highlights. Die Grundrisse basieren auf dem modularen Haus-System von Schwabenhaus und sind somit modern und flexibel. Wie bei allen Häusern von Schwabenhaus gilt auch hier der Standard: die hohchwertige Schwabenhaus-Ausstattung mit Smart-Home-Technik, Klima-Komfort-Bauweise, All-Inclusive-Konzept und Wärmepumpen-Heizung.

*Preis-Information: Preise und Außenmaße beziehen sich auf das zugrundeliegende Basishaus in der Ausbau-Stufe "Schlüsselfertig", Effizienzhaus-55, inkl. Bodenplatte, inkl. All-Inklusive-Leistungspaket, Bilder und Abbildungen können aufpreispflichtige Extras zeigen. Preislisten Stand 08/23
**Grundrisse und Abbildungen können über den Standard hinausgehende Ausstattungsmerkmale und Sonderausstattung zeigen

Entwurfdetails:
Wohnfläche EG:        69,92m²
Wohnfläche OG:        65,6m²
Wohnfläche Gesamt: 135,52m²
Anbauteile:                 Balkon mit Balkongeländer alpin, Rechteck-erker, Fassade mit Holzverkleidung

Hausdaten

Hausart Icon
HausartEinfamilienhaus
Bauweise Icon
BauweiseHolz-Tafelbau
Anzahl Räume Icon
Anzahl Räume5
Baustil Icon
BaustilKlassische Familienhäuser
Fassade Icon
FassadePutz
Außenmaße Icon
Außenmaße8.98 m x 8.98 m
Wohnfläche Icon
Wohnfläche132.88 m²
Dachform Icon
DachformSattel-/Giebeldach
Energiestandard Icon
EnergiestandardEffizienzhaus 55
Immobilientyp Icon
ImmobilientypPlanungsidee
Dachneigung Icon
Dachneigung25°
Kniestock Icon
Kniestock1.66 m
Hauseigenschaften Icon
HauseigenschaftenGästezimmer
Hausdämmstoff Icon
HausdämmstoffMineralfaser (Glaswolle, Steinwolle)
Heizungsart Icon
HeizungsartWärmepumpe (Luft, Wasser, oder beides)
Pfeil nach unten linksWir schaffen Platz für Ihre Träume

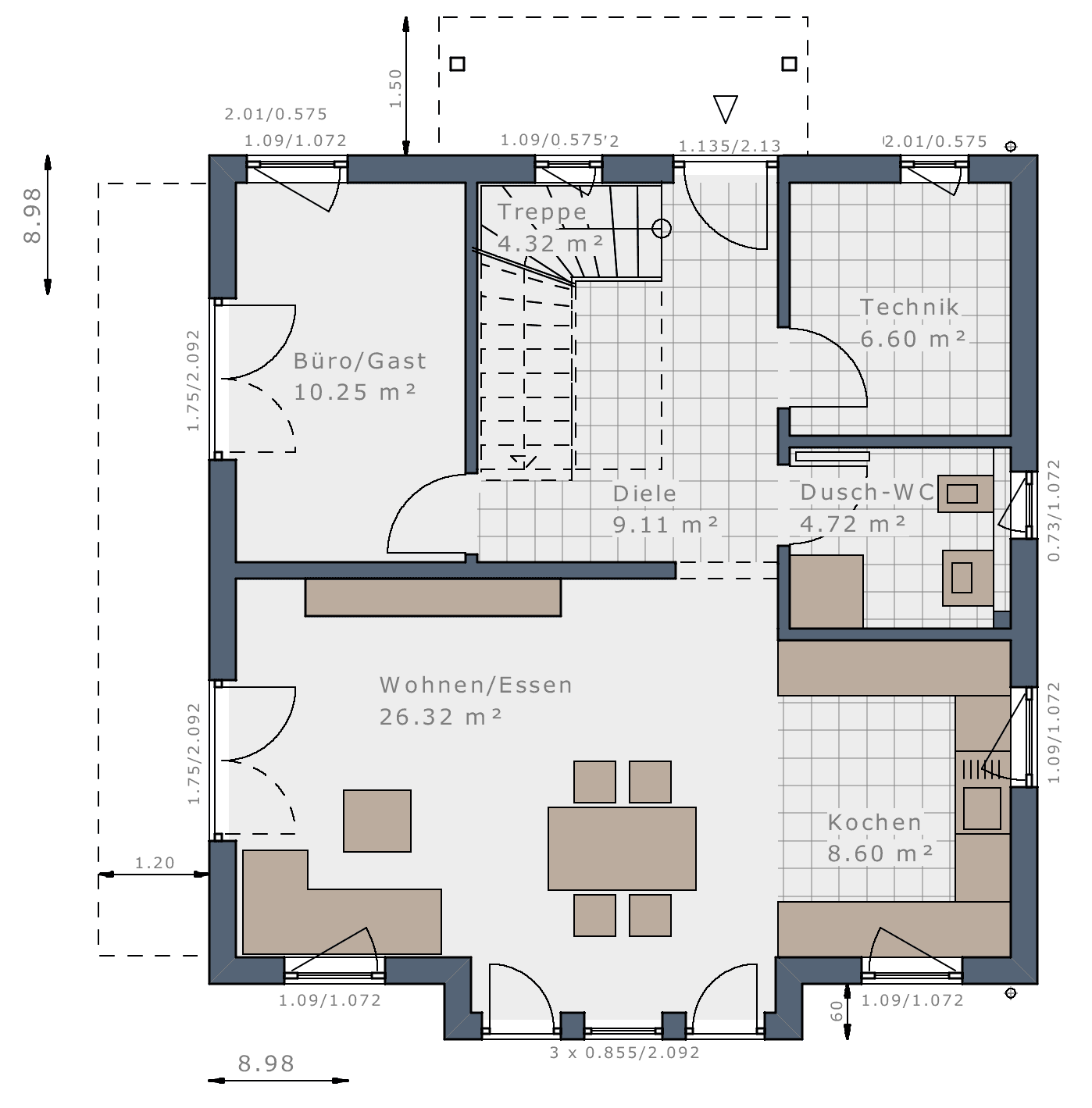
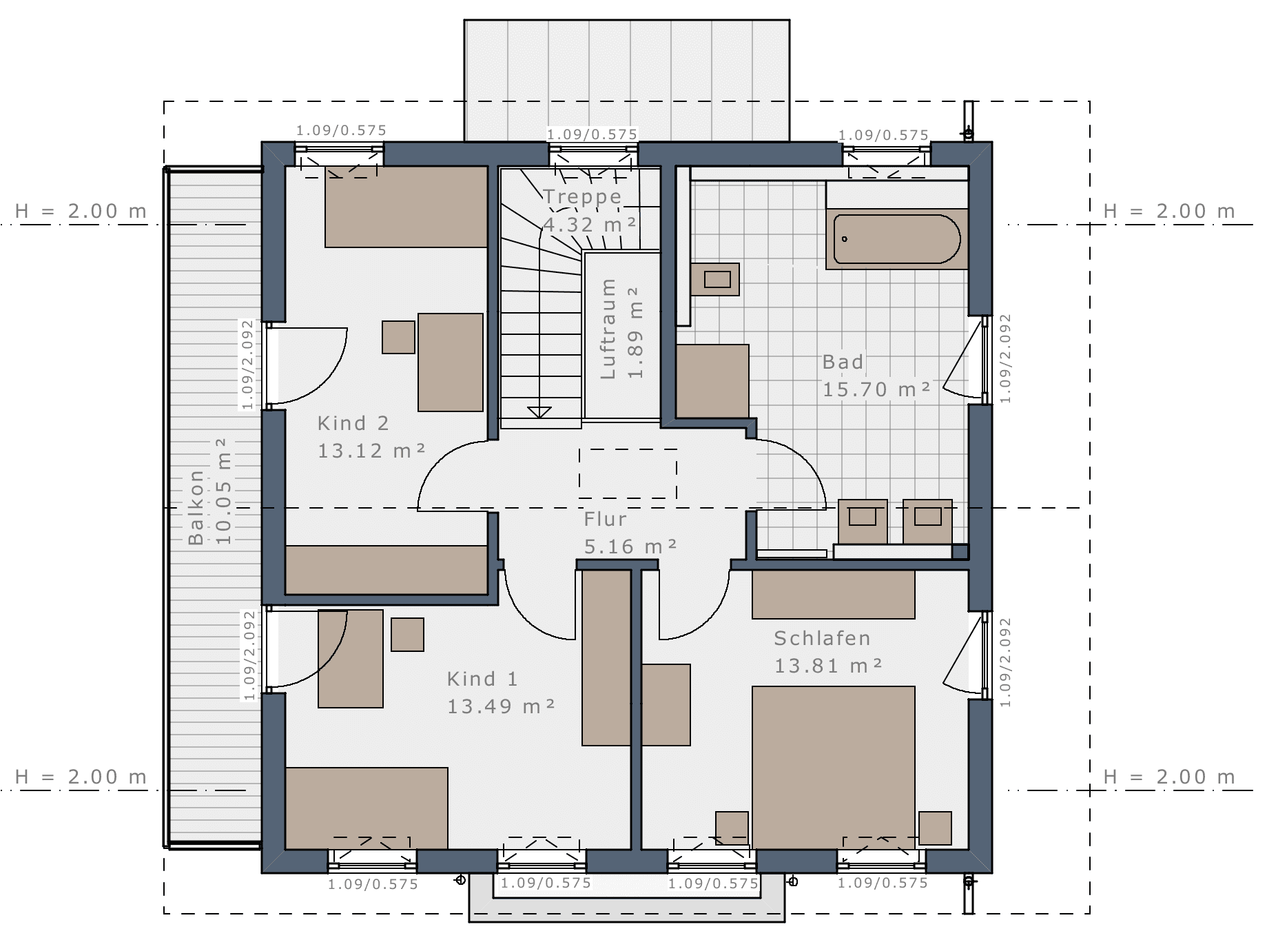
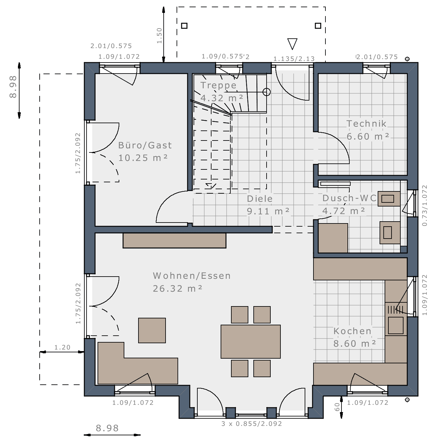
Grundriss

no description
Sensation-E-133 Entwurfsidee 4 Grundriss (EG)Wohnfläche EG: 68,04 m²
no description
Sensation-E-133 Entwurfsidee 4 Grundriss (OG)Wohnfläche OG: 64,94 m²

Unser Team vor Ort

Team SchwabenhausFachberater*in bei Schwabenhaus
Default Avatar
Wir beraten Sie gerne!Arrow Icon

Kataloge

Schwabenhaus: Hauskatalog
Schwabenhaus

Schwabenhaus: Hauskatalog


House and TreeParksHouse and PinMusterhausHouse on HandAnbieter