1. AnbieterArrow Icon
  2. SchwabenhausArrow Icon
  3. Selection-E-169 Entwurfsidee 2
Slide 1
Slide 2
Slide 3
Slide 4
no description
SchwabenhausSelection-E-169 Entwurfsidee 2
homeKlassische Familienhäuser
livingArea169 m²
energyStandardEffizienzhaus 55
Preis anfragen
Katalog bestellen

Selection-E-169 Entwurfsidee 2

Ein Hausprogramm, zahlreiche Möglichkeiten heißt es beim Selection von Schwabenhaus. Je sechs Entwürfe bieten die beiden Hauskonzepte des Selection – und erfüllen damit jeden Haustraum. Ob mit Walm-, Sattel-, Pult- oder Flachdach, das Selection-E-169 und das Selection-E-175 treffen jeden Geschmack. Unterschiedliche Grundrisse sowie verschieden hohe Kniestöcke von 100 cm, 166 cm oder sogar 168 cm erfüllen die individuellen Wünsche der Bauherren. So einfach lassen sich persönlichen Wünsche maßschneidern. Rechteck-Erker mit oder ohne Balkon darüber? Eine Eingangsüberdachung oder lieber eine überdachte Terrasse? Ein Querhaus für mehr Individualität oder eher ein minimalistischer Kubus als Grundriss? Egal, welcher Entwurf das Bauherren-Herz höher schlagen lässt – dank der unterschiedlichen Fassaden und Innenraumvarianten sind den Möglichkeiten kaum Grenzen gesetzt. Gemeinsam haben sie alle eines: die hochwertige Schwabenhaus-Grundausstattung. Energieeffizient und wohngesund gebaut, allergikergeeignet und dank Smart-Home-Technologie sowie Wärmepumpen-Heizung auf dem modernsten Stand der Technik.

*Preis-Information: Preise und Außenmaße beziehen sich auf das zugrundeliegende Basishaus in der Ausbau-Stufe "Schlüsselfertig", Effizienzhaus-55, inkl. Bodenplatte, inkl. All-Inklusive-Leistungspaket, Bilder und Abbildungen können aufpreispflichtige Extras zeigen. Preislisten Stand 08/23
**Grundrisse und Abbildungen können über den Standard hinausgehende Ausstattungsmerkmale und Sonderausstattung zeigen

Entwurfdetails:
Wohnfläche EG:        94,94m²
Wohnfläche OG:        84,41m²
Wohnfläche Gesamt: 179,35m²
Anbauteile:                 Rechteck-Erker, Übereck-Erker, Balkon, Eck-Eingangsüberdachung, Design-Fensterecken

Hausdaten

Hausart Icon
HausartEinfamilienhaus
Bauweise Icon
BauweiseHolz-Tafelbau
Anzahl Räume Icon
Anzahl Räume6
Baustil Icon
BaustilKlassische Familienhäuser
Fassade Icon
FassadePutz
Außenmaße Icon
Außenmaße11.83 m x 8.53 m
Wohnfläche Icon
Wohnfläche168.52 m²
Dachform Icon
DachformSattel-/Giebeldach
Energiestandard Icon
EnergiestandardEffizienzhaus 55
Immobilientyp Icon
ImmobilientypPlanungsidee
Dachneigung Icon
Dachneigung38°
Kniestock Icon
Kniestock1 m
Hauseigenschaften Icon
HauseigenschaftenGästezimmer
Hausdämmstoff Icon
HausdämmstoffMineralfaser (Glaswolle, Steinwolle)
Heizungsart Icon
HeizungsartWärmepumpe (Luft, Wasser, oder beides)
Pfeil nach unten linksWir schaffen Platz für Ihre Träume

Grundriss

no description
Selection-E-169 Entwurfsidee 2 Grundriss (EG)Wohnfläche EG: 84,11 m²
no description
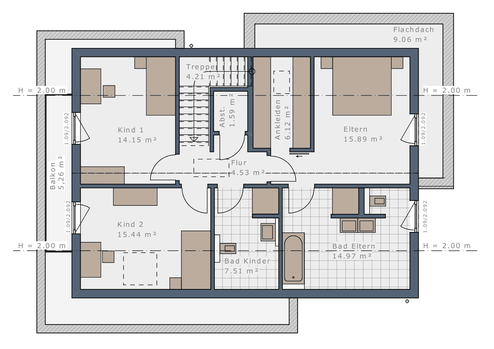
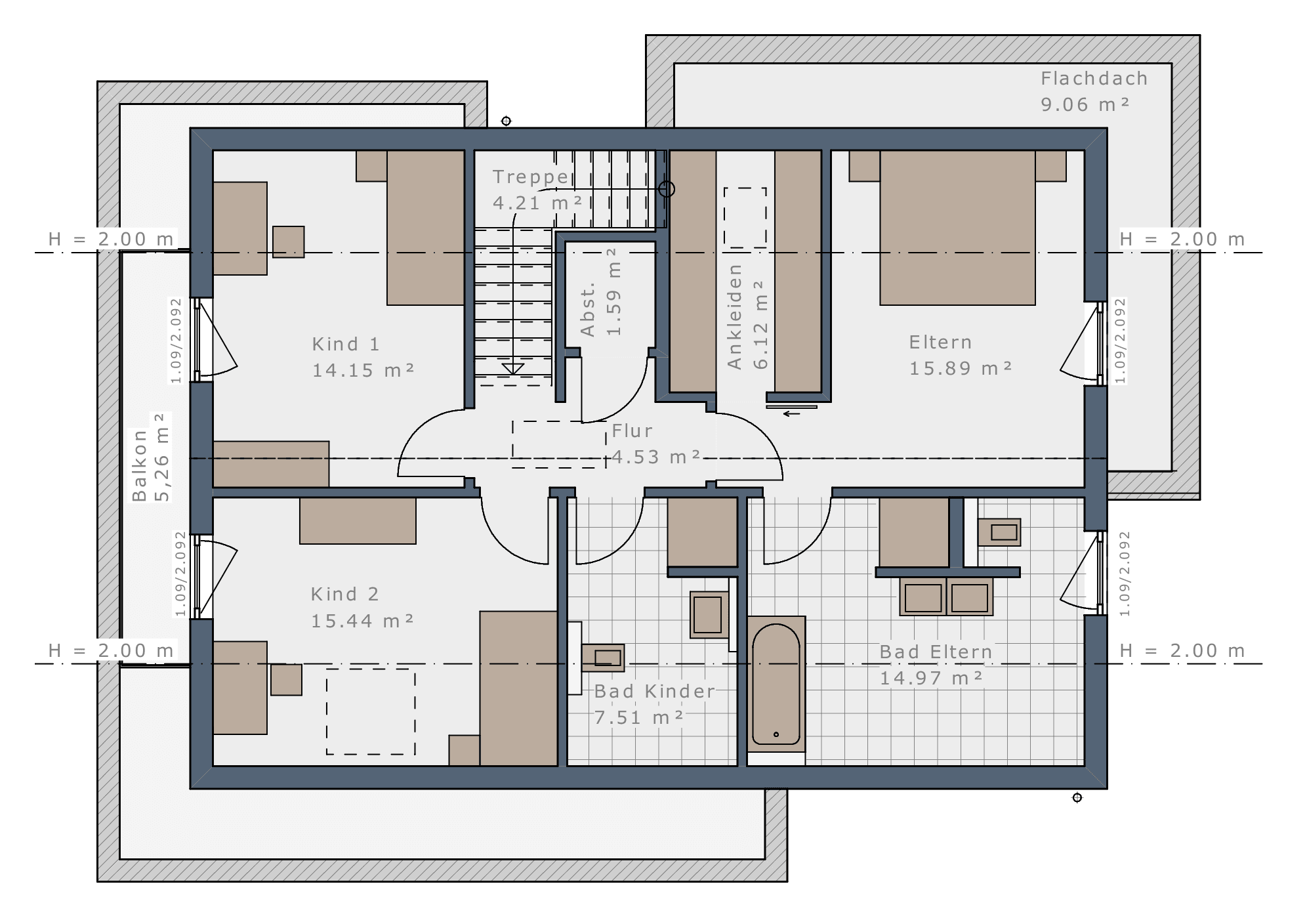
Selection-E-169 Entwurfsidee 2 Grundriss (OG)Wohnfläche OG: 84,41 m²

Unser Team vor Ort

Team SchwabenhausFachberater*in bei Schwabenhaus
Default Avatar
Wir beraten Sie gerne!Arrow Icon

Kataloge

Schwabenhaus: Hauskatalog
Schwabenhaus

Schwabenhaus: Hauskatalog


House and TreeParksHouse and PinMusterhausHouse on HandAnbieter