1. AnbieterArrow Icon
  2. SchwabenhausArrow Icon
  3. Nordic-Line-E-130
Slide 1
Slide 2
Slide 3
Slide 4
no description
SchwabenhausNordic-Line-E-130
homeKlassische Familienhäuser
livingArea130 m²
energyStandardEffizienzhaus 55 EE
Preis anfragen
Katalog bestellen

Nordic-Line-E-130

Ein Hausprogramm, welches den friesischen Traum vom Eigenheim erfüllt: Die Nordic-Line von Schwabenhaus! Mit dem bewährten All-Inclusive-Konzept und dem Modulares-Haus-System von Schwabenhaus sind die Entwürfeicht nur vielseitig, können auch auf die Bedürfnisse der Bauherr*innen individuell angepasst werden. Damit werden die Häuser nicht nur vom nordischen Charakter mit Leben erfültl, sondern bedienen alle Bedürfnisse an das eigene Zuhause. Verschiedene Ausstattungs- und Design-Optionen verleihen jedem Haus seinen eigenen Charme. 

Anbauteile:                 Windfang-Erker,Querhaus mit Friesengiebel

*Preis-Information: Preise und Außenmaße beziehen sich auf das zugrundeliegende Basishaus in der Ausbau-Stufe "Schlüsselfertig", Effizienzhaus-55, inkl. Bodenplatte, inkl. All-Inklusive-Leistungspaket, Bilder und Abbildungen können aufpreispflichtige Extras zeigen. Preislisten Stand 08/23
**Grundrisse und Abbildungen können über den Standard hinausgehende Ausstattungsmerkmale und Sonderausstattung zeigen

Hausdaten

Hausart Icon
HausartEinfamilienhaus
Bauweise Icon
BauweiseHolz-Tafelbau
Baustil Icon
BaustilKlassische Familienhäuser
Fassade Icon
FassadeKlinker
Außenmaße Icon
Außenmaße7.93 m x 9.43 m
Wohnfläche Icon
Wohnfläche130.44 m²
Dachform Icon
DachformSattel-/Giebeldach
Energiestandard Icon
EnergiestandardEffizienzhaus 55 EE
Immobilientyp Icon
ImmobilientypPlanungsidee
Dachneigung Icon
Dachneigung45°
Kniestock Icon
Kniestock1 m
Hausdämmstoff Icon
HausdämmstoffMineralfaser (Glaswolle, Steinwolle)
Heizungsart Icon
HeizungsartWärmepumpe (Luft, Wasser, oder beides)
Pfeil nach unten linksWir schaffen Platz für Ihre Träume

Grundriss

no description
Nordic-Line-E-130 Grundriss (EG)Wohnfläche EG: 66,49 m²
no description
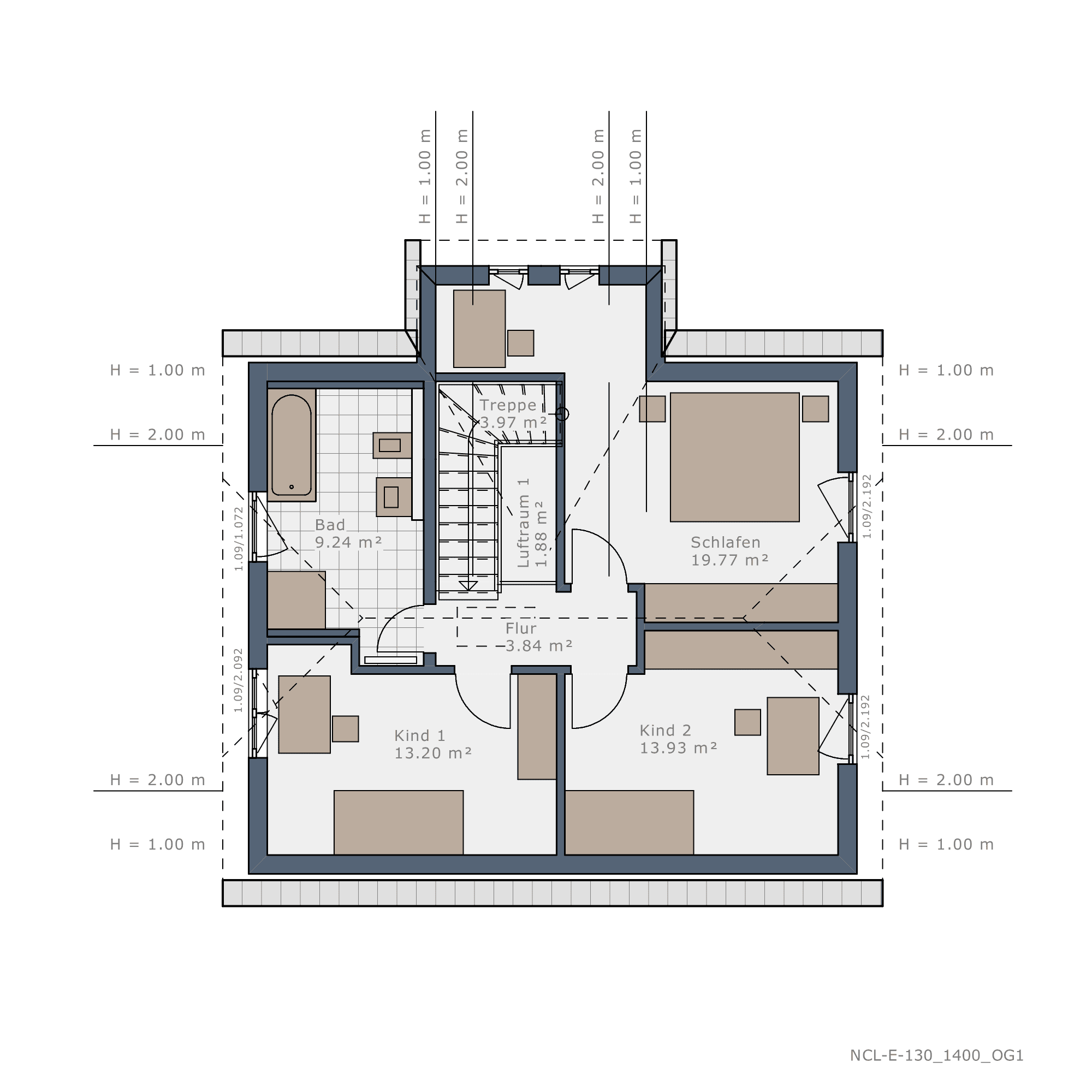
Nordic-Line-E-130 Grundriss (OG)Wohnfläche OG: 63,95 m²

Unser Team vor Ort

Team SchwabenhausFachberater*in bei Schwabenhaus
Default Avatar
Wir beraten Sie gerne!Arrow Icon

Kataloge

Schwabenhaus: Hauskatalog
Schwabenhaus

Schwabenhaus: Hauskatalog


House and TreeParksHouse and PinMusterhausHouse on HandAnbieter