1. AnbieterArrow Icon
  2. SchwabenhausArrow Icon
  3. Musterhaus Mülheim-Kärlich
Slide 1
Location Icon
Slide 2
Location Icon
Slide 3
Location Icon
Slide 4
Location Icon
Slide 5
Location Icon
no description
SchwabenhausMusterhaus Mülheim-Kärlich
homeKlassische Familienhäuser
livingArea165 m²
energyStandardEffizienzhaus 40 Plus
Preis anfragen

Musterhaus Mülheim-Kärlich

Moderne Kombination aus Architektur-Highlights

Das Musterhaus in Mülheim-Kärlich wird von einer stilvollen Farbkombination aus Anthrazit, Beige und Weiß geziert. Moderne Architektur-Bauteile wie der offene Carport, die diversen Fenstermodule und die Terrassen- sowie Eingangsüberdachung sorgen für ein harmonisches Äußeres. Der Innenraum wird durch den großzügigen Übereck-Erker ergänzt, der als Balkon dient und im Obergeschoss zum Entspannen einlädt.  

Geschickte Aufteilung zur individuellen Gestaltung

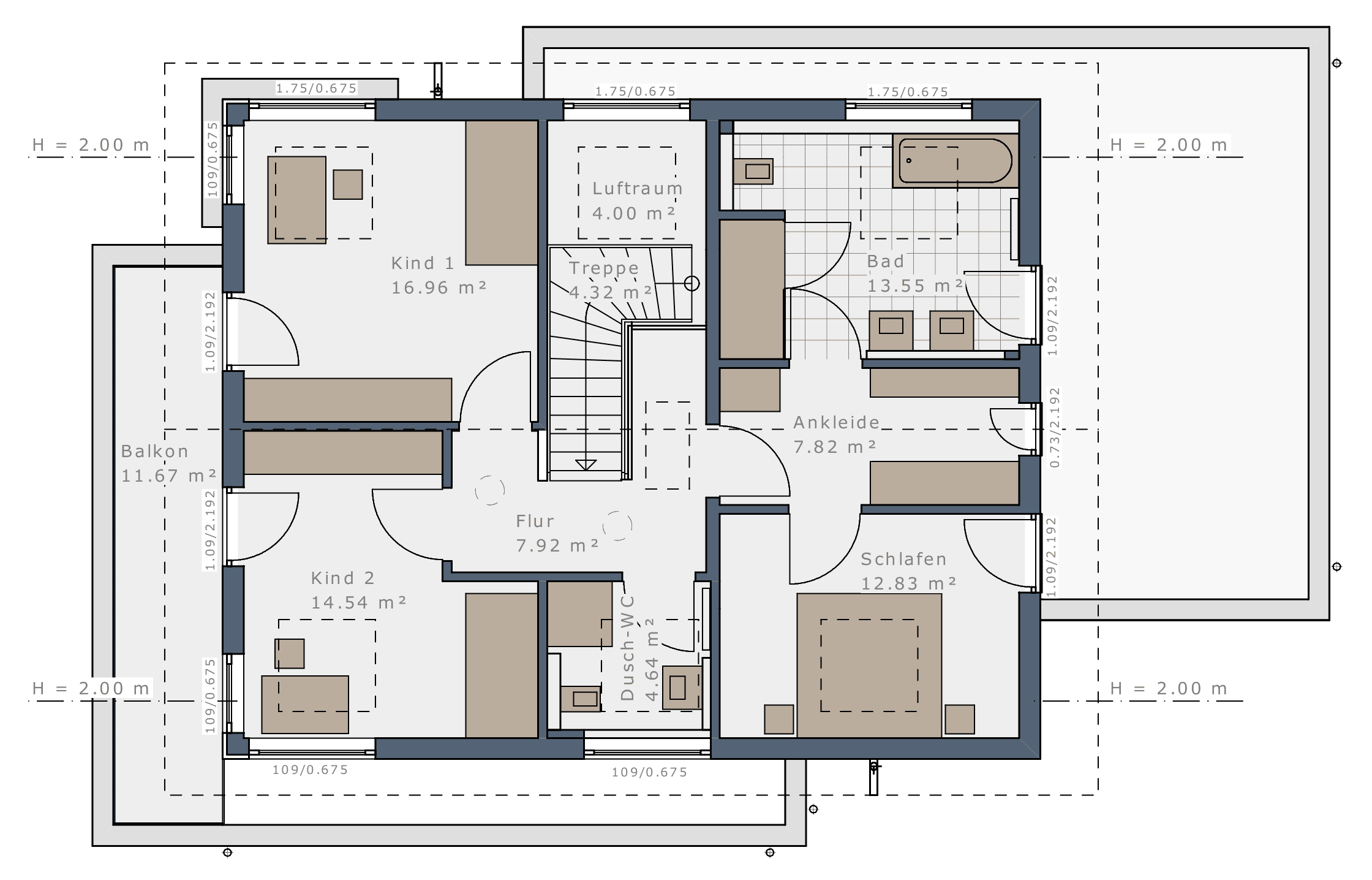
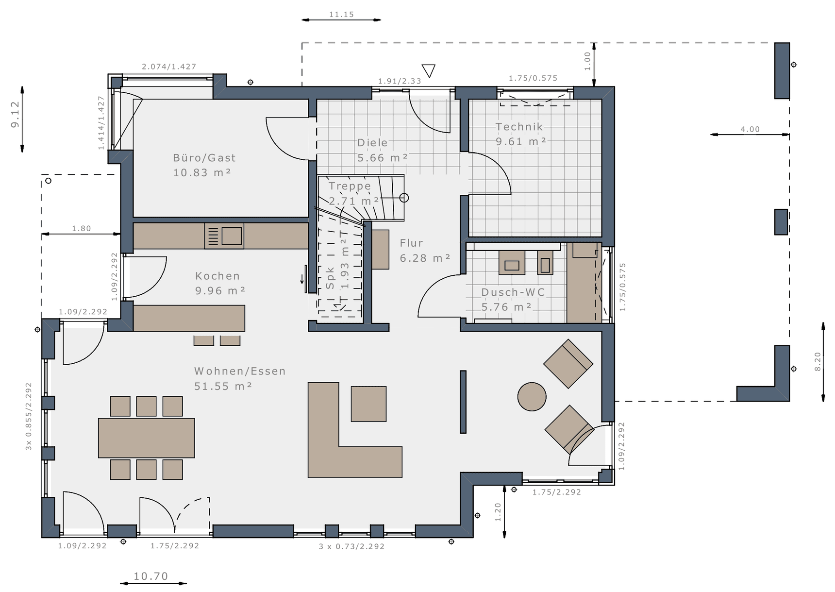
Beim Betreten des Musterhauses wird man von einem hellen und offenen Raumdesign begrüßt, das Raum zur persönlichen Entfaltung lässt. Der Wohn- & Essbereich ist durch einen Tresen von der Küche getrennt und dank des zusätzlichen Wohnraums für jede Situation geeignet. Weitere Highlights des Erdgeschosses sind ein großräumiges Büro und eine ruhige Sitz- und Leseecke. Über die gewendelte Treppe gelangt man in das obere Stockwerk. Durch eine geschickte Raumaufteilung, wird man hier von drei Schlafzimmern zum Ausruhen und Träumen eingeladen. Ein großes Bad bietet sich als Wellness-Oase an und wird durch eine zusätzliche Ankleide ergänzt.

Qualität - made in Germany

Das Musterhaus ist in Holztafelbauweise in deutscher Manufaktur-Qualität erbaut. Zur Kühlung, Heizung, Be- und Entlüftung und Wärmerückgewinnung wird eine Doppel-Wärmepumpe verwendet, welche für ein optimales Wohnklima sorgt. Über das integrierte SmartHome-System sind die einzelnen Funktionen des Hauses wie die Sound-Anlage, die Innenbeleuchtung, die Heizung und die Rollläden individuell steuerbar. Zusammen mit der installierten Photovoltaik-Anlage lässt dies einen kontrollierten und sparsamen Verbrauch zu.

Diese Kombination aus architektonischen und technologischen Highlights macht aus diesem Musterhaus ein wahres Traumhaus.

 

*Preis-Information: Preise und Außenmaße beziehen sich auf das zugrundeliegende Basishaus in der Ausbau-Stufe "Schlüsselfertig", Effizienzhaus-55, inkl. Bodenplatte, inkl. All-Inklusive-Leistungspaket, Bilder und Abbildungen können aufpreispflichtige Extras zeigen. Preislisten Stand 03/23
**Grundrisse und Abbildungen können über den Standard hinausgehende Ausstattungsmerkmale und Sonderausstattung zeigen

Hausdaten

Hausart Icon
HausartEinfamilienhaus
Bauweise Icon
BauweiseHolz-Tafelbau
Anzahl Räume Icon
Anzahl Räume5
Baustil Icon
BaustilKlassische Familienhäuser
Fassade Icon
FassadePutz
Außenmaße Icon
Außenmaße9.12 m x 10.7 m
Wohnfläche Icon
Wohnfläche164.61 m²
Dachform Icon
DachformSattel-/Giebeldach
Energiestandard Icon
EnergiestandardEffizienzhaus 40 Plus
Immobilientyp Icon
ImmobilientypMusterhaus
Dachneigung Icon
Dachneigung25°
Kniestock Icon
Kniestock1.76 m
Hauseigenschaften Icon
HauseigenschaftenBalkon
Hausdämmstoff Icon
HausdämmstoffMineralfaser (Glaswolle, Steinwolle)
Heizungsart Icon
HeizungsartWärmepumpe (Luft, Wasser, oder beides)
Pfeil nach unten linksWir schaffen Platz für Ihre Träume

Grundriss

no description
Musterhaus Mülheim-Kärlich Grundriss (EG)Wohnfläche EG: 82,29 m²
no description
Musterhaus Mülheim-Kärlich Grundriss (OG)Wohnfläche OG: 82,32 m²

Unser Team vor Ort

Team Mülheim-KärlichFachberater*in bei Schwabenhaus
Default Avatar
Wir beraten Sie gerne!Arrow Icon
House and TreeParksHouse and PinMusterhausHouse on HandAnbieter