1. AnbieterArrow Icon
  2. SchwabenhausArrow Icon
  3. Musterhaus Hünstetten
Slide 1
Location Icon
Slide 2
Location Icon
Slide 3
Location Icon
Slide 4
Location Icon
Slide 5
Location Icon
no description
SchwabenhausMusterhaus Hünstetten
homeKlassische Familienhäuser
livingArea169 m²
energyStandardEffizienzhaus 55
Preis anfragen

Musterhaus Hünstetten

Das Musterhaus Hünstetten Selection-E-169 ist ein modernes Einfamilienhaus mit Pultdacht. Dieses Traumhaus wird von einer weißen und grauen Fassade geziert und ein dunkleres Dach sowie Fensterrahmen in Anthrazit setzen Akzente. Der großflächige Carport, der Platz für zwei Wägen bietet, geht fließend in die L-förmige Eingangsüberdachung über und bietet zusätzliche Fläche für einen Geräteraum.  

Der 171m²- große Innenraum wird durch große Fensterfronten mit Licht geflutet. Der Wohnbereich im Erdgeschoss wird durch Wandscheiben in drei Bereiche aufgegliedert: Eine offene Küche mit Kochinsel, die mit dem Essbereich verbunden ist, ein Wohnzimmer, dass zum Verweilen einlädt, und einem gesonderten Büro. Hierdurch wird Flexibilität geschaffen, die die Anpassung auf eigene Bedürfnisse ermöglicht.  

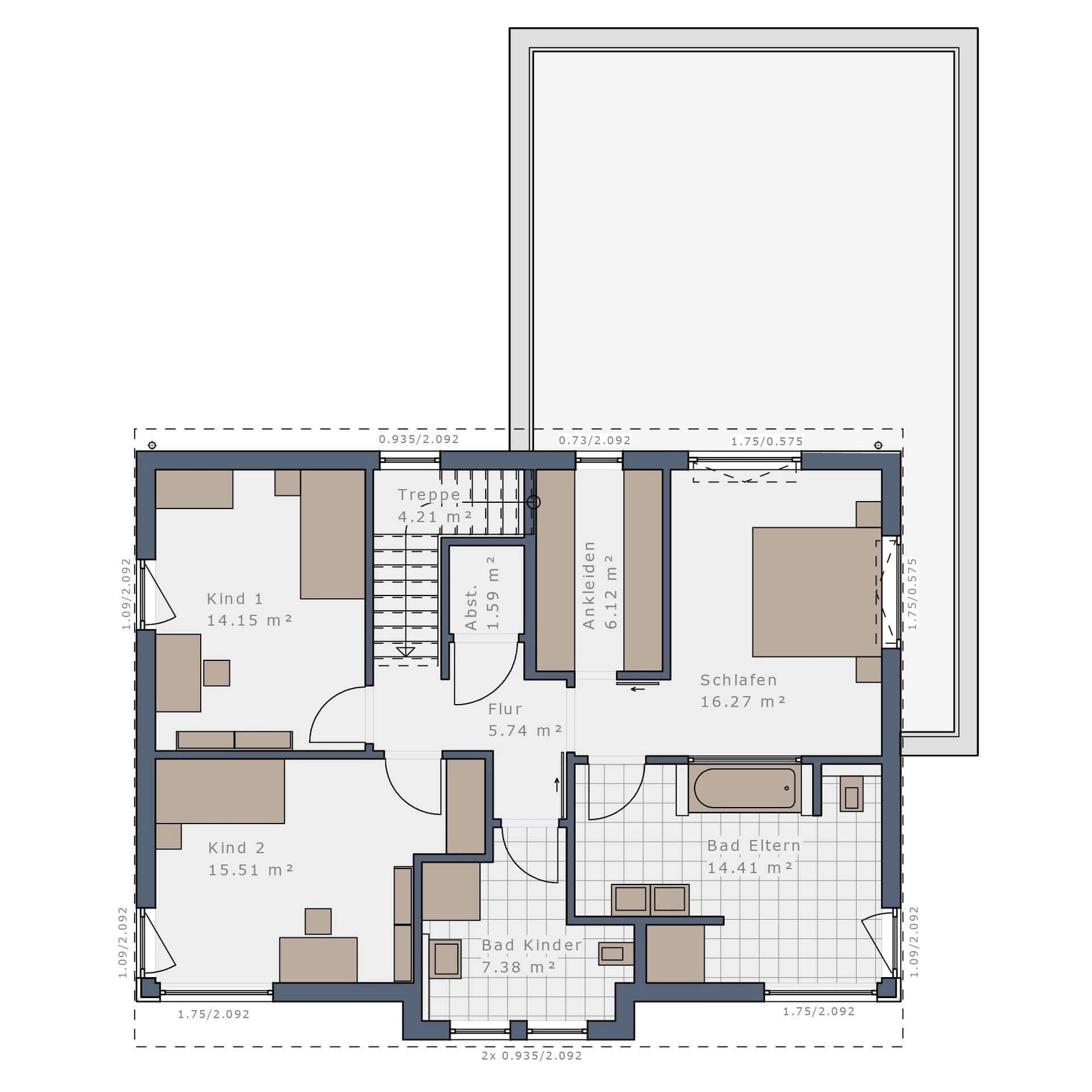
Über die viertelgewendelte Treppe, welche durch natürliches Licht erstrahlt, gelangt man in das Obergeschoss. Ein zusätzlicher Aufzug sorgt für Barrierefreiheit. Hier finden sich drei große Schlafzimmer, welche individuell auf die familiäre Situation anpassbar sind. Zudem gibt es hier eine gesonderte Ankleide und zwei Bäder zu erkunden.  

Wie jedes Haus von Schwabenhaus ist auch dieses Haus bereits im Standard mit einer Doppel-Wärmepumpe ausgestattet, welche Heizung, Kühlung sowie Be- und Entlüftung für ein optimales Raum-Klima reguliert, und erfüllt die Anforderungen eines Effizienzhauses 55.  

*Preis-Information: Preise und Außenmaße beziehen sich auf das zugrundeliegende Basishaus in der Ausbau-Stufe "Schlüsselfertig", Effizienzhaus-55, inkl. Bodenplatte, inkl. All-Inklusive-Leistungspaket, Bilder und Abbildungen können aufpreispflichtige Extras zeigen. Preislisten Stand 03/23

Hausdaten

Hausart Icon
HausartEinfamilienhaus
Bauweise Icon
BauweiseHolz-Tafelbau
Anzahl Räume Icon
Anzahl Räume6
Baustil Icon
BaustilKlassische Familienhäuser
Fassade Icon
FassadePutz
Außenmaße Icon
Außenmaße11.83 m x 8.53 m
Wohnfläche Icon
Wohnfläche168.52 m²
Dachform Icon
DachformPultdach
Energiestandard Icon
EnergiestandardEffizienzhaus 55
Immobilientyp Icon
ImmobilientypMusterhaus
Dachneigung Icon
Dachneigung
Hauseigenschaften Icon
HauseigenschaftenErker
Hausdämmstoff Icon
HausdämmstoffMineralfaser (Glaswolle, Steinwolle)
Heizungsart Icon
HeizungsartWärmepumpe (Luft, Wasser, oder beides)
Pfeil nach unten linksWir schaffen Platz für Ihre Träume

Grundriss

no description
Musterhaus Hünstetten Grundriss (EG)Wohnfläche EG: 84,11 m²
no description
Musterhaus Hünstetten Grundriss (OG)Wohnfläche OG: 84,41 m²

Unser Team vor Ort

Team HünstettenFachberater*in bei Schwabenhaus
Default Avatar
Wir beraten Sie gerne!Arrow Icon
House and TreeParksHouse and PinMusterhausHouse on HandAnbieter