1. AnbieterArrow Icon
  2. RENSCH-HAUSArrow Icon
  3. Innovation R Oasis
Slide 1
Slide 2
Slide 3
Slide 4
Slide 5
no description
RENSCH-HAUSInnovation R Oasis
homeKlassische Familienhäuser
livingArea167 m²
energyStandardKFWG-Q
Preis anfragen
Katalog bestellen

Innovation R Oasis

Funktional und familienfreundlich.

Sie sehen es also auch!  Schon auf den ersten Blick entfalten diese Formen und Lichteffekte ihre gesamte Wirkung. Genau das, Sie zu begeistern, ist unser Ziel!

Moderne Linienführung lassen Dach und Fassade zu einem wirkungsvollen Baukörper verschmelzen. Nicht nur Effekt, sondern auch praktischen Nutzen erzeugen die Flachdachanbauten auf beiden Hausseiten. Funktional, familienfreundlich und mit vielen nützlichen Details gestaltet sich die Raumaufteilung auf beiden Etagen. Treten Sie ein, lassen Sie sich weiter inspirieren und überzeugen Sie sich selbst.

Hausdaten

Hausart Icon
HausartEinfamilienhaus
Bauweise Icon
BauweiseHolz-Tafelbau
Baustil Icon
BaustilKlassische Familienhäuser
Außenmaße Icon
Außenmaße11.64 m x 7.89 m
Wohnfläche Icon
Wohnfläche167 m²
Dachform Icon
DachformSattel-/Giebeldach
Etagen Icon
Etagen2
Energiestandard Icon
EnergiestandardKFWG-Q
Immobilientyp Icon
ImmobilientypPlanungsidee
Dachneigung Icon
Dachneigung33°
Kniestock Icon
Kniestock2.25 m
Pfeil nach unten linksWir schaffen Platz für Ihre Träume

Grundriss

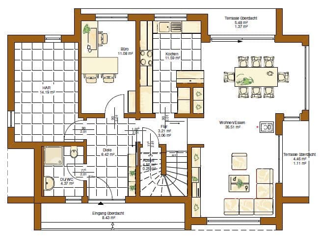
Grundriss EG.JPG
Innovation R Oasis Grundriss (EG)Wohnfläche EG: 93 m²
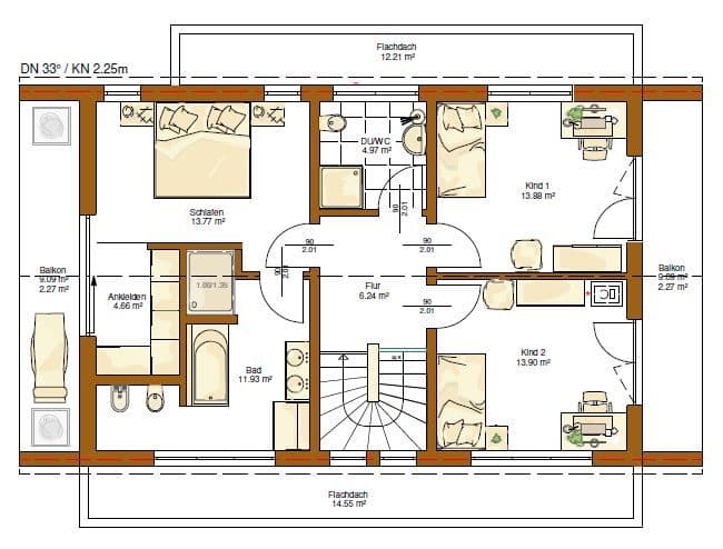
Grundriss DG.JPG
Innovation R Oasis Grundriss (DG)Wohnfläche DG: 74 m²

Kataloge

RENSCH-HAUS: Hauskatalog
RENSCH-HAUS

RENSCH-HAUS: Hauskatalog


House and TreeParksHouse and PinMusterhausHouse on HandAnbieter