Das Fertighaus Frechen ist ein elegantes Highlight unter den Häusern von RENSCH-HAUS. Die gegenläufig versetzten Pultdächer - kombiniert mit asymmetrisch angeordneten Flachdachanbauten - sind die prägenden Stilelemente. Eine Photovoltaikanlage trägt zur positiven Energiebilanz des Hauses bei.
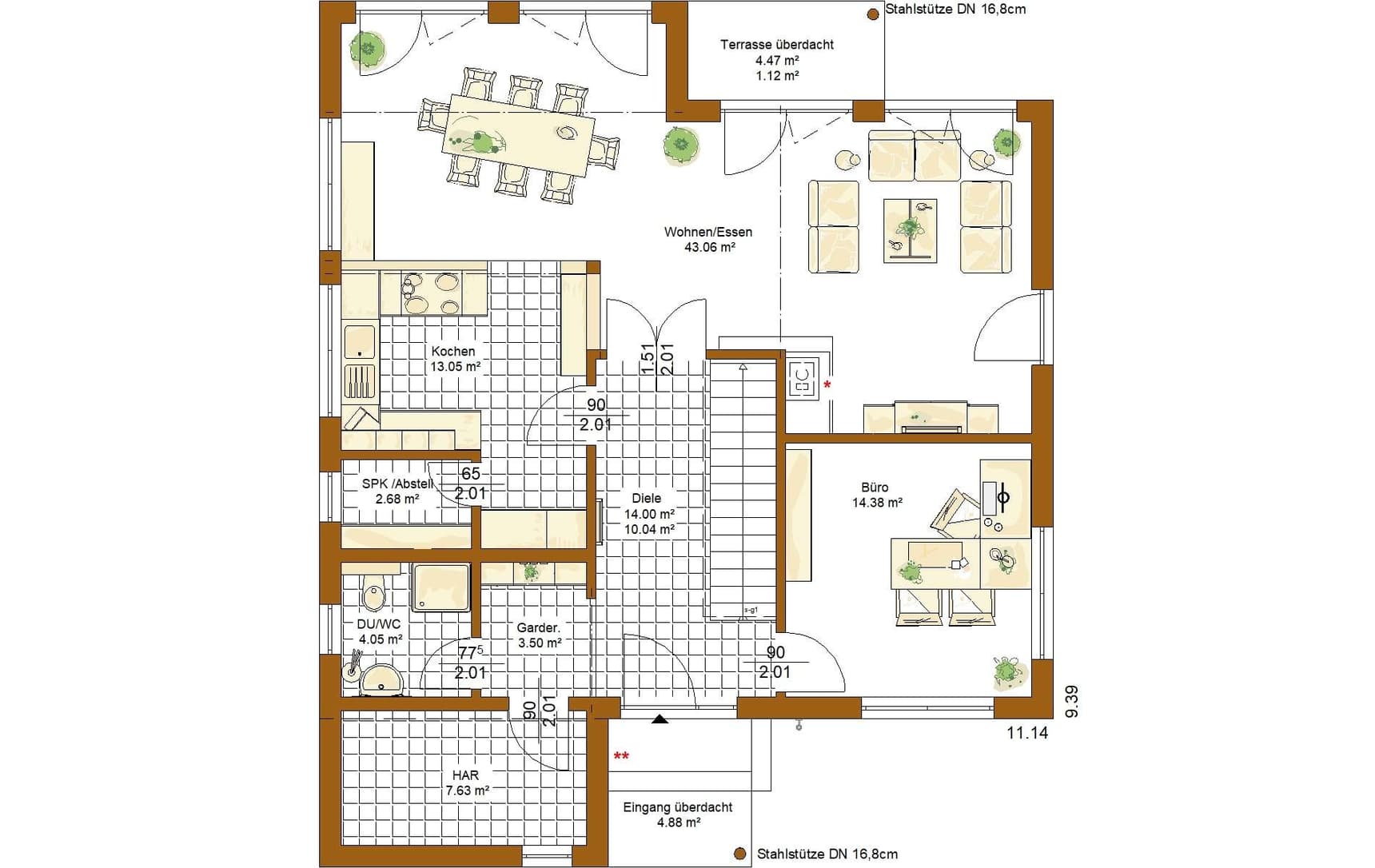
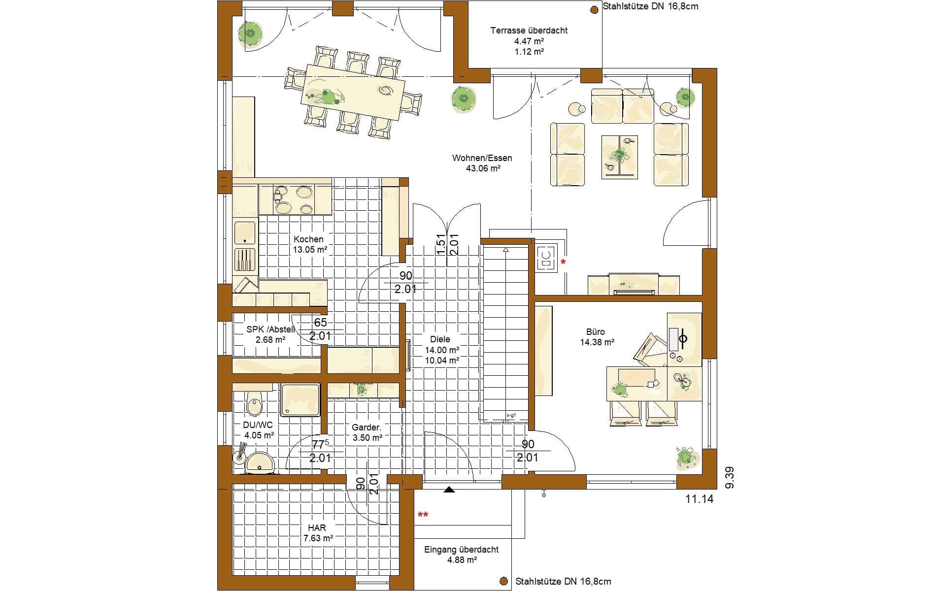
Auf zwei Etagen mit über 170 m² Wohnfläche bietet dieses Fertighaus ein durchdachtes und familienfreundliches Raumprogramm, das ohne Grundrissänderung sowohl auf Keller als auch auf Bodenplatte gebaut werden kann.
Schon die großzügige Diele mit der geradläufigen Treppe vermittelt direkt nach betreten des Hauses den offenen und frischen Charme, der im gesamten Hausinneren auf seine Bewohner und deren Besucher wartet.
Modern und großzügig von Glasflächen umgeben, präsentiert sich der Essbereich, der in direkter Verbindung zur offenen Küche steht. Auch das lichtdurchflutete Wohnzimmer befindet sich in direktem Anschluss, ist aber dennoch vom Koch- und Essbereich optisch abgetrennt.
Im Dachgeschoss befinden sich die beiden großzügigen Kinderzimmer, das Elternschlafzimmer mit begehbarer Ankleide sowie das schicke Familienbad. Rundum ein intelligentes und zeitgemäßes Wohnkonzept, das nicht nur bei jungen Familien alle Wünsche erfüllt.
(schließt heute 16:00 Uhr)

