1. AnbieterArrow Icon
  2. RENSCH-HAUSArrow Icon
  3. Innovation R Montego
Slide 1
Slide 2
Slide 3
Slide 4
no description
RENSCH-HAUSInnovation R Montego
homeKlassische Familienhäuser
livingArea319 m²
energyStandardEffizienzhaus 40
Preis anfragen
Katalog bestellen

Innovation R Montego

Moderne Interpretation eines großzügigen und stilvollen Landsitzes.

Das Haus „Montego“ ist sozusagen die moderne Interpretation eines großzügigen und stilvollen Landsitzes. Auf rund 295m² Wohnfläche bietet sich ein repräsentatives und geschmackvolles Raumprogramm mit vielen luxuriösen Details und Finessen wie z.B. einer Sauna, einer freistehenden Badewanne und mehreren „Panorama-Sitzfenstern“. Die wichtigsten Räume sind allesamt Richtung Garten ausgerichtet und mit großzügigen Glaselementen versehen. Diese sorgen für viel Tageslicht, Offenheit und beste Aussicht. Aber auch äußerlich ist dieses Haus alles andere als gewöhnlich und steht mit seiner ausdrucksstarken Architektur für den exklusiven Anspruch an Form und Design seiner Bewohner.

Hausdaten

Hausart Icon
HausartEinfamilienhaus
Bauweise Icon
BauweiseHolz-Tafelbau
Anzahl Räume Icon
Anzahl Räume10
Baustil Icon
BaustilKlassische Familienhäuser
Außenmaße Icon
Außenmaße14.39 m x 9.14 m
Wohnfläche Icon
Wohnfläche319 m²
Dachform Icon
DachformSattel-/Giebeldach
Etagen Icon
Etagen3
Energiestandard Icon
EnergiestandardEffizienzhaus 40
Immobilientyp Icon
ImmobilientypPlanungsidee
Dachneigung Icon
Dachneigung38°
Kniestock Icon
Kniestock0.1 m
Pfeil nach unten linksWir schaffen Platz für Ihre Träume

Grundriss

01_Montego_EG.jpg
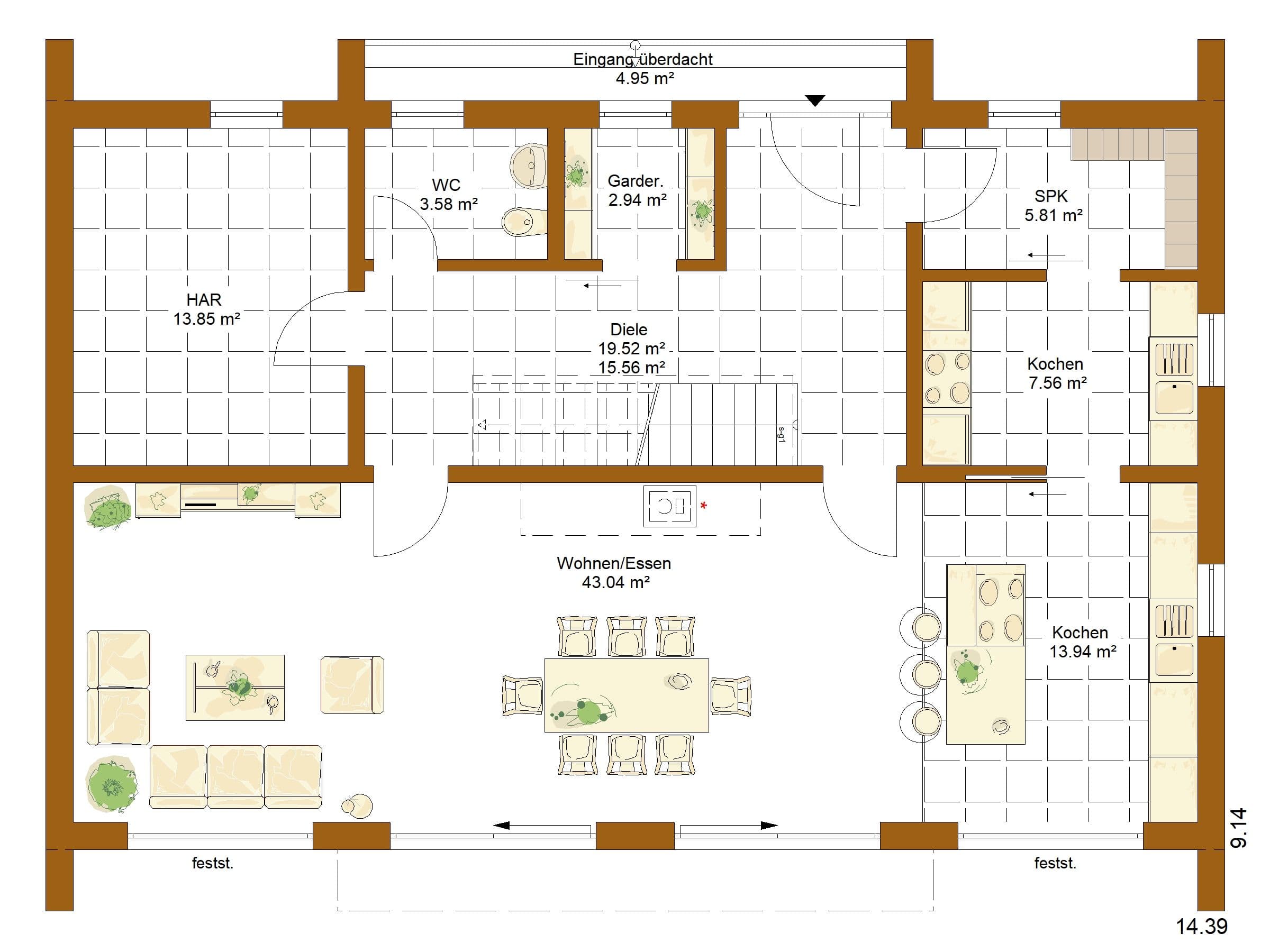
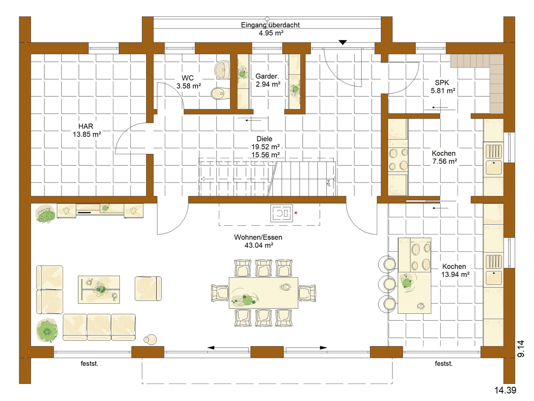
Innovation R Montego Grundriss (EG)Wohnfläche EG: 110 m²
01_Montego_OG.jpg
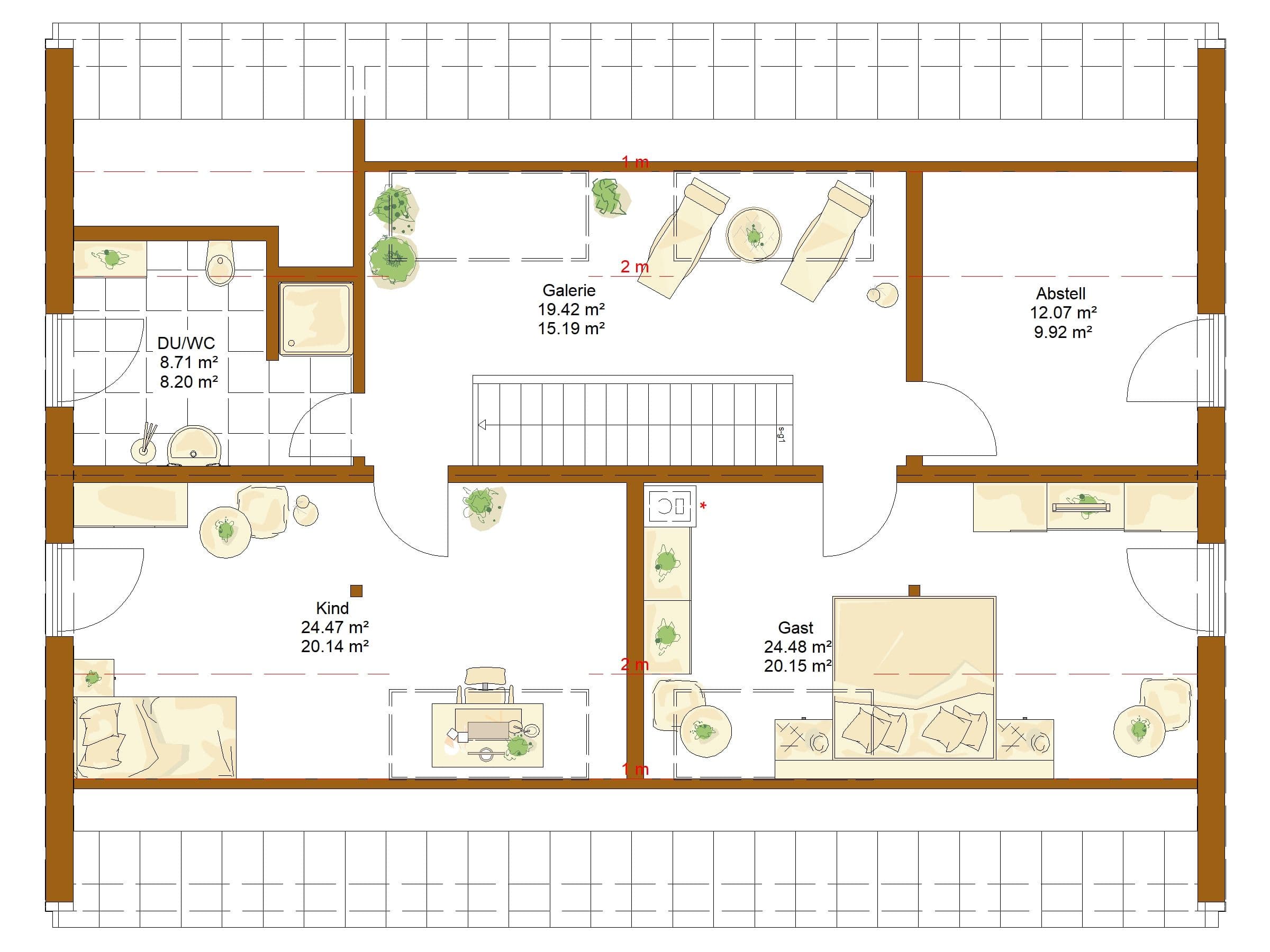
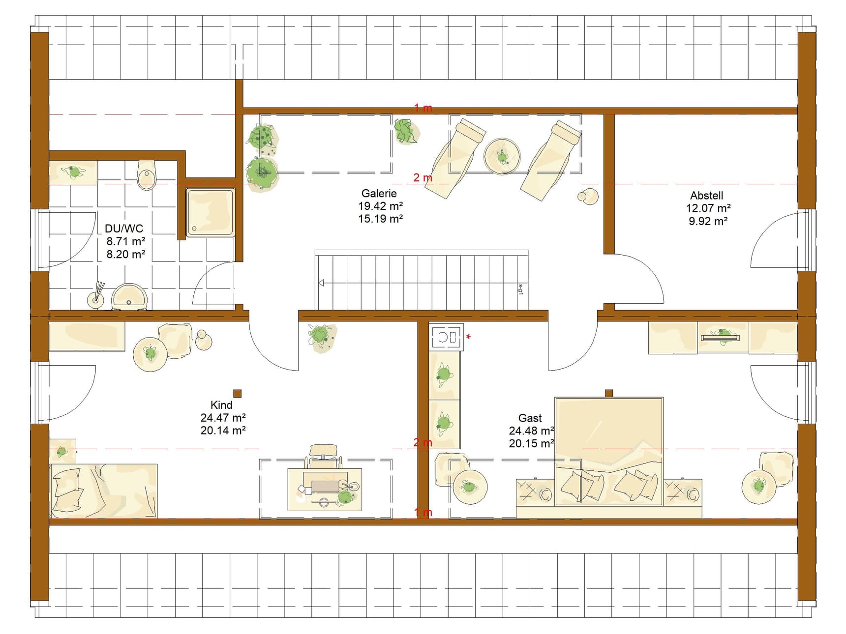
Innovation R Montego Grundriss (OG)Wohnfläche OG: 113 m²
01_Montego_DG.jpg
Innovation R Montego Grundriss (DG)Wohnfläche DG: 96 m²

Kataloge

RENSCH-HAUS: Hauskatalog
RENSCH-HAUS

RENSCH-HAUS: Hauskatalog


House and TreeParksHouse and PinMusterhausHouse on HandAnbieter