1. AnbieterArrow Icon
  2. RENSCH-HAUSArrow Icon
  3. Twinline R Vicenza
Slide 1
Slide 2
Slide 3
Slide 4
no description
RENSCH-HAUSTwinline R Vicenza
homeKlassische Familienhäuser
livingArea124 m²
energyStandardEffizienzhaus 40
Preis anfragen
Katalog bestellen

Twinline R Vicenza

Die geradlinige Architektur ist ein Klassiker.

Die Architektur des Hauses Vicenza wird durch eine ansprechende Farbkombination aufgelockert und harmonisch in Szene gesetzt. Ein 30° geneigtes Satteldach und ein 2,25 m hoher Kniestock sorgen für ein überraschend großes Raumangebot unterm Dach. Das hervorragende Kosten-Nutzenverhältnis dieser Komponenten überzeugt. Zudem bietet die Dachfläche die optimale Basis für die Nutzung solarer Energie.

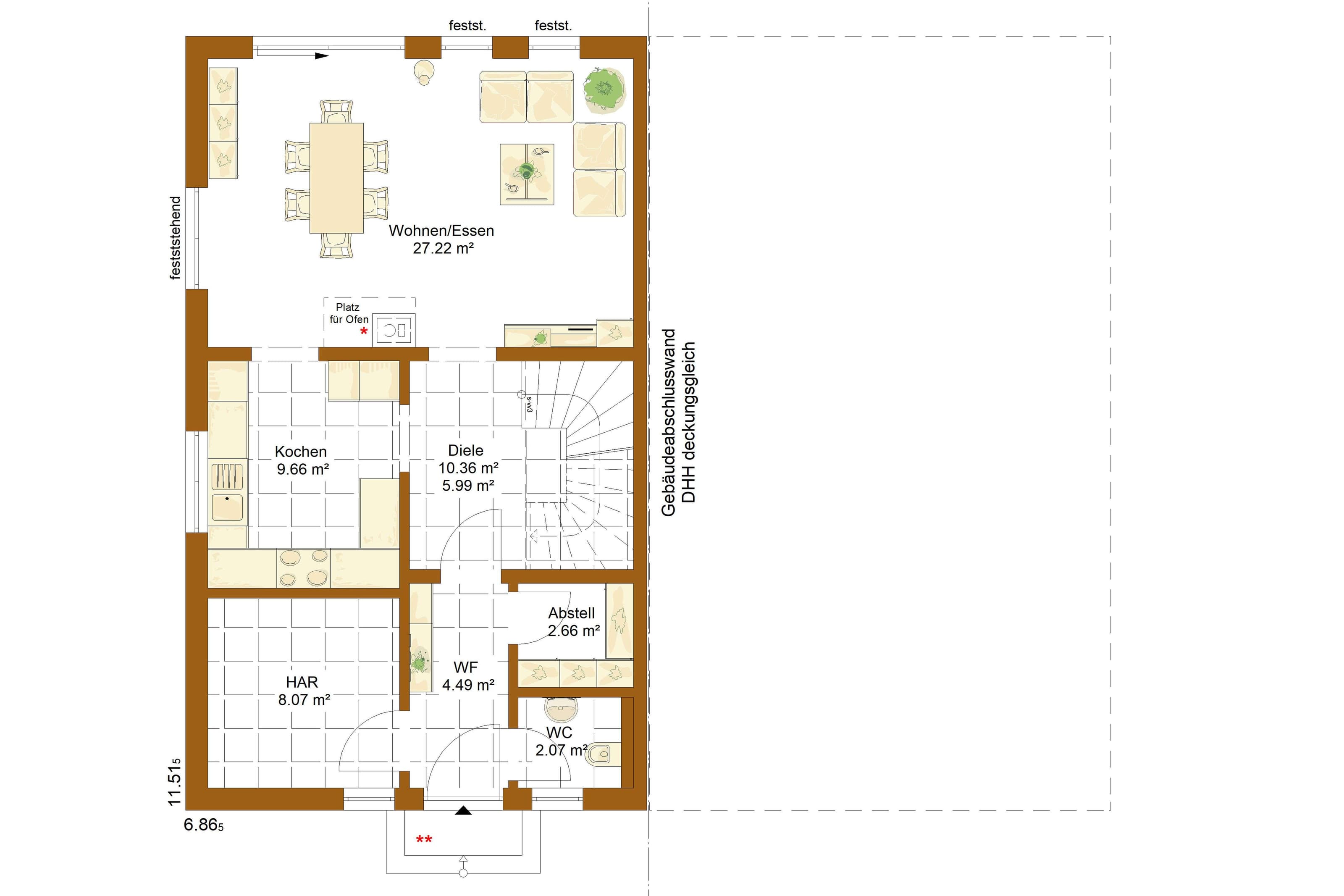
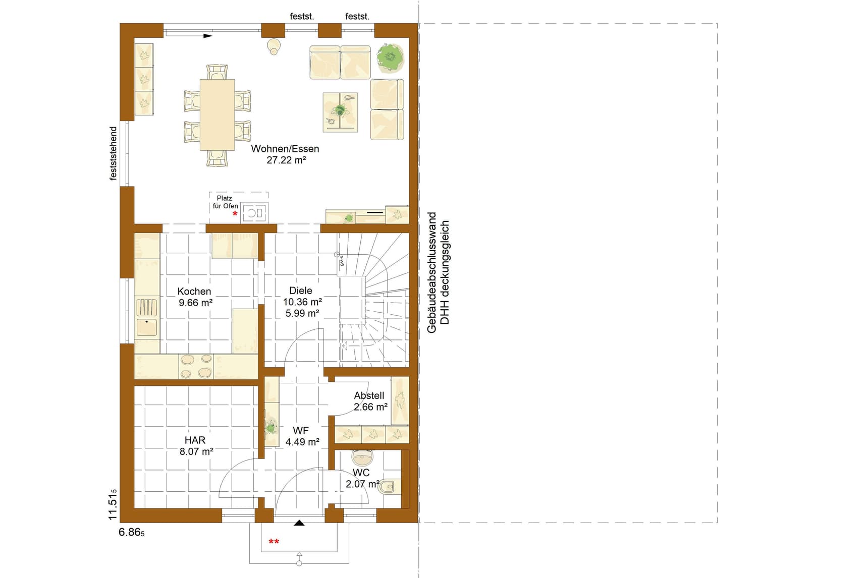
Das helle und freundliche Wohn-/Esszimmer ist zur Gartenseite hin ausgerichtet und steht über offene Durchgänge in unmittelbarer Verbindung sowohl zur Küche als auch zur Diele. Über die Holztreppe kommt man von hier aus auf direktem Wege in das Dachgeschoss, in dem sich die Schlafräume und das gemeinsame Familienbad befinden. Die beiden Kinderzimmer sind im Grundriss mit etwas Distanz zueinander angeordnet. Dies ermöglicht den Kindern maximalen Freiraum. Ein weiteres Highlight ist außerdem das nahezu 20 m² große Elternschlafzimmer mit tollem Ausblick in den Garten.

Hausdaten

Hausart Icon
HausartDoppelhaus
Bauweise Icon
BauweiseHolz-Tafelbau
Baustil Icon
BaustilKlassische Familienhäuser
Fassade Icon
FassadePutz
Außenmaße Icon
Außenmaße6.86 m x 11.51 m
Wohnfläche Icon
Wohnfläche124 m²
Dachform Icon
DachformSattel-/Giebeldach
Etagen Icon
Etagen2
Energiestandard Icon
EnergiestandardEffizienzhaus 40
Immobilientyp Icon
ImmobilientypPlanungsidee
Dachneigung Icon
Dachneigung30°
Kniestock Icon
Kniestock2.25 m
Hauseigenschaften Icon
HauseigenschaftenTerasse
Hausdämmstoff Icon
HausdämmstoffMineralfaser (Glaswolle, Steinwolle)
Heizungsart Icon
HeizungsartWärmepumpe (Luft, Wasser, oder beides)
Pfeil nach unten linksWir schaffen Platz für Ihre Träume

Grundriss

no description
Twinline R Vicenza Grundriss (EG)Wohnfläche EG: 65 m²
no description
Twinline R Vicenza Grundriss (DG)Wohnfläche DG: 59 m²

Kataloge

RENSCH-HAUS: Hauskatalog
RENSCH-HAUS

RENSCH-HAUS: Hauskatalog


House and TreeParksHouse and PinMusterhausHouse on HandAnbieter