1. AnbieterArrow Icon
  2. RENSCH-HAUSArrow Icon
  3. Toronto
Slide 1
Slide 2
Slide 3
Slide 4
no description
RENSCH-HAUSToronto
homeKubushäuser im Bauhausstil
livingArea220 m²
energyStandardEffizienzhaus 40 EE
Preis anfragen
Katalog bestellen

Toronto

Unverwechselbare Kubus-Architektur.

Puristisch und modern präsentiert sich der Entwurf des Hauses Toronto. Markante Details, wie ein überdachter Eingangsbereich oder die im Hauskörper integrierte und von filigranen Rahmen umgebene Loggia, runden das Erscheinungsbild in geschmackvoller Art und Weise ab. Der Grundriss ist konsequent geradlinig und entspricht einem außergewöhnlichen Wohnanspruch. Direkt vom Windfang aus gelangt man in den üppig dimensionierten und großzügig verglasten Mittelpunkt des Hauses. Dieser Bereich, der für gemeinsames Kochen und Essen reserviert ist, dient gleichzeitig als Dreh- und Angelpunkt des gesamten Familienlebens: von hier aus gelangt man in alle übrigen Räume des Erdgeschosses. Auch die geradläufige Treppe findet hier ihren Platz und führt auf direktem Wege in die obere Etage.

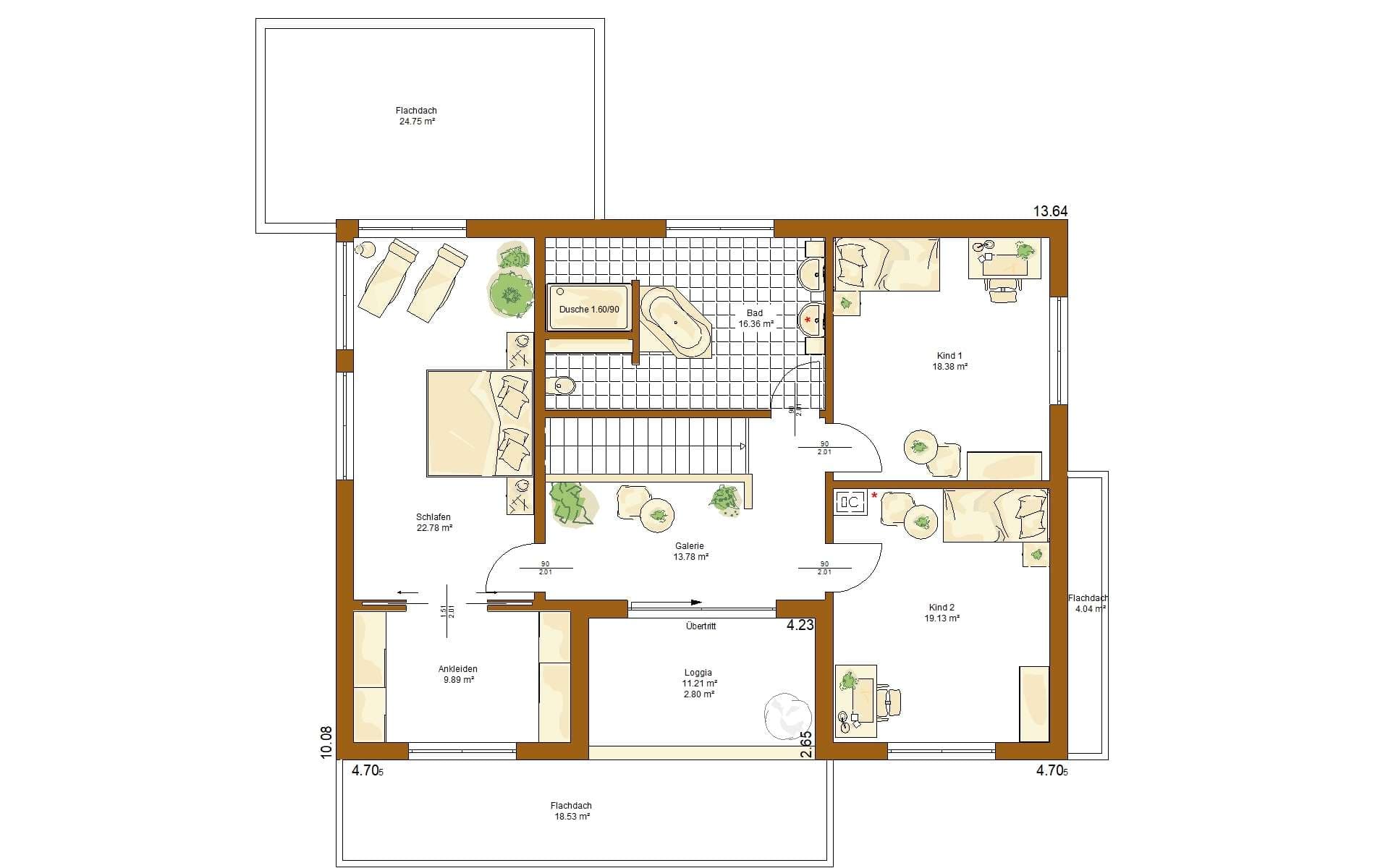
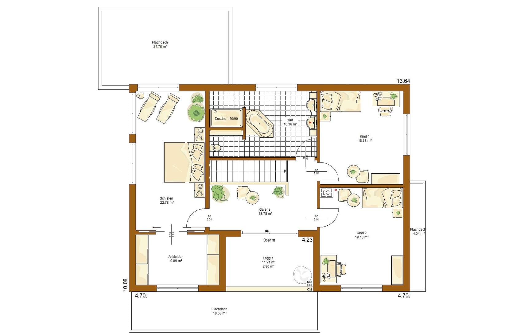
Oben angekommen erwarten Sie als Erstes die lichtdurchflutete Galerie und der zum Verweilen einladende Freisitz. Auch das geräumige und modern ausgestattete Familienbad befindet sich in zentraler Lage. Gegenüber den beiden Kinderzimmern liegt der Bereich für die Eltern, der durch seine Weite und eine Vielzahl von Fenstern besticht.

Hausdaten

Hausart Icon
HausartEinfamilienhaus
Bauweise Icon
BauweiseHolz-Tafelbau
Baustil Icon
BaustilKubushäuser im Bauhausstil
Fassade Icon
FassadePutz
Außenmaße Icon
Außenmaße13.64 m x 10.08 m
Wohnfläche Icon
Wohnfläche220 m²
Dachform Icon
DachformFlachdach
Energiestandard Icon
EnergiestandardEffizienzhaus 40 EE
Immobilientyp Icon
ImmobilientypPlanungsidee
Hauseigenschaften Icon
HauseigenschaftenTerasse
Hausdämmstoff Icon
HausdämmstoffMineralfaser (Glaswolle, Steinwolle)
Heizungsart Icon
HeizungsartWärmepumpe (Luft, Wasser, oder beides)
Pfeil nach unten linksWir schaffen Platz für Ihre Träume

Grundriss

no description
Toronto Grundriss (EG)Wohnfläche EG: 108 m²
no description
Toronto Grundriss (OG)Wohnfläche OG: 112 m²

Kataloge

RENSCH-HAUS: Hauskatalog
RENSCH-HAUS

RENSCH-HAUS: Hauskatalog


House and TreeParksHouse and PinMusterhausHouse on HandAnbieter