1. AnbieterArrow Icon
  2. RENSCH-HAUSArrow Icon
  3. Twinline R Salerno
Slide 1
Slide 2
Slide 3
Slide 4
no description
RENSCH-HAUSTwinline R Salerno
homeKlassische Familienhäuser
livingArea174 m²
energyStandardEffizienzhaus 40 EE
Preis anfragen
Katalog bestellen

Twinline R Salerno

Zeitlose Formensprache

Das Doppelhaus Salerno setzt auf eine zeitlose Formensprache, verbunden mit aktuellen Architekturelementen wie einem Flachdachgiebel und modernen Fassadenapplikationen.

Ein flexibel nutzbares Studio erweitert das Platzangebot des bewährten Raumprogrammes um fast 50 m². Diese wertvolle Raumreserve können Sie auf vielfältige Weise nutzen: Relax- und Wellnessbereich Hobbies, Gäste oder Atelier.

Im Obergeschoss befinden sich neben den beiden Kinderzimmern auch das Elternschlafzimmer und das gemeinsame Familienbad. Noch eine Ebene tiefer, im Erdgeschoss, sind die wesentlichen Wohnräume wie Kochen, Essen und Wohnen angeordnet.

Hausdaten

Hausart Icon
HausartDoppelhaus
Bauweise Icon
BauweiseHolz-Tafelbau
Baustil Icon
BaustilKlassische Familienhäuser
Fassade Icon
FassadePutz
Außenmaße Icon
Außenmaße6.86 m x 11.51 m
Wohnfläche Icon
Wohnfläche174 m²
Dachform Icon
DachformFlachdach
Etagen Icon
Etagen3
Energiestandard Icon
EnergiestandardEffizienzhaus 40 EE
Immobilientyp Icon
ImmobilientypPlanungsidee
Hauseigenschaften Icon
HauseigenschaftenTerasse
Hausdämmstoff Icon
HausdämmstoffMineralfaser (Glaswolle, Steinwolle)
Heizungsart Icon
HeizungsartWärmepumpe (Luft, Wasser, oder beides)
Pfeil nach unten linksWir schaffen Platz für Ihre Träume

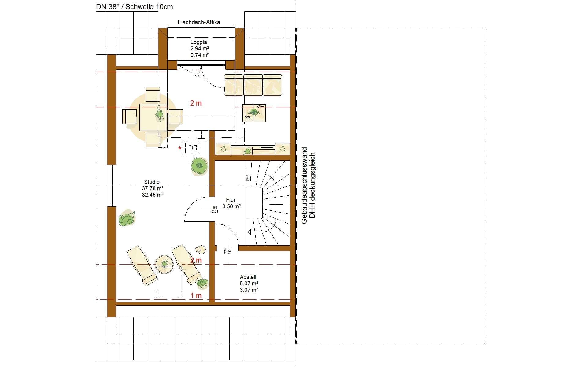
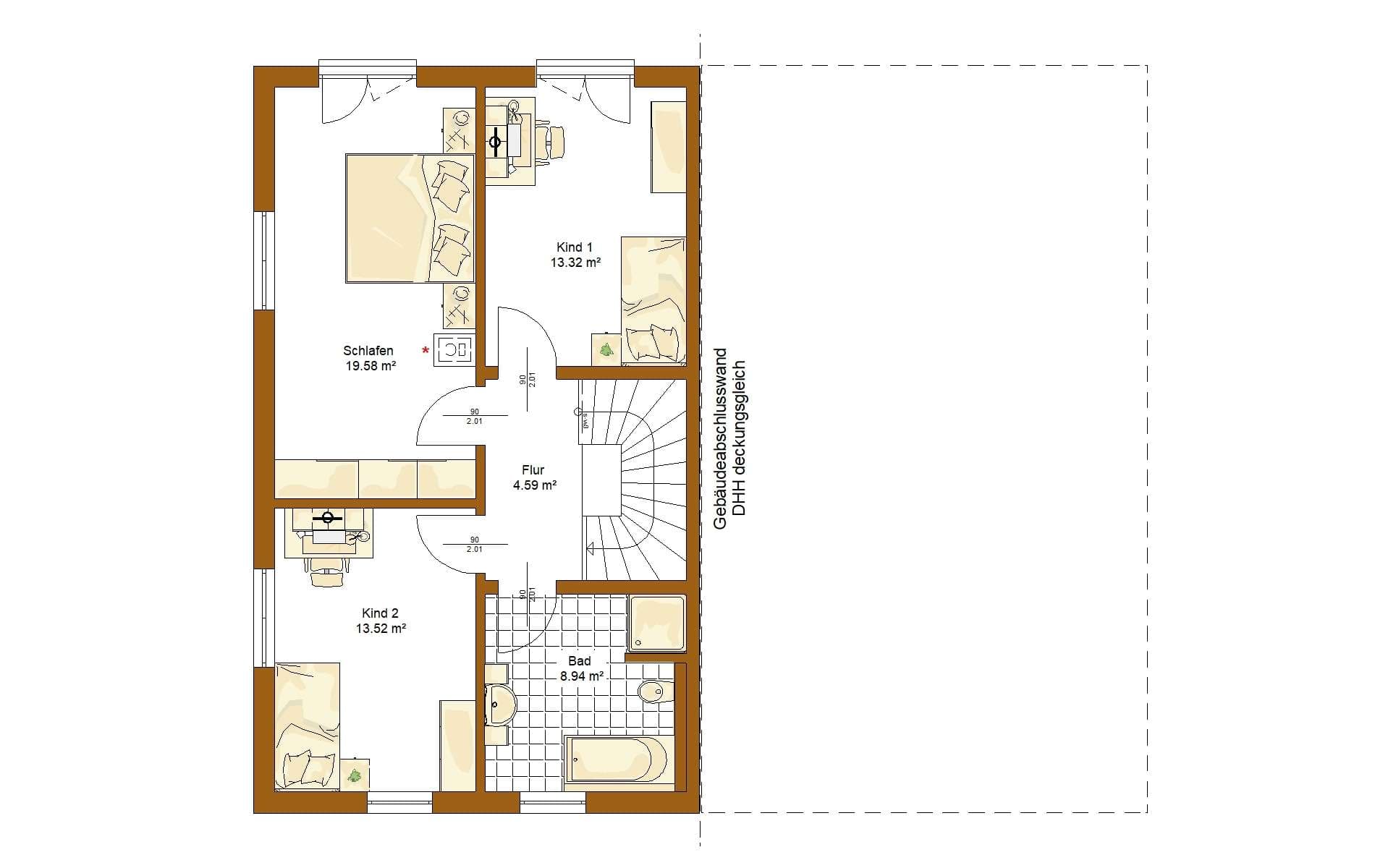
Grundriss

no description
Twinline R Salerno Grundriss (EG)Wohnfläche EG: 65 m²
no description
Twinline R Salerno Grundriss (OG)Wohnfläche OG: 60 m²
no description
Twinline R Salerno Grundriss (DG)Wohnfläche DG: 49 m²

Kataloge

RENSCH-HAUS: Hauskatalog
RENSCH-HAUS

RENSCH-HAUS: Hauskatalog


House and TreeParksHouse and PinMusterhausHouse on HandAnbieter