1. AnbieterArrow Icon
  2. RENSCH-HAUSArrow Icon
  3. Twinline R Ravenna
Slide 1
Slide 2
Slide 3
Slide 4
no description
RENSCH-HAUSTwinline R Ravenna
homeKlassische Familienhäuser
livingArea164 m²
energyStandardEffizienzhaus 40 EE
Preis anfragen
Katalog bestellen

Twinline R Ravenna

Hoch hinaus und doch bodenständig

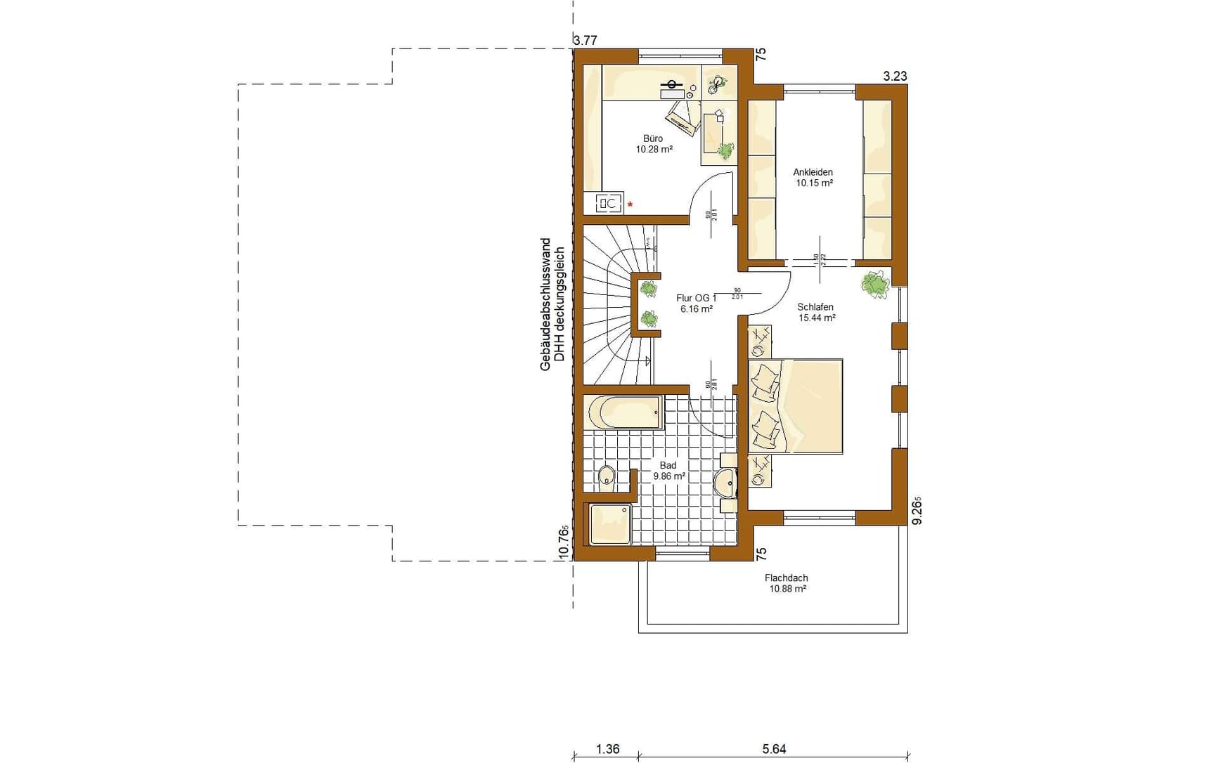
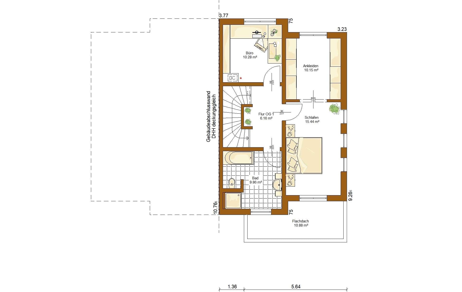
Das Doppelhaus Ravenna verfügt über drei Vollgeschosse mit insgesamt 164 m² nutzbare Fläche. Die Flachdacharchitektur ist betont nüchtern und wird durch gezielt eingesetzte Applikationen betont. Bemerkenswert ist das oberste Stockwerk, welches einzig und allein dem Nachwuchs vorbehalten ist. Beide Kinderzimmer sind jeweils in zwei Bereiche für Schlafen bzw. Spielen oder Arbeiten aufgeteilt und bieten einen herrlichen Ausblick auf die gesamte Umgebung. Die mittlere Ebene beinhaltet das Elternschlafzimmer mit großer Ankleide, das Büro und ein gemeinsames Badezimmer.

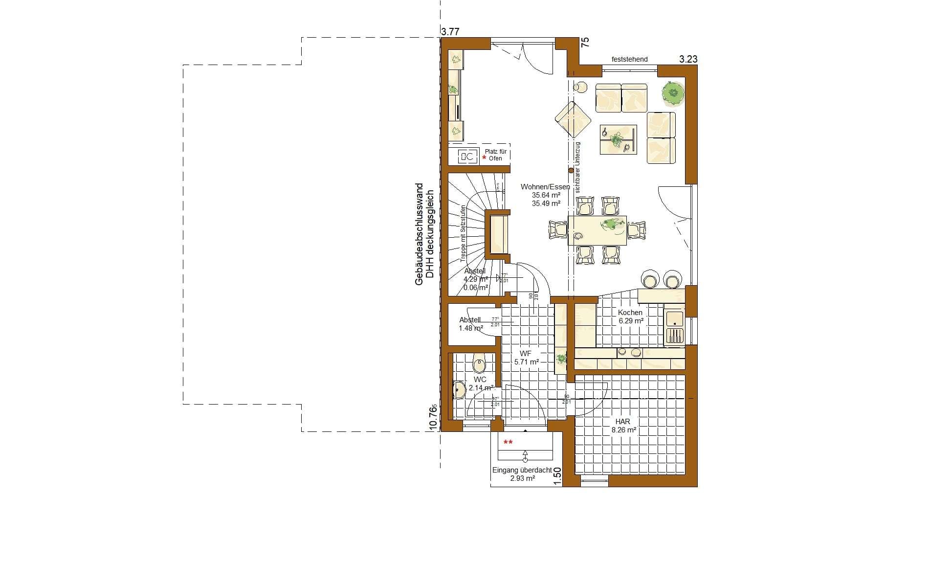
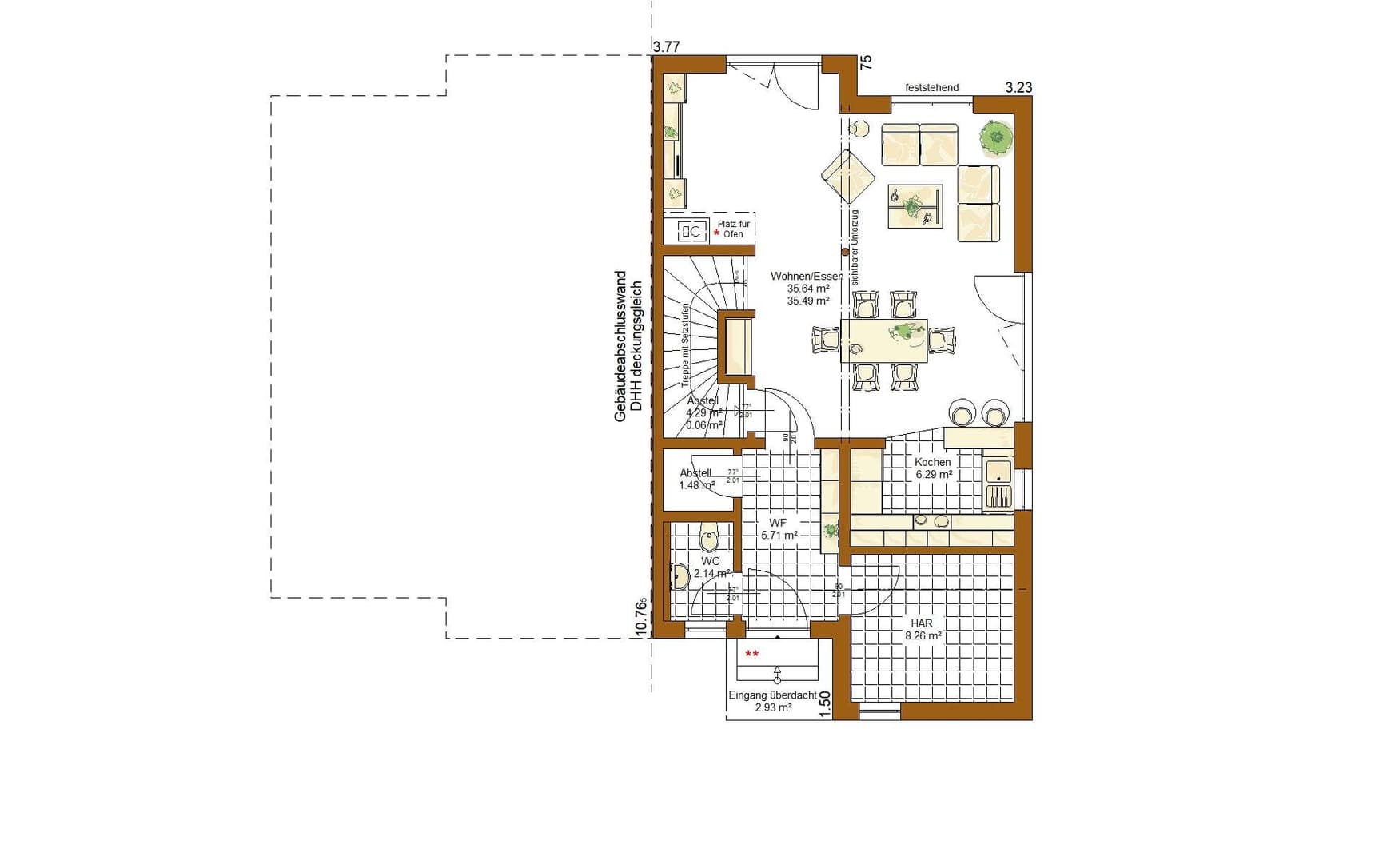
Ganz unten und auf Augenhöhe mit der Gartenanlage befinden sich die gemeinsamen Wohnräume: die offene Küche und das Wohn-Esszimmer. Neben dem Hausanschlussraum gibt es auf gleicher Ebene noch ein WC, einen Abstellraum und einen Windfang. Zusätzlich ist unter der Treppe noch ein weiterer Abstellraum berücksichtigt.

Hausdaten

Hausart Icon
HausartZweifamilienhaus
Bauweise Icon
BauweiseHolz-Tafelbau
Baustil Icon
BaustilKlassische Familienhäuser
Fassade Icon
FassadePutz
Außenmaße Icon
Außenmaße7 m x 24.52 m
Wohnfläche Icon
Wohnfläche164 m²
Dachform Icon
DachformFlachdach
Etagen Icon
Etagen3
Energiestandard Icon
EnergiestandardEffizienzhaus 40 EE
Immobilientyp Icon
ImmobilientypPlanungsidee
Hauseigenschaften Icon
HauseigenschaftenTerasse
Hausdämmstoff Icon
HausdämmstoffMineralfaser (Glaswolle, Steinwolle)
Heizungsart Icon
HeizungsartWärmepumpe (Luft, Wasser, oder beides)
Pfeil nach unten linksWir schaffen Platz für Ihre Träume

Grundriss

no description
Twinline R Ravenna Grundriss (EG)Wohnfläche EG: 64 m²
no description
Twinline R Ravenna Grundriss (OG)Wohnfläche OG: 52 m²
no description
Twinline R Ravenna Grundriss (DG)Wohnfläche DG: 48 m²

Kataloge

RENSCH-HAUS: Hauskatalog
RENSCH-HAUS

RENSCH-HAUS: Hauskatalog


House and TreeParksHouse and PinMusterhausHouse on HandAnbieter