1. AnbieterArrow Icon
  2. RENSCH-HAUSArrow Icon
  3. Nizza L
Bungalow von RENSCH-HAUS. Nizza L. Terrassenansicht.
no description
RENSCH-HAUSNizza L
homeKlassische Familienhäuser
livingArea91 m²
energyStandardEffizienzhaus 40 EE
Preis anfragen
Katalog bestellen

Nizza L

Bungalow mit Satteldach

Der Bungalow Nizza im Rechteckformat steht für Liebhaber schlichter und zeitloser Architektur. Nichts lenkt die Aufmerksamkeit vom eigentlichen Haus ab.

Durch die geschickte Platzierung von eleganten Fassadenapplikationen setzten Sie trotz der klassischen Architektur ganz persönliche Akzente.

Hausdaten

Hausart Icon
HausartEinfamilienhaus
Bauweise Icon
BauweiseHolz-Tafelbau
Baustil Icon
BaustilKlassische Familienhäuser
Fassade Icon
FassadePutz
Außenmaße Icon
Außenmaße12.14 m x 9.39 m
Wohnfläche Icon
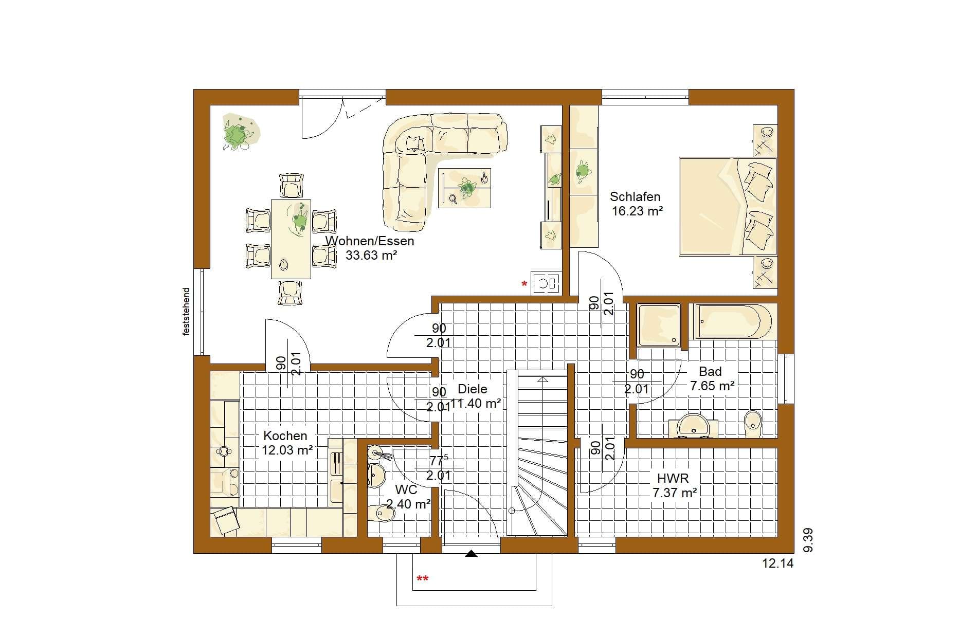
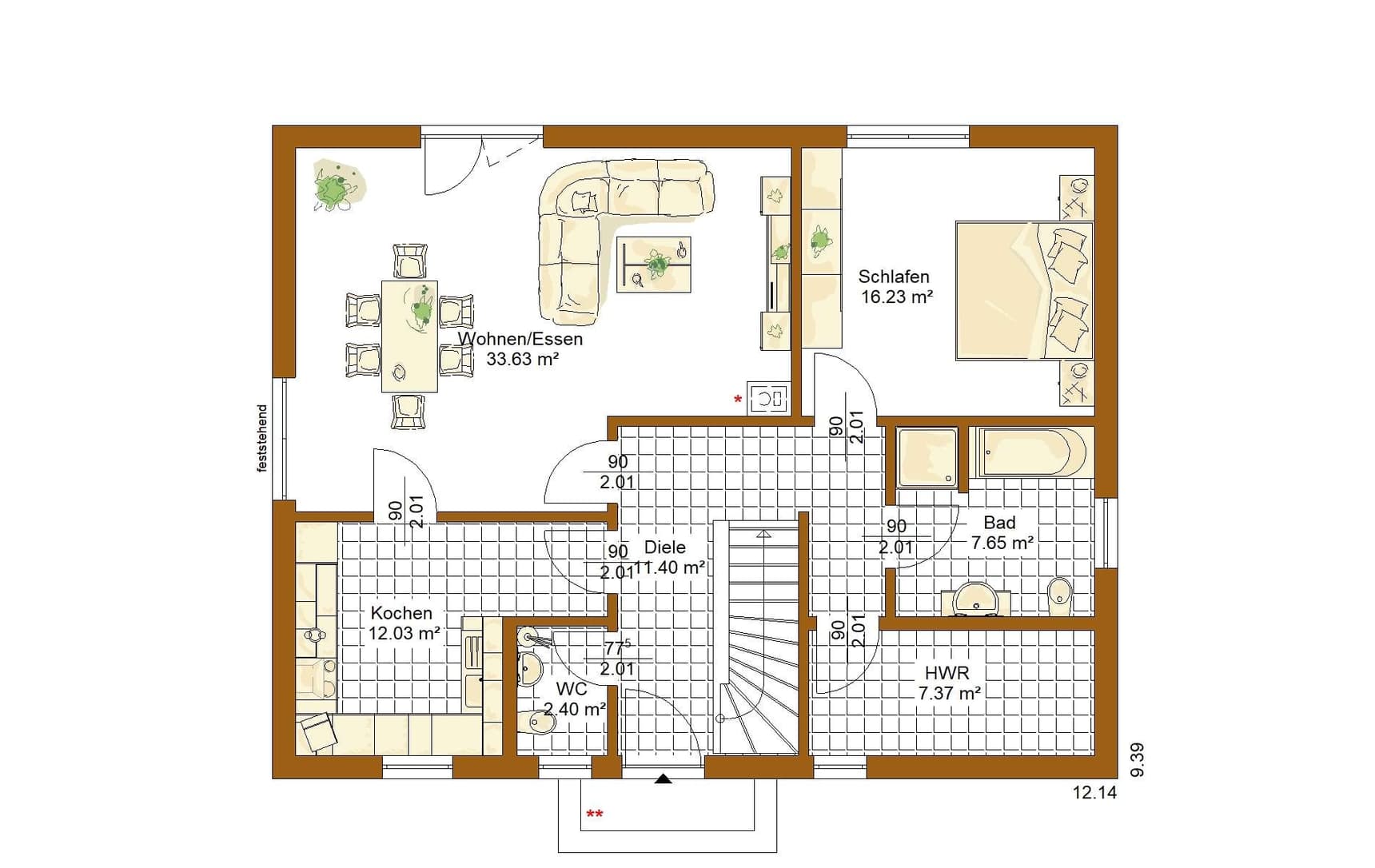
Wohnfläche91 m²
Dachform Icon
DachformSattel-/Giebeldach
Energiestandard Icon
EnergiestandardEffizienzhaus 40 EE
Immobilientyp Icon
ImmobilientypPlanungsidee
Dachneigung Icon
Dachneigung25°
Hauseigenschaften Icon
HauseigenschaftenTerasse
Hausdämmstoff Icon
HausdämmstoffMineralfaser (Glaswolle, Steinwolle)
Heizungsart Icon
HeizungsartWärmepumpe (Luft, Wasser, oder beides)
Pfeil nach unten linksWir schaffen Platz für Ihre Träume

Grundriss

no description
Nizza L Grundriss (EG)Wohnfläche EG: 91 m²

Kataloge

RENSCH-HAUS: Hauskatalog
RENSCH-HAUS

RENSCH-HAUS: Hauskatalog


House and TreeParksHouse and PinMusterhausHouse on HandAnbieter