1. AnbieterArrow Icon
  2. RENSCH-HAUSArrow Icon
  3. Twinline R Neapel
Slide 1
Slide 2
Slide 3
Slide 4
no description
RENSCH-HAUSTwinline R Neapel
homeKlassische Familienhäuser
livingArea207 m²
energyStandardEffizienzhaus 40 EE
Preis anfragen
Katalog bestellen

Twinline R Neapel

Eine trendige Symbiose aus Satteldacharchitektur und modernem Flachdachanbau

Der eigens dafür vorgesehene Anbau beherbergt eine ca. 50 m² große Einliegerwohnung. Direkt im Anschluss und über einen gemeinsamen Eingangsbereich verbunden befindet sich die Hauptwohnung, die sich mit weiteren 130 m² Wohnfläche über einen Großteil des Erdgeschosses und das gesamte Dachgeschoss erstreckt. Die Verbindung schafft eine moderne Podesttreppe.

Ganz klassisch befinden sich die Wohnräume im Erdgeschoss und die Schlafräume, das Familienbad sowie ein zusätzliches Büro eine Etage weiter oben. Das traditionsbewusste Haupthaus mit Satteldach und drittem Giebel in Verbindung mit dem kubischen Anbau verleihen diesem Haus einen ganz eigenen Charakter.

Hausdaten

Hausart Icon
HausartZweifamilienhaus
Bauweise Icon
BauweiseHolz-Tafelbau
Baustil Icon
BaustilKlassische Familienhäuser
Fassade Icon
FassadePutz
Außenmaße Icon
Außenmaße14.64 m x 14.61 m
Wohnfläche Icon
Wohnfläche207 m²
Dachform Icon
DachformSattel-/Giebeldach
Etagen Icon
Etagen2
Energiestandard Icon
EnergiestandardEffizienzhaus 40 EE
Immobilientyp Icon
ImmobilientypPlanungsidee
Dachneigung Icon
Dachneigung35°
Kniestock Icon
Kniestock1.75 m
Hauseigenschaften Icon
HauseigenschaftenEinliegerwohnung
Hausdämmstoff Icon
HausdämmstoffMineralfaser (Glaswolle, Steinwolle)
Heizungsart Icon
HeizungsartWärmepumpe (Luft, Wasser, oder beides)
Pfeil nach unten linksWir schaffen Platz für Ihre Träume

Grundriss

no description
Twinline R Neapel Grundriss (EG)Wohnfläche EG: 126 m²
no description
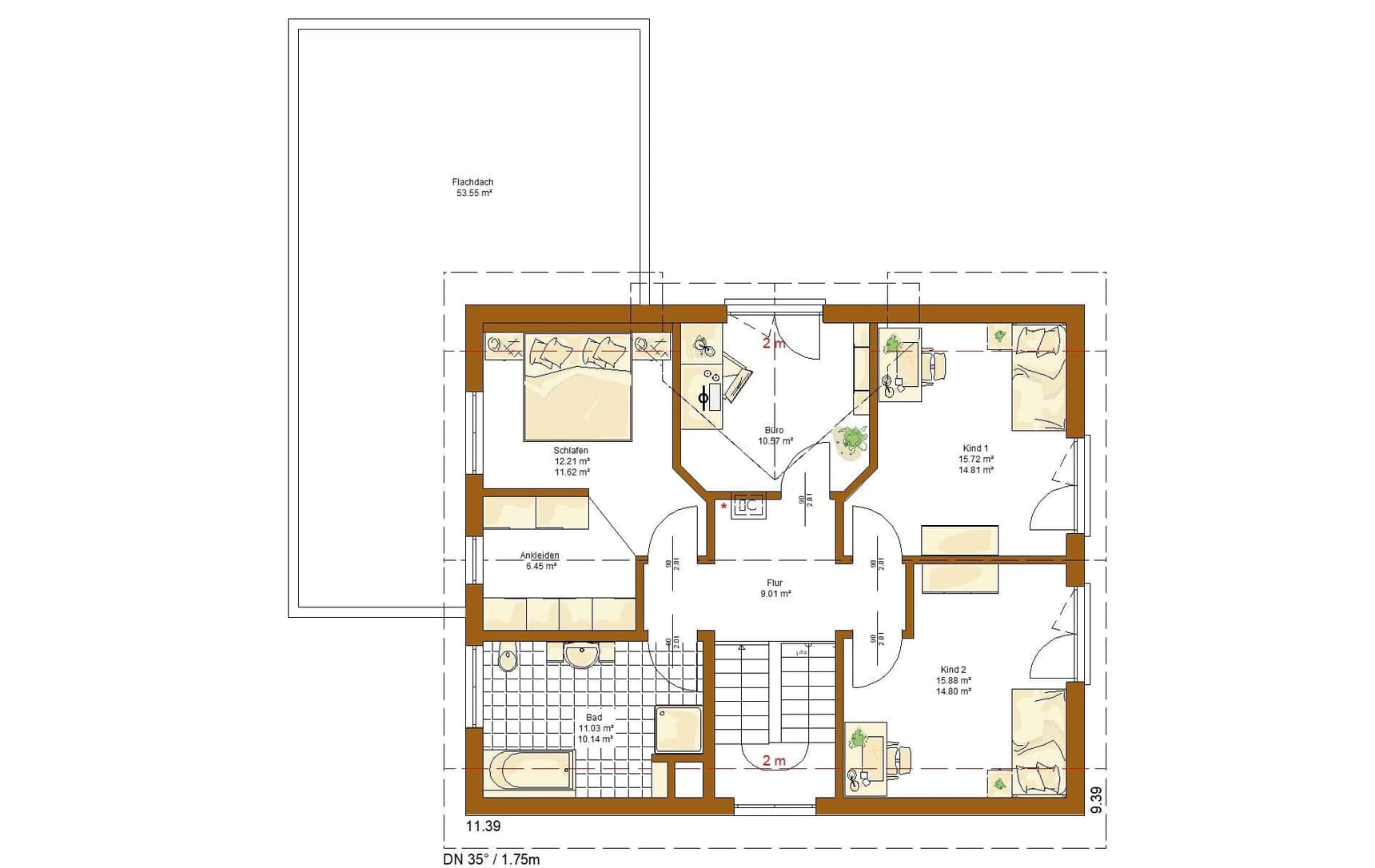
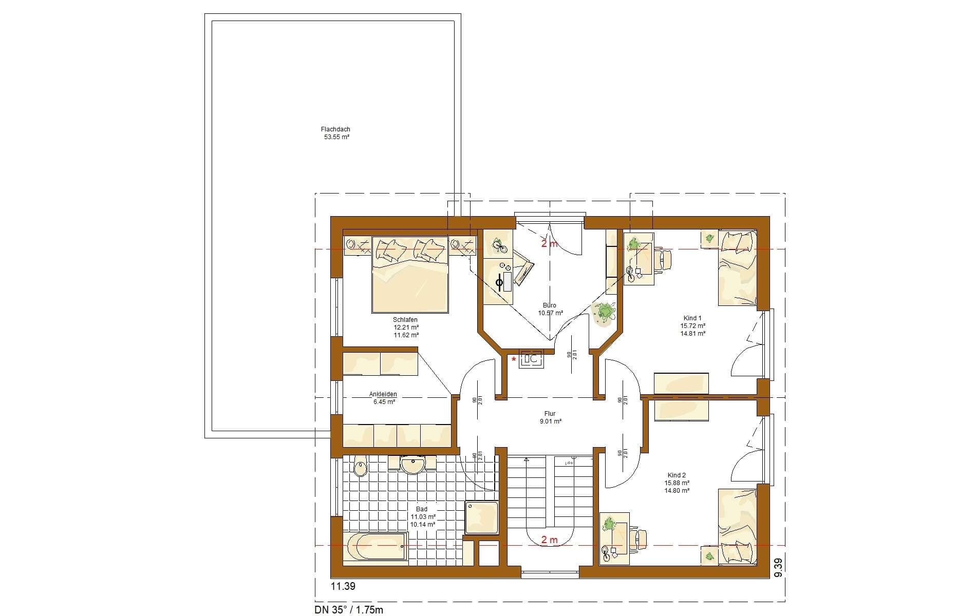
Twinline R Neapel Grundriss (DG)Wohnfläche DG: 81 m²

Kataloge

RENSCH-HAUS: Hauskatalog
RENSCH-HAUS

RENSCH-HAUS: Hauskatalog


House and TreeParksHouse and PinMusterhausHouse on HandAnbieter