Seit Ende Juni 2019 gibt es einen weiteren Grund das Fertighaus Center in Mannheim zu besuchen. Dort erwartet alle Interessierten das brandaktuelle Musterhaus Mannheim von RENSCH-HAUS aus der Rhön. Mannheim ist die konsequente Erweiterung der Hauslinie Trendline R, die für geradlinig, zugleich imposante Flach- und Pultdächer steht. Das gestalterische Grundkonzept des Flachdachhauses zeigt eine Definition des klassisch, modernen und doch traditionellen Bauhausstils. Mannheim hat Charme: Anbauelemente, wie die Terrassen- oder Eingangsüberdachung verschmelzen durch ihre Linienführung mit dem Hauptbaukörper. Optisches Highlight der Außenfassade sind die in Rostoptik gehaltenen HPL-Kompaktplatten, die aus hochdruckverpressten harzimprägnierten Kraftpapieren bestehen.
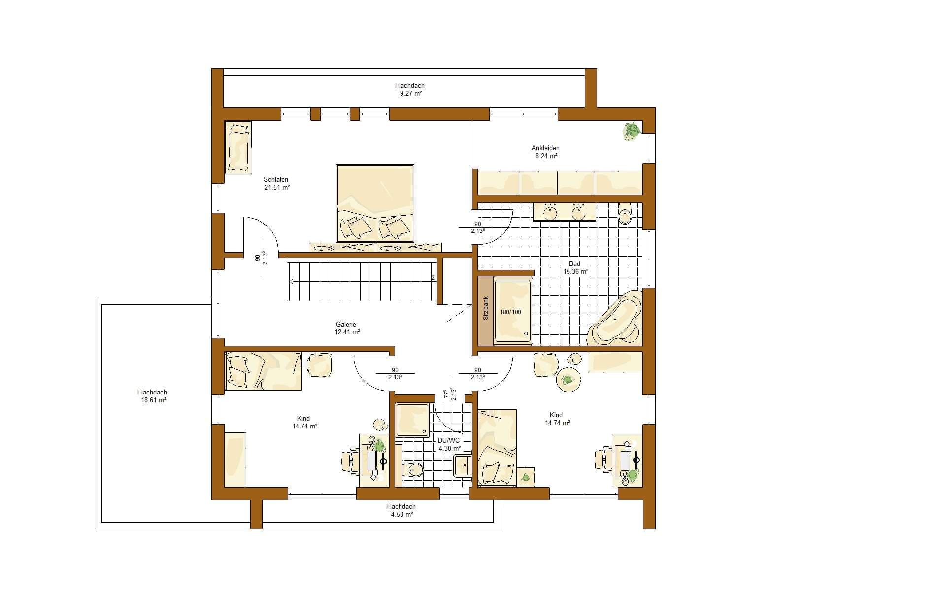
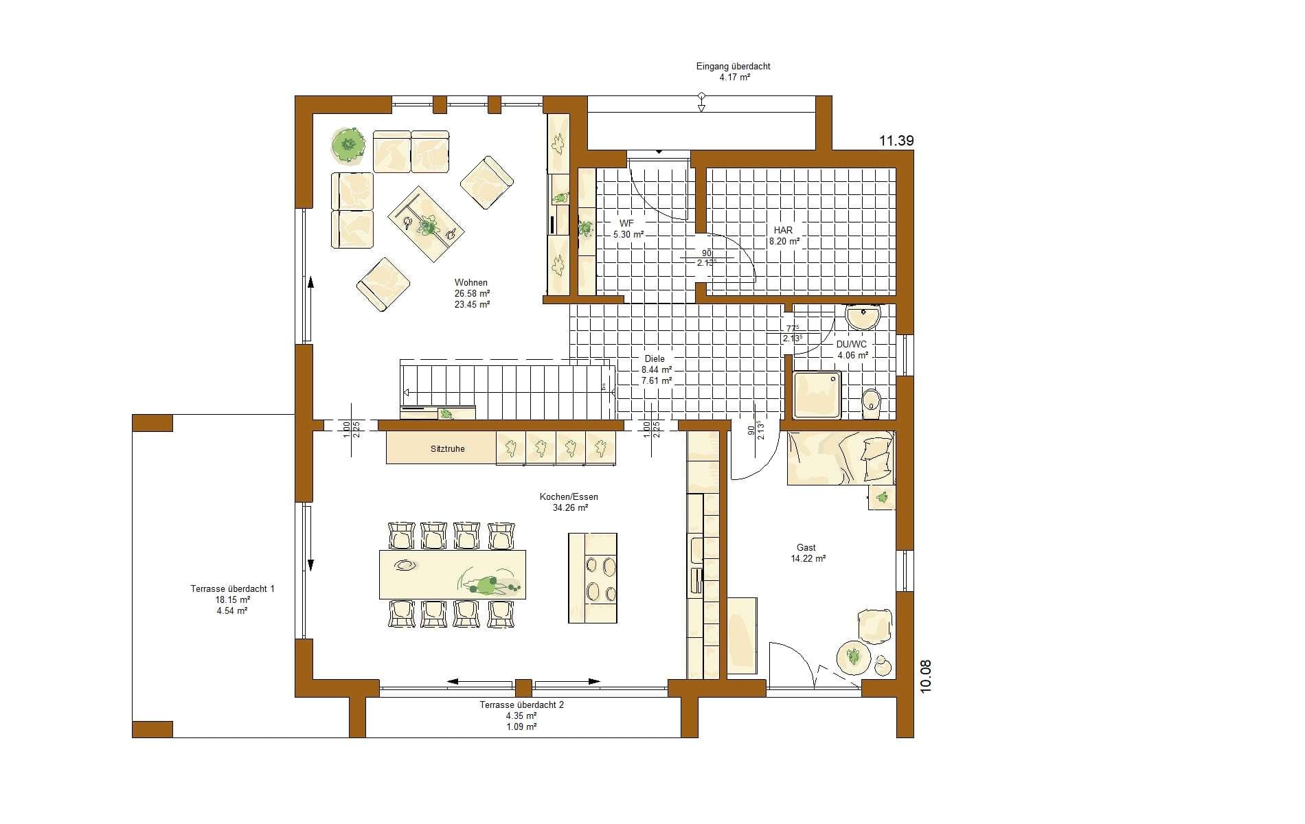
Mit einer Wohnfläche von fast 190 m² bietet Mannheim beeindruckend viel Platz für die ganze Familie. Klare und großzügige Wohnräume, damit verbunden lange Sichtachsen im Haus, schaffen ein wohnliches, zugleich großartiges Lebensgefühl. Eine geradläufige Treppe und die offene Galerie im Obergeschoss nehmen die Formensprache der Außengestaltung auf und transferieren sie ins Innere.
Das Haus Mannheim ist mit dem diffusionsoffenen Dämmkonzept thermo-around natur ausgestattet. Die Außenwände, ca. 330 mm dick, enthalten eine Holzfaser-/Zellulose-dämmung mit einem U-Wert von 0,14 W/m²K. Als verbaute Heizung wählte RENSCH-HAUS die Frischluft-Wärmetechnik mit Wärmerückgewinnung und Kühlfunktion in Kombination mit einer Photovoltaik-Anlage mit Batteriespeicher. Dazu ist das Musterhaus Mannheim mit der kinderleicht zu bedienenden Smart Home Technologie RENSCH-HAUS i-tec ausgestattet.
Das moderne Einfamilienhaus erfüllt mit Leichtigkeit die Kriterien, um regionale und bundesweite Förderungen wahrzunehmen, denn Nachhaltigkeit und Energieeffizienz stehen bei RENSCH-HAUS schon seit vielen Jahren im Fokus.
Gern bieten wir zudem eine Nachhaltigkeitszertifizierung nach QNG (Qualitätssiegel Nachhaltiges Gebäude) für Ihr Haus an.
Erfahren Sie mehr bei Ihrem Ansprechpartner.
(öffnet Freitag um 12:00 Uhr)


