Die Skandinavier gehören zu den glücklichsten Völkern der Welt. In Schweden bringt ein Begriff die Lebensqualität auf den Punkt: "Lagom" - dieses schwedische Wort bedeutet so viel wie "das rechte Maß zu finden" oder "nicht zu viel und nicht zu wenig". Mehr noch: "Lagom" beschreibt auch ein wenig das Lebensgefühl, dem viele Schweden folgen. Es lässt sich auf jeden Bereich des Alltags anwenden. Ob beim nachhaltigen Wohnen, einer gesunden Ernährung, einem bewussten Umgang mit Ressourcen oder einer harmonischen Work-Life-Balance: Wer "lagom" lebt, besinnt sich auf das Wesentliche.
Es lag also nahe dem neuen Musterhaus den Namen der schwedischen Hauptstadt zu geben - das war dem RENSCH-HAUS Architekten schon klar, als er das moderne und familienfreundliche Haus entworfen hat. Denn so wie alle anderen Häuser von RENSCH-HAUS geht es auch beim Haus Leipzig um nachhaltiges Wohnen, einem bewussten Umgang mit den Ressourcen und "das rechte Maß - eben nicht zu viel und nicht zu wenig".
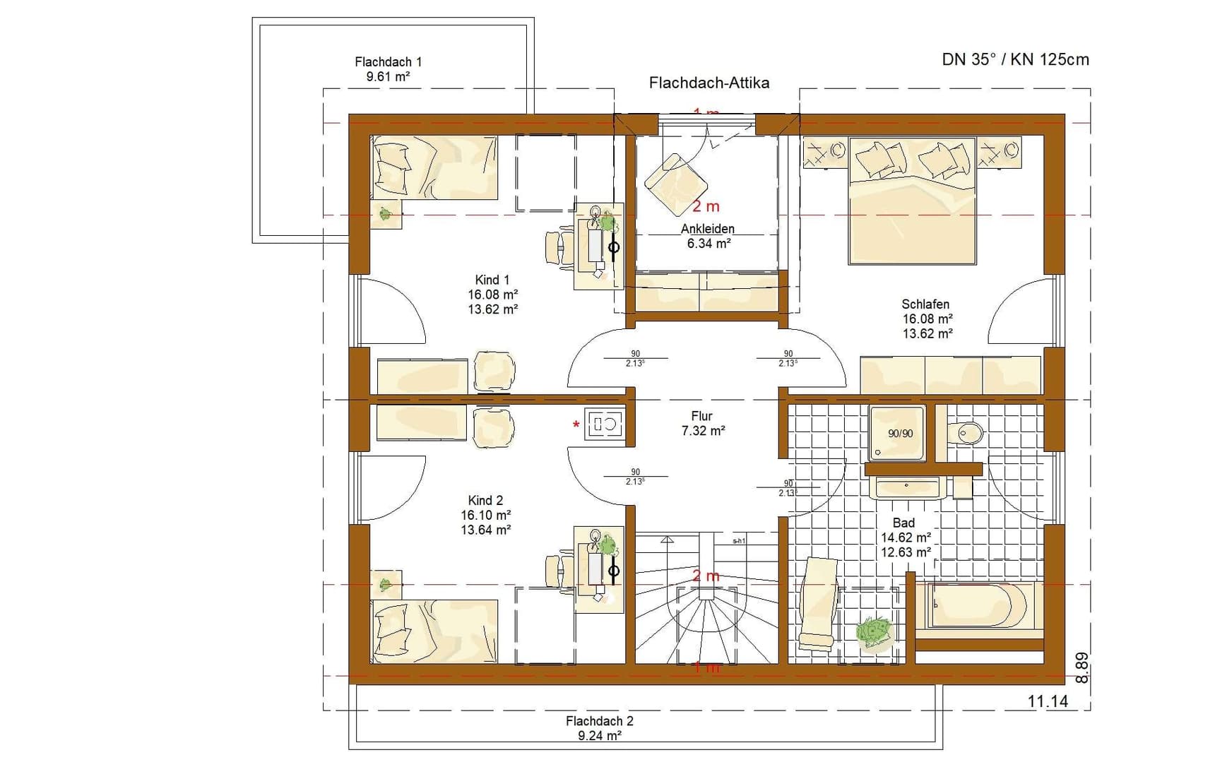
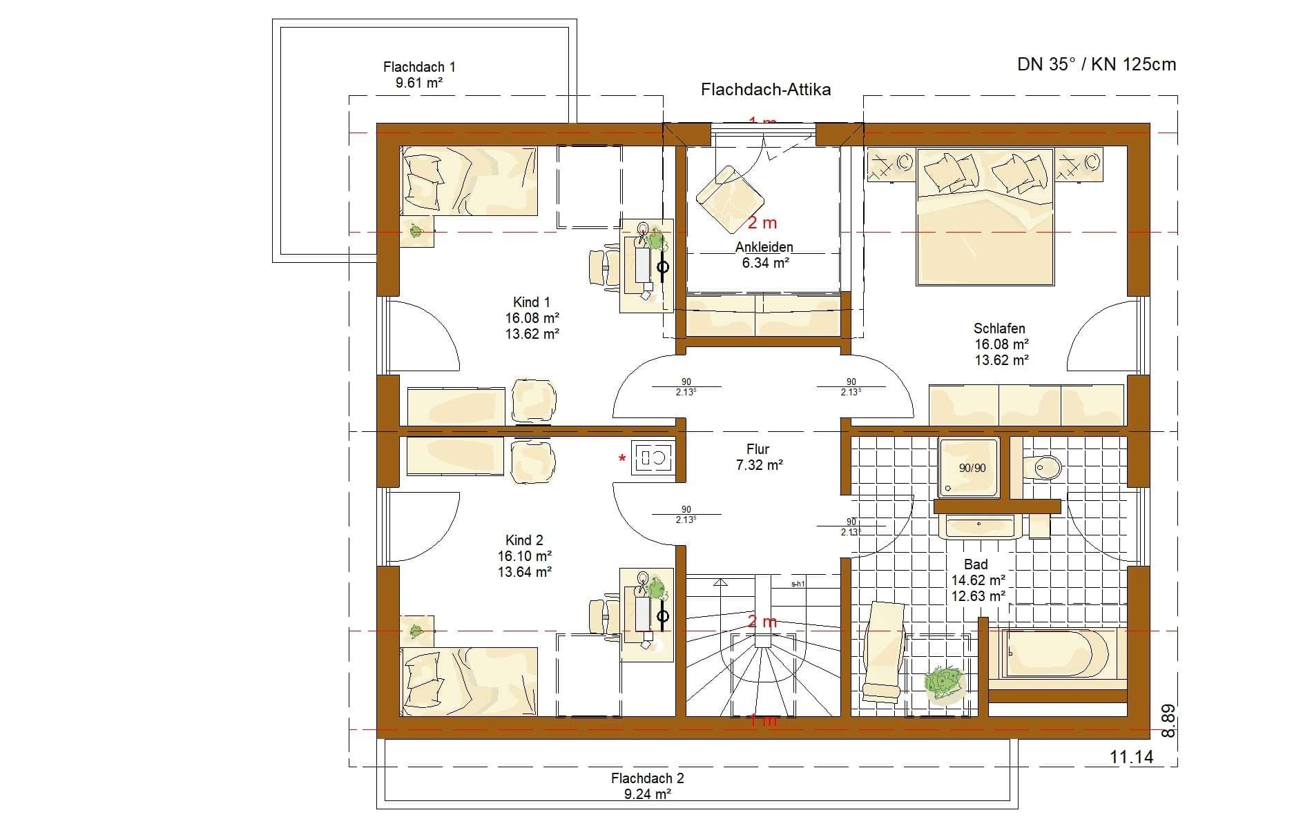
Die Wohnfläche dieses Musterhauses erstreckt sich auf fast 160 m², allein fast 95 m² nutzbare Fläche wurden im Erdgeschoss umbaut. Die gesamte Gebäudehülle wurde in Holztafelbauweise erstellt, eine ca. 330 mm dicke Außenwand mit 300 mm Holzfaser-/Zellulosedämmung weisen einen beachtlichen U-Wert von 0,14 W/m²K auf. Die RENSCH-HAUS eigene Dämmvariante "thermo-around natur" und die diffusionsoffenen Wände sorgen dafür, dass das Musterhaus zu jeder Jahreszeit optimal zum einen gegen sommerliche Hitze und zum anderen gegen winterliche Kälte geschützt ist.
(öffnet Mittwoch um 13:00 Uhr)
