1. AnbieterArrow Icon
  2. RENSCH-HAUSArrow Icon
  3. Musterhaus Nürnberg
Slide 1
Location Icon
Slide 2
Location Icon
Slide 3
Location Icon
Slide 4
Location Icon
Slide 5
Location Icon
Slide 6
Location Icon
Slide 7
Location Icon
Slide 8
Location Icon
Slide 9
Location Icon
Slide 10
Location Icon
Slide 11
Location Icon
no description
RENSCH-HAUSMusterhaus Nürnberg
homeKlassische Familienhäuser
livingArea173 m²
energyStandardEffizienzhaus 40 Plus
Preis anfragen

Musterhaus Nürnberg

Einfamilienhaus Nürnberg – ein Haus zum Wohlfühlen

In der FertighausWelt Nürnberg bei Heßdorf können Bauinteressierte seit Sommer 2021 das neue Musterhaus Nürnberg von RENSCH-HAUS besichtigen. Auf über 170 m² Wohnfläche spiegelt das Musterhaus Nürnberg die Ansprüche und Wünsche vieler Bauinteressenten wider.

Moderne Flachdachkomponenten wie der „Relaxerker“ vergrößern nicht nur den Wohn- und Essbereich, sondern bilden auch von außen attraktive Highlights. Von innen betrachtet ist der „Relaxerker“ ebenfalls eine Besonderheit und dient der ganzen Familie als gemütliche Fenstersitzbank. Die bequeme Sitzmöglichkeit mit Blick in den Garten lädt zum Verweilen ein und gibt dem Raum einen besonderen Charme. Neben der offenen Küche befindet sich im Erdgeschoss auch ein Gästezimmer, welches bei Bedarf zum Homeoffice oder einem weiteren Kinderzimmer umfunktioniert werden kann.

Das Dachgeschoss bietet viel Platz für zwei große Kinderzimmer, das Elternschlafzimmer mit eigenem Ankleidebereich und ein modernes Familienbad. Fließend und wie aus einem Guss schmiegt sich äußerst praktisch ein Carport direkt an den Hauseingang an und rundet das Erscheinungsbild in attraktiver Art und Weise ab.

Hausdaten

Hausart Icon
HausartEinfamilienhaus
Bauweise Icon
BauweiseHolz-Tafelbau
Baustil Icon
BaustilKlassische Familienhäuser
Fassade Icon
FassadePutz
Außenmaße Icon
Außenmaße11.64 m x 8.89 m
Wohnfläche Icon
Wohnfläche172.55 m²
Dachform Icon
DachformSattel-/Giebeldach
Energiestandard Icon
EnergiestandardEffizienzhaus 40 Plus
Immobilientyp Icon
ImmobilientypMusterhaus
Dachneigung Icon
Dachneigung25°
Hauseigenschaften Icon
HauseigenschaftenGästezimmer
Hausdämmstoff Icon
HausdämmstoffHolzfaser- und Zellulosedämmstoffe
Heizungsart Icon
HeizungsartLüftungsheizung
Pfeil nach unten linksWir schaffen Platz für Ihre Träume

Grundriss

Musterhaus Palermo Grundriss Erdgeschoss: Offener Wohn-Essbereich, Küche, Gästezimmer, Gäste-WC und Carport
Musterhaus Nürnberg Grundriss (EG)Wohnfläche EG: 91,34 m²
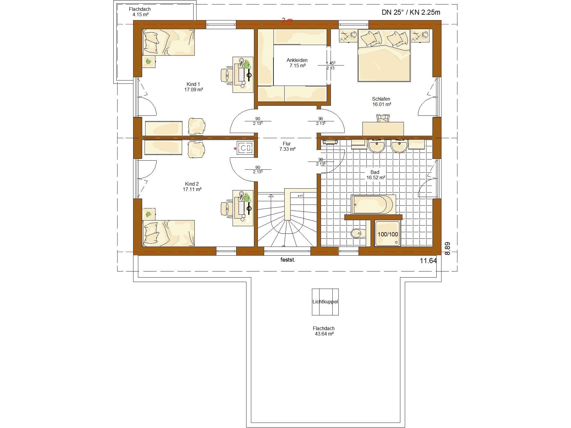
Musterhaus Palermo Grundriss Dachgeschoss: Elternschlafzimmer mit Ankleide, zwei Kinderzimmer und Badezimmer
Musterhaus Nürnberg Grundriss (DG)Wohnfläche DG: 81,21 m²

Öffnungszeiten

Montag:Geschlossen
Dienstag:Geschlossen
Mittwoch:09:00 - 16:00 Uhr
Donnerstag:09:00 - 16:00 Uhr
Freitag:09:00 - 16:00 Uhr
Samstag:09:00 - 16:00 Uhr
Sonntag:09:00 - 16:00 Uhr

(öffnet Mittwoch um 13:00 Uhr)

Christi Himmelfahrt
10:00 - 17:00 Uhr

Adresse

Im Gewerbepark 30
Heßdorf 91093

Anfahrt planen

Beratungstermin

Fertighaus Team in Heßdorf

Unser Team vor Ort

Marco ZanglFachberater*in bei RENSCH-HAUS
Marco Zangl
Wir beraten Sie gerne!Arrow Icon
House and TreeParksHouse and PinMusterhausHouse on HandAnbieter