Mit dem Fertighaus Estenfeld setzt RENSCH-HAUS neue Maßstäbe in der Stadtvillenarchitektur. Die moderne Fassade in Kombination mit eleganten Holzapplikationen verleihen dem Traumhaus eine einzigartige Anziehungskraft.
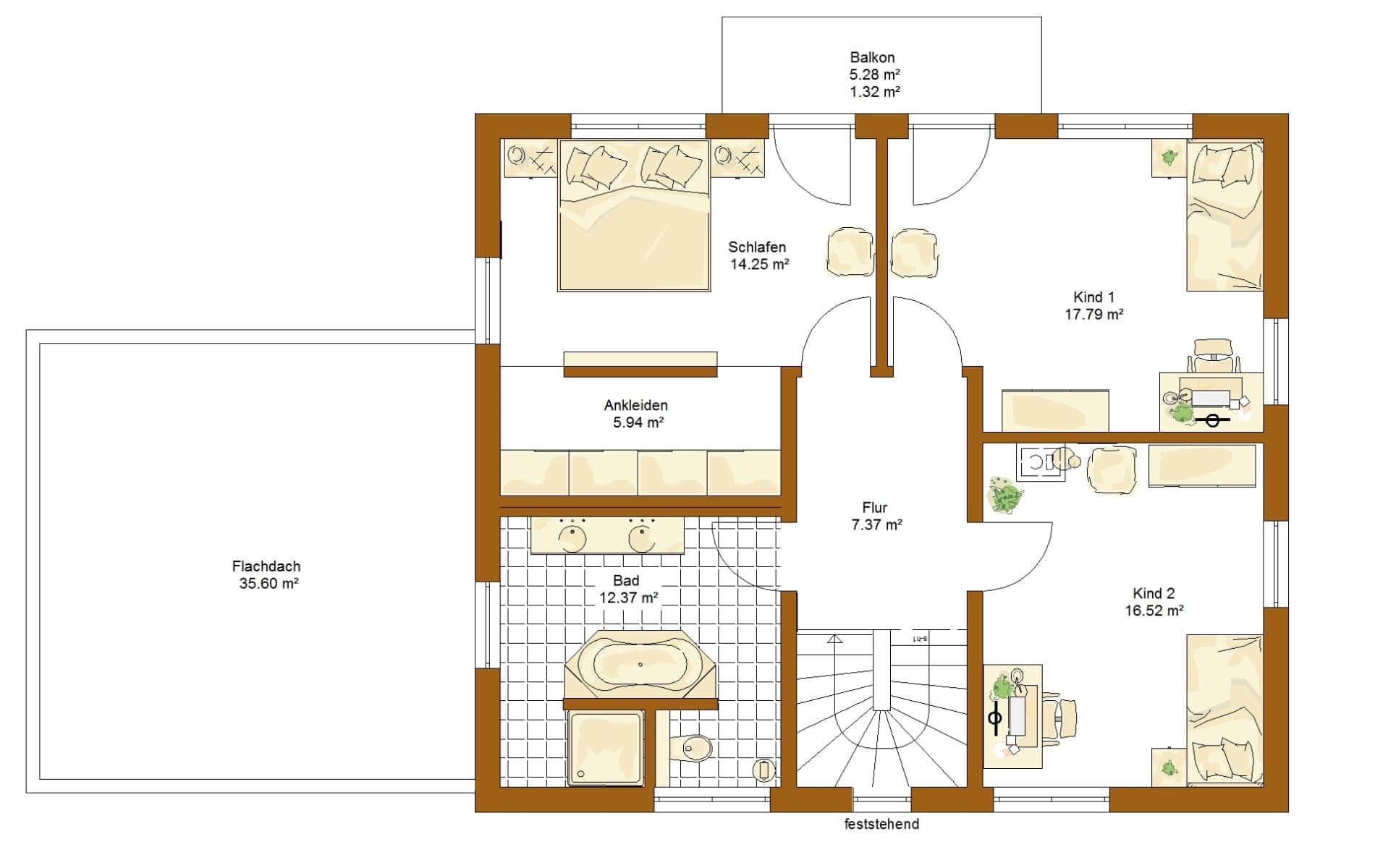
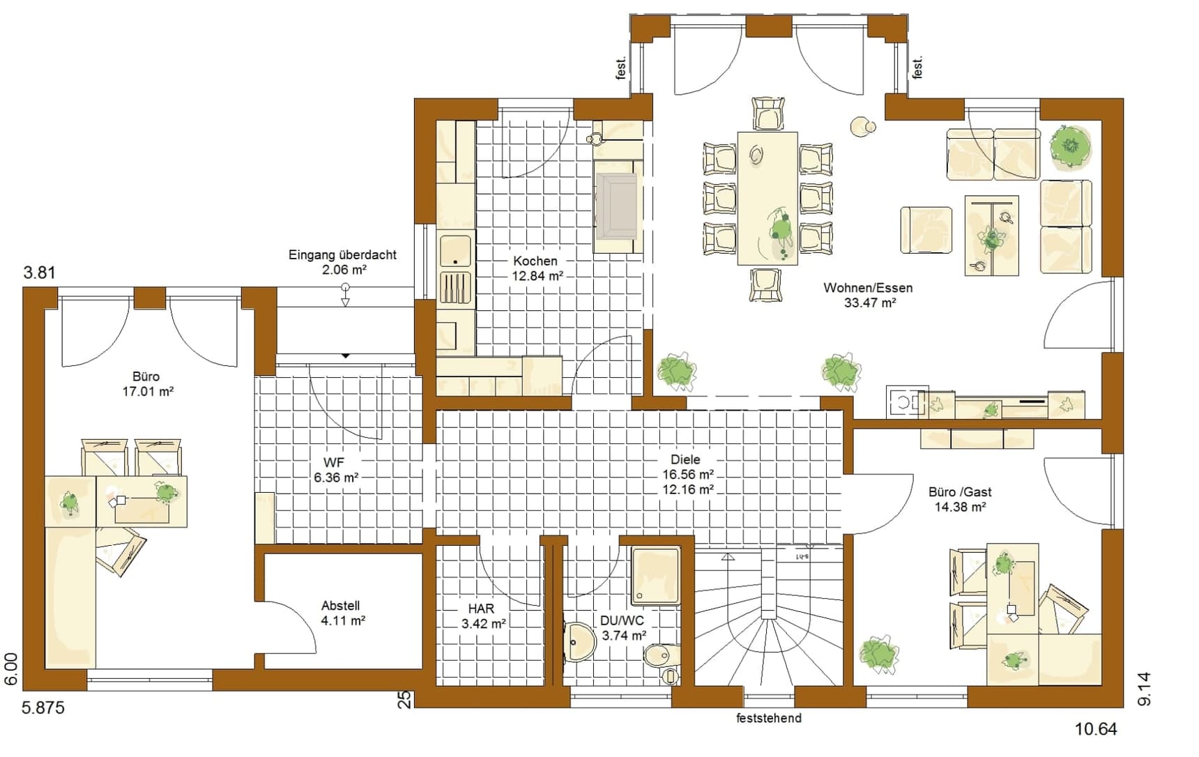
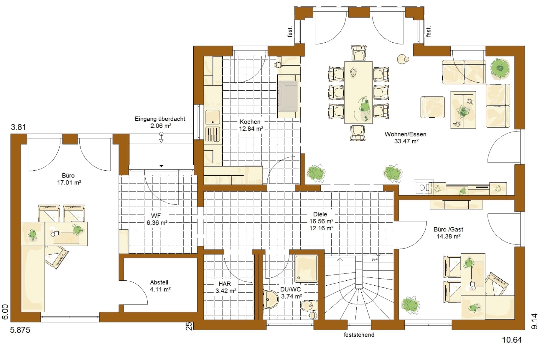
Auch im Inneren überzeugt die Fertighaus-Stadtvilla mit einem komfortablen Raumprogramm, das nicht nur bei jungen Familien, viele Wünsche erfüllt. Besonders attraktiv ist das Elternschlafzimmer in Kombination mit der begehbaren Ankleide sowie direkten Zugang zum Balkon. Elegant und lichtdurchflutet ist die offen gestaltete Familiendomäne, die die Bereiche Wohnen und Essen sowie die moderne Küche zu einer über 45 m² großen Einheit verschmelzen lässt.
Neben den beiden Kinderzimmern und dem attraktiven Familienbad im Obergeschoss steht ein weiterer Raum im Erdgeschoss zur Verfügung, der als drittes Kinderzimmer als auch als Büro oder Gästezimmer dienen kann.
Der separate Flachdachanbau, der im Musterhaus als Bürobereich dient ist interessant für Selbstständige. Hier kann ebenso gut eine praktische Garage mit direktem Zugang zum Haus stehen.
(öffnet Mittwoch um 13:00 Uhr)


