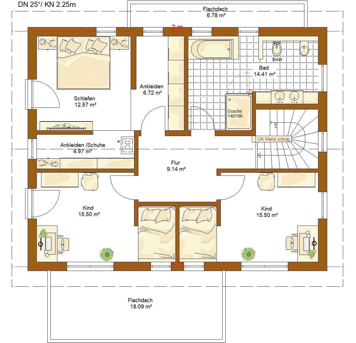
Die Treppe an der Giebelseite schafft Platz im Zentrum des Hauses und eröffnet neue Möglichkeiten der Grundrissgestaltung. Kochen, Essen und Wohnen bilden den offen gestalteten Mittelpunkt des Familienlebens. Lediglich eine Wandscheibe, welche ideale Stellflächen zu bieten hat, sorgt für eine optische Unterbrechung. Praktisch und komfortabel kommen hier die "Panoramafenster“ zum Einsatz, einmal als Sitzmöglichkeit neben dem Esszimmertisch und einmal in der Funktion eines „Kräutererkers“ direkt über der Küchenarbeitsplatte. Auch das Dachgeschoss hat einige Highlights zu bieten. Ein überaus geräumiges Familienbad, zwei Ankleidezonen für die Eltern und die beiden Kinderzimmer mit separierten Schlaf- und Rückzugsbereichen.


(öffnet Mittwoch um 12:00 Uhr)