Die moderne Architektur und die offene, großzügige Bauweise erinnern an zeitloses und zugleich avantgardistisches Design dänischer Architekten und Designer. Schlicht und bestechend durch gerade Linien ist die Anmutung des Hauses, die inneren Werte überzeugen durch konsequenten Funktionalismus und smarte Technologie. Abgerundet wird das Haus durch eine freistehende RENSCH-HAUS Garage, die ebenfalls in der Haus-Manufaktur individuell gefertigt wurde.
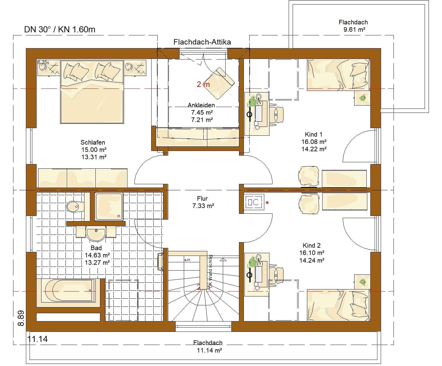
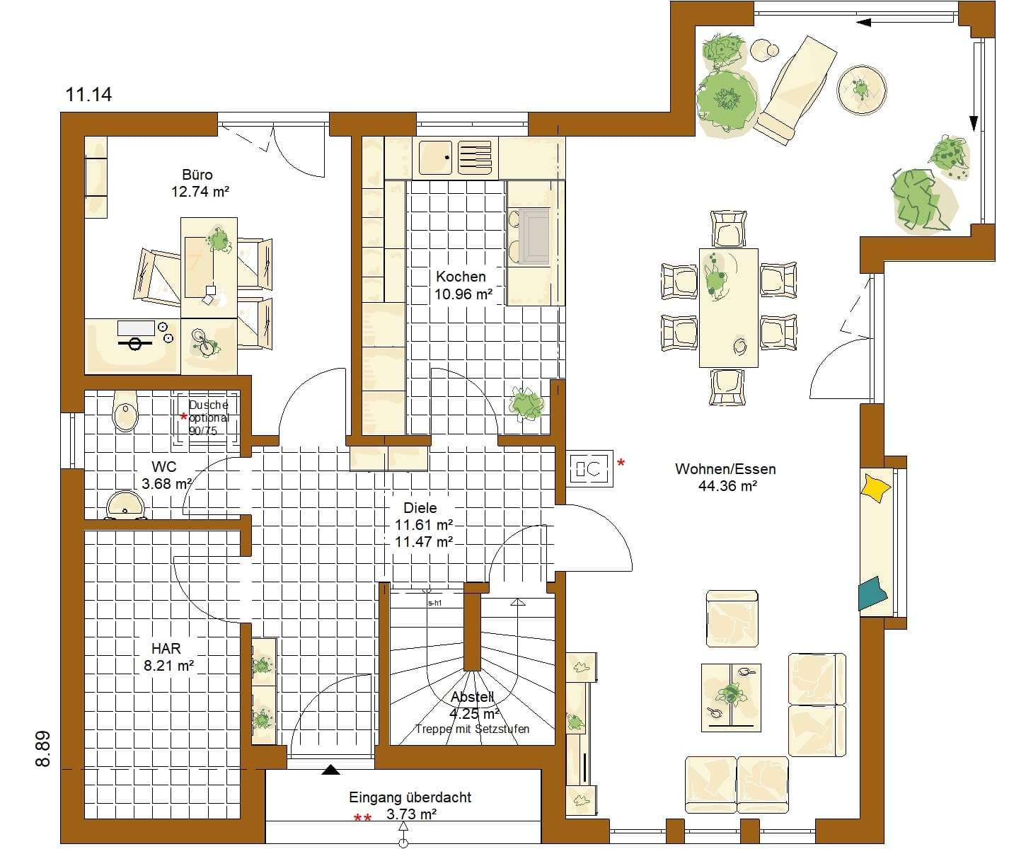
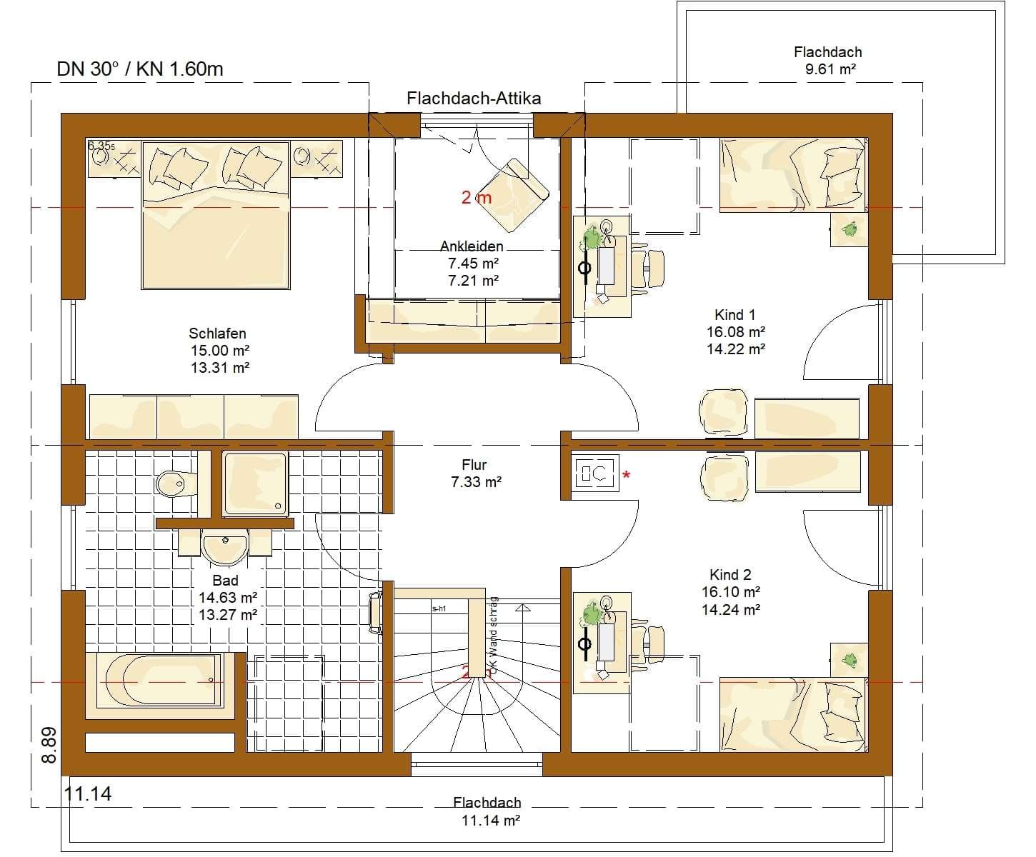
Das eineinhalbgeschossige Haus mit Satteldach ist dank seiner bodentiefen Panoramafenster lichtdurchflutet und der Garten lädt gleich über mehrere großzügig geplante Terrassentüren ein. Das Musterhaus „Werder“ bietet auf beiden Geschossen eine Gesamtnutzfläche von fast 175 m² an und sorgt für genügend Entfaltungsmöglichkeiten aller Familienmitglieder. Dirk Wolschke, Geschäftsführer von RENSCH-HAUS:
„Mit dem Musterhaus „Werder“ haben wir ein Haus entwickelt, dass dank der großzügigen Raumplanung sehr konkret auf die modernen Lebensumstände von Familien eingeht und jedem Bewohner genügend Platz bietet.“
„Werder“ setzt auf Energieersparnis.
Auch dieses Musterhaus von RENSCH-HAUS entstand in Holztafelbauweise mit einer ca. 330 mm starken Außenwand. Im Effizienzhaus 40 PLUS kommt das Dämmkonzept thermo-around natur zum Einsatz und gewährleistet eine diffusionsoffene Bauweise für ein wohngesundes Raumklima zu jeder Jahreszeit. Zusätzlich sorgt die RENSCH-HAUS Frischluft-Wärmetechnik mit Wärmerückgewinnung für ein angenehmes und nachhaltiges Wohnerlebnis. Eine Photovoltaikanlage mit Batteriespeicher rundet das Energiekonzept ab.
Dazu ist das Musterhaus „Werder“ mit der kinderleicht zu bedienenden Smart Home- Technologie „RENSCH-HAUS i-tec“ ausgestattet.
Hier direkt einen Beratungstermin vereinbaren: https://www.rensch-haus.com/service/kontakt/berater-finden
(öffnet Samstag um 13:00 Uhr)


