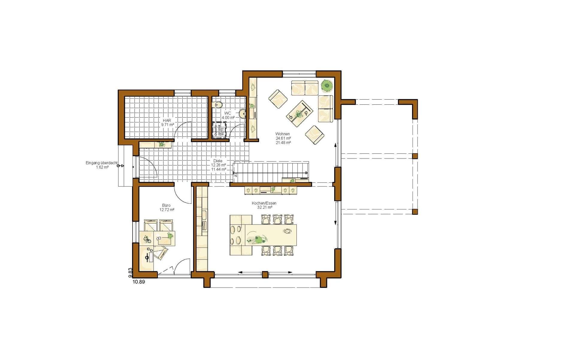
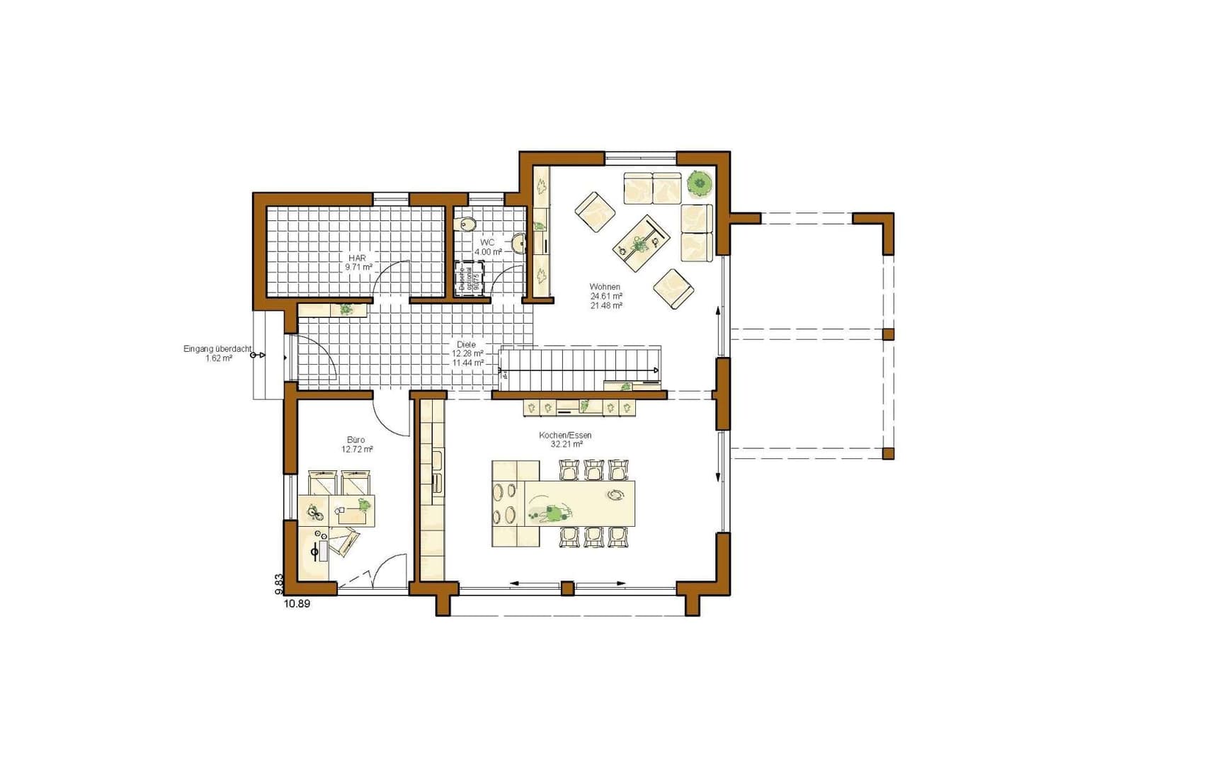
Im Erdgeschoss sind die Küche und das Esszimmer zu einer über 32 m² großen, modernen und funktionsorientierten Einheit verschmolzen und bilden sozusagen das Herzstück des gemeinsamen Familienlebens. Schon der Start in den Tag bei einem gemeinsamen Frühstück oder gemütliche Abende mit Familie und Freunden werden hier zu einem besonderen Wohnerlebnis. Großzügig dimensionierte Hebeschiebetüren sorgen für eine gelungene Verbindung zur Garten- und Terrassenanlage und schaffen ein frisches und modernes Ambiente.
Das gemütliche Wohnzimmer hingegen ist separat angeordnet und beinhaltet als besonderes Highlight die geradläufige und repräsentative Geschosstreppe. Von allen wesentlichen Wohnräumen aus gelangt man auf direktem Wege zu der einladenden und rahmenartig umschlossenen Terrasse. Dort befinden sich zwischen der Trägerkonstruktion elektrisch bedienbare Markisen welche je nach Sonnenstand individuell und bedarfsgerecht für eine angenehme Verschattung sorgen. Jede Minute Freizeit wird hier zu einem erholsamen Kurzurlaub zu Hause. Komplettiert wird das Erdgeschoss neben dem Hausanschlussraum und dem WC mit einem zusätzlichen Zimmer, welches für Büroarbeiten, als drittes Kinderzimmer oder auch für Gäste genutzt werden kann.
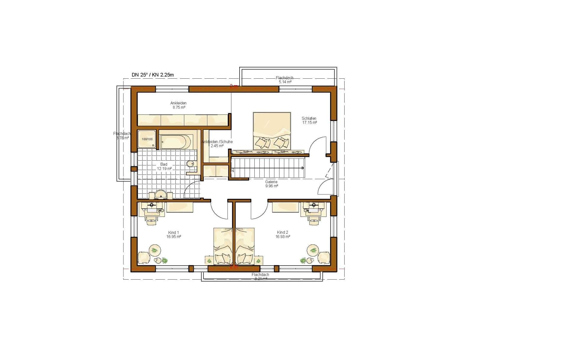
Im Dachgeschoss geht es weiter mit zwei fast 17 m² großen Kinderzimmern sowie einem trendigen Familienbad. Ein besonderes Highlight ist der geschickt aufgeteilte und über 28 m² große Elternbereich aus Schlafzimmer mit offener Ankleide und einem separat begehbaren Schuhschrank.
Die zeitlose und geradlinige Satteldacharchitektur dieses Hauses wird durch den gezielten Einsatz von modernen und farblich abgesetzten Flachdachkomponenten gekonnt in Szene gesetzt und sorgen für die unverwechselbare Ausstrahlung.
Zusätzlich verfügt das neue Musterhaus Ancona über RENSCH-HAUS i-tec. Dieser Name steht für eine komplett neu entwickelte Smart Home Technologie von RENSCH-HAUS. Sämtliche Funktionen, die unter einer Smart Home Steuerung möglich sind, wurden im Musterhaus Villingen-Schwenningen verbaut und können von den Besuchern live ausprobiert werden. Somit ist RENSCH-HAUS in der Lage den technikaffinen Hausbau-Interessenten eine umfangreiche und technisch anspruchsvolle Smart Home Steuerung anzubieten.
Außerdem sorgt die Frischluft-Wärmetechnik mit Wärmerückgewinnung für ein behagliches Raumklima, sodass ein angenehmes und nachhaltiges Wohnerlebnis gesichert ist.
Weiterhin ist das Musterhaus Villingen-Schwenningen mit der serienmäßigen diffusionsoffenen Gebäudekonstruktion thermo-around aktiv ausgestattet.
(öffnet Freitag um 13:00 Uhr)
