1. AnbieterArrow Icon
  2. RENSCH-HAUSArrow Icon
  3. Twinline R Messina
Slide 1
Slide 2
Slide 3
Slide 4
no description
RENSCH-HAUSTwinline R Messina
homeKlassische Familienhäuser
livingArea111 m²
energyStandardEffizienzhaus 40
Preis anfragen
Katalog bestellen

Twinline R Messina

Das moderne Doppelhaus mit Satteldach

Mit einer Außenwandhöhe von 2,25 m und einem flach geneigten Satteldach sind alle Räume im Dachgeschoss des Doppelhauses Messina optimal nutzbar.

Im Erdgeschoss befindet sich die ca. 45 m² große und offen gehaltene Raumkombination aus Kochen, Essen und Wohnen. Dazu gehört das zum Keller hinab geschlossene Treppenhaus. Die Erdgeschosstreppe - vom Wohnraum her einsehbar - kann durch entsprechende Beleuchtung attraktiv in Szene gesetzt werden. Das Raumangebot im Erdgeschoss wird durch einen Abstellraum, ein WC und einen Windfang mit großer Garderobe abgerundet.

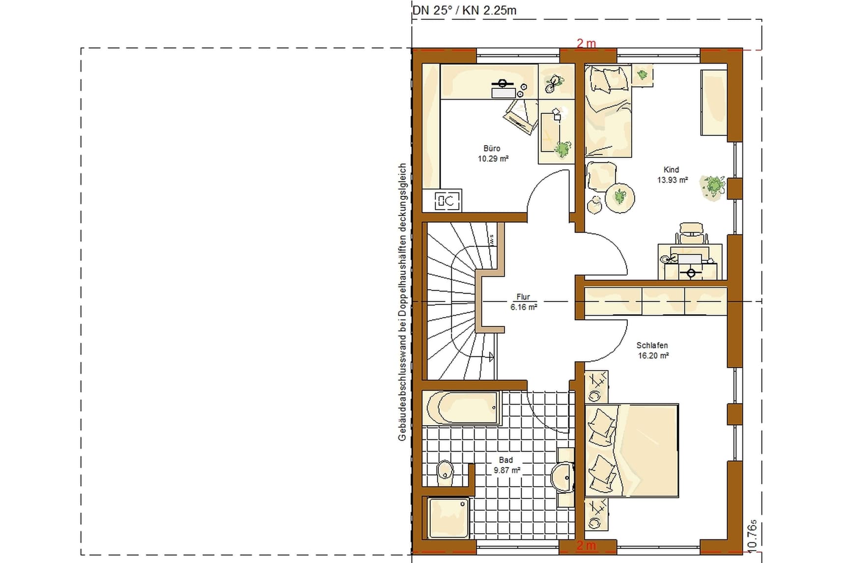
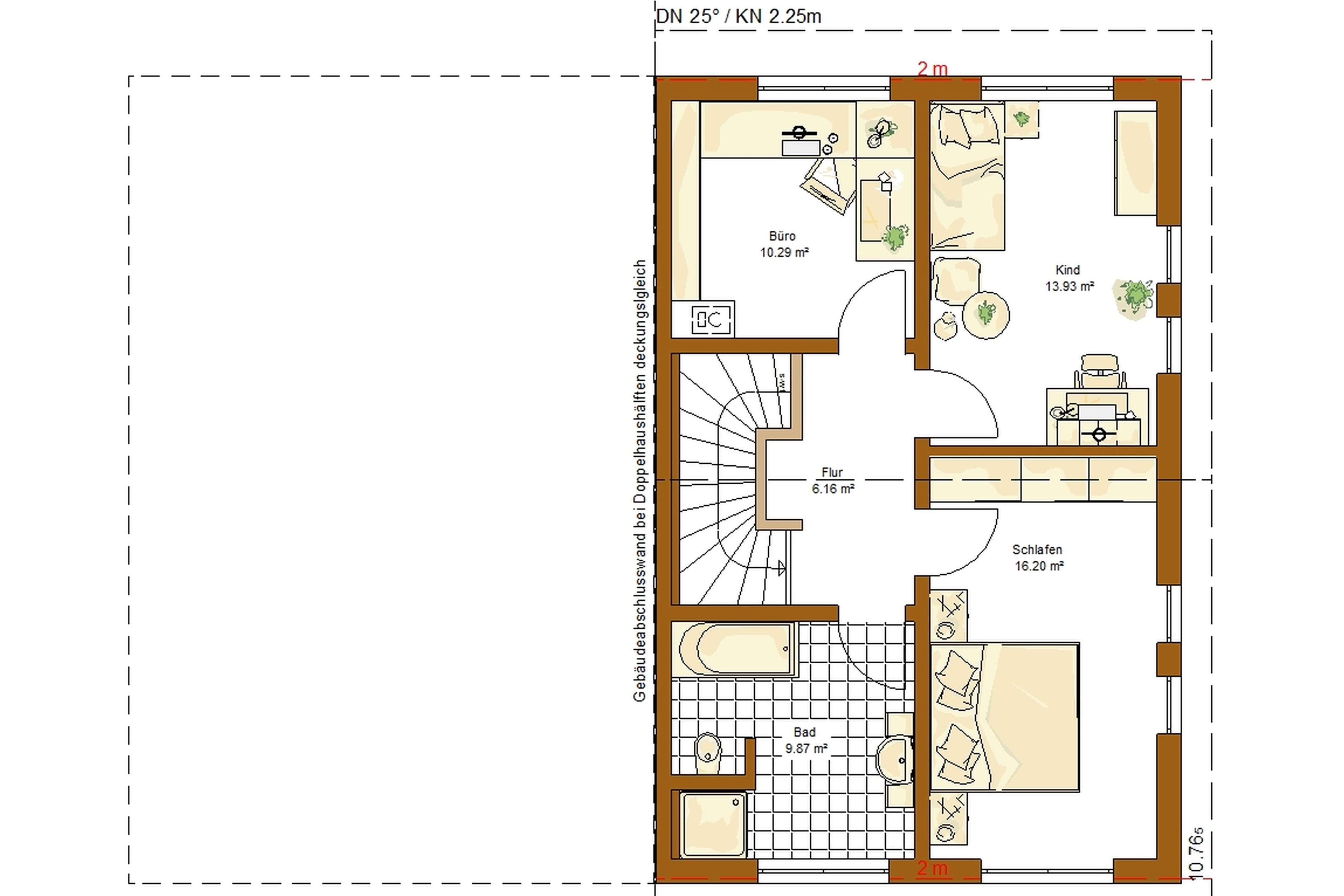
Im Dachgeschoss befinden sich die Schlafräume, das Familienbad und ein Büro, das auch als zweites Kinderzimmer genutzt kann.

Hausdaten

Hausart Icon
HausartDoppelhaus
Bauweise Icon
BauweiseHolz-Tafelbau
Baustil Icon
BaustilKlassische Familienhäuser
Fassade Icon
FassadePutz
Außenmaße Icon
Außenmaße7 m x 10.76 m
Wohnfläche Icon
Wohnfläche111 m²
Dachform Icon
DachformSattel-/Giebeldach
Energiestandard Icon
EnergiestandardEffizienzhaus 40
Immobilientyp Icon
ImmobilientypPlanungsidee
Dachneigung Icon
Dachneigung25°
Kniestock Icon
Kniestock2.25 m
Hauseigenschaften Icon
HauseigenschaftenTerasse
Hausdämmstoff Icon
HausdämmstoffMineralfaser (Glaswolle, Steinwolle)
Heizungsart Icon
HeizungsartWärmepumpe (Luft, Wasser, oder beides)
Pfeil nach unten linksWir schaffen Platz für Ihre Träume

Grundriss

no description
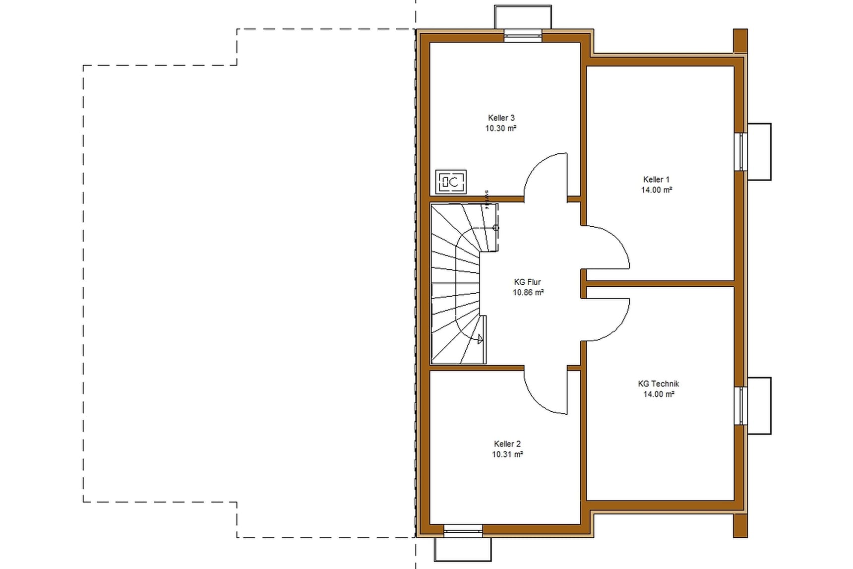
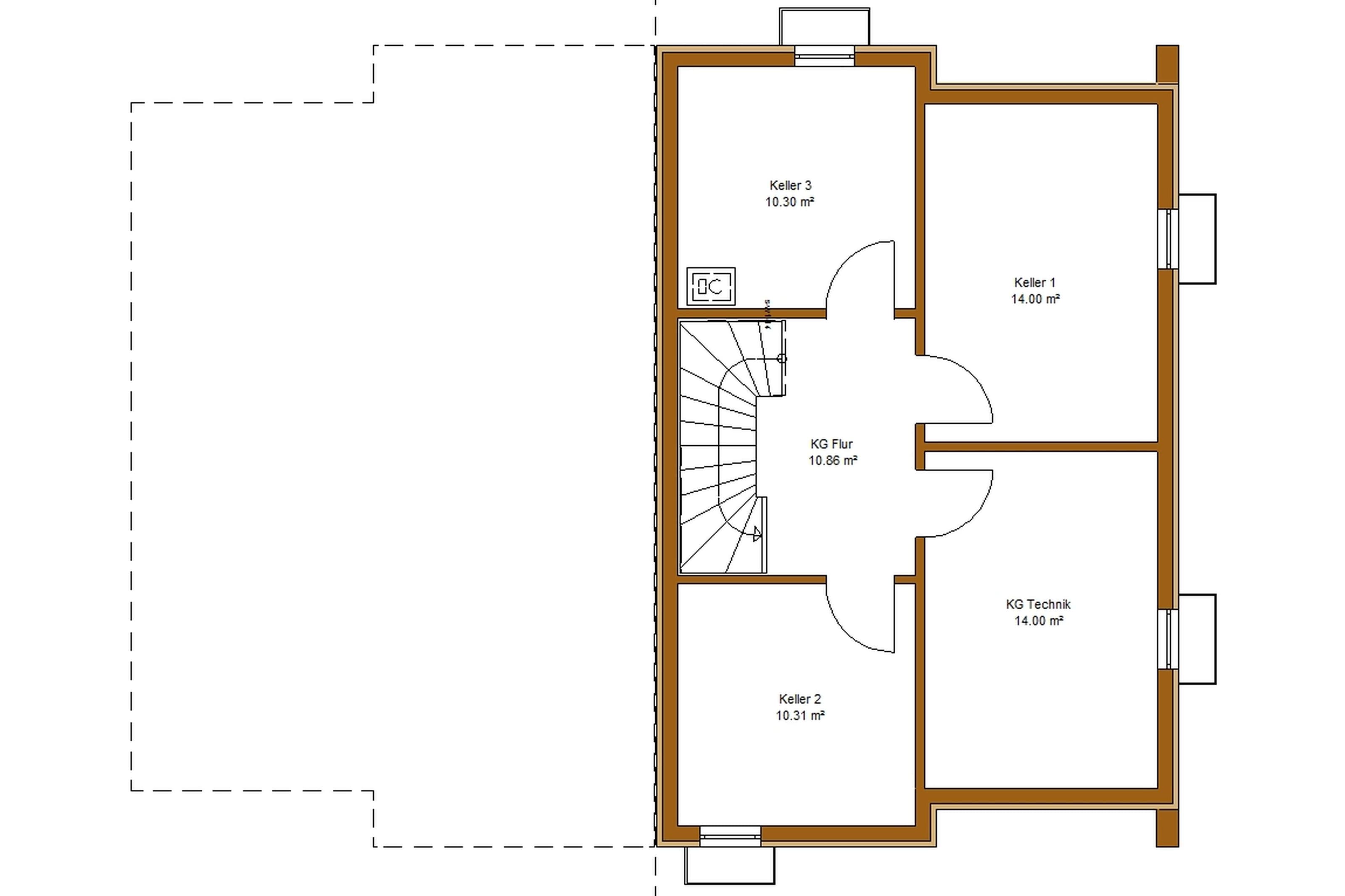
Twinline R Messina Grundriss (Keller)
no description
Twinline R Messina Grundriss (EG)Wohnfläche EG: 55 m²
no description
Twinline R Messina Grundriss (DG)Wohnfläche DG: 56 m²

Kataloge

RENSCH-HAUS: Hauskatalog
RENSCH-HAUS

RENSCH-HAUS: Hauskatalog


House and TreeParksHouse and PinMusterhausHouse on HandAnbieter